Рейтинг@Mail.ru
Переверните экран
Новостройки Квартиры Ипотека Новостройки Москвы Новостройки Подмосковья Новостройки Новой Москвы Готовые новостройки Новостройки на карте Акции от застройщиков Коммерческие помещения Продавцы и застройщики Панорамы новостроек Видеообзор новостроек Экспертиза новостроек Экология Москвы и Подмосковья Студии 1-комнатные 2-комнатные 3-комнатные Квартиры на карте Ипотечный калькулятор Семейная ипотека Военная ипотека Банки и программы Медиа Новости недвижимости Мнение эксперта Аналитика рынка Покупателю Экспертиза новостроек Эксперты и авторы О проекте Контакты Реклама на сайте Vk Youtube Telegram Дзен Машиноместа Апартаменты #траншевая ипотека #рассрочка IT-ипотека Квартиры со скидками до 40% Видео 360° новостроек Субсидированная застройщиком Rutube Поиск дома в Москве Программа реновации в Москве Новостройки премиум-класса Новостройки бизнес-класса Рассрочка Траншевая ипотека ГАЛС Дома и коттеджи Бизнес-центры Бизнес-центры в Москве Бизнес-центры рядом с метро Строящиеся бизнес-центры Бизнес-центры класса A Бизнес-центры класса B ЛСР
Данная квартира является лидером продаж среди двухкомнатных квартир в Сигнальный 16 по данным Росреестра
2-комн. квартира, 48.50 м2, 15 этаж
Срок сдачи 4 квартал 2025 года
22 460 350 
463 100 2
обновлено 5 декабря

Описание 2-комн. квартиры

Новостройка
Застройщик
СЗ РАДУГА
Срок ГК
4 квартал 2025 года
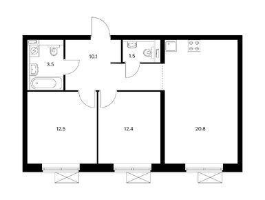
Общая площадь
48.50 м2
Этаж
15 / 33
Отделка
чистовая
Грузовой лифт
есть

Расположение 2-комн. квартиры

Локация
Станция МЦД
Станция МЦК
Дом
2.2
Адрес
Сигнальный пр-д, вл. 16, секция 4

Способы покупки

Особенности

Продается двухкомнатная квартира в новостройке Сигнальный 16 по адресу Москва, СВАО, Отрадное, Сигнальный пр-д, вл. 16. Общая площадь квартиры - 48.5 кв. м. Тип проекта, по которому построен дом — Панельный,Монолитно-каркасный, компания-застройщик — СЗ РАДУГА, ПИК. Стоимость квартиры — 22 460 350 руб. Способы оплаты можно уточнить у продавца. Срок сдачи — 4 квартал 2025. Более подробная информация по телефону.
Посмотреть все спецпредложения
студия 19,80 м2 10 046 520
Этаж 33/33
Москва, Сигнальный 16
Владыкино
10 мин.
Строится
студия 23,60 м2 11 160 440
Этаж 28/33
Москва, Сигнальный 16
Владыкино
10 мин.
Строится
Этаж 17/33
Москва, Сигнальный 16
Владыкино
10 мин.
Строится
студия 27,20 м2 12 686 080
Этаж 32/33
Москва, Сигнальный 16
Владыкино
10 мин.
Строится
1-комн. квартира 42,20 м2 22 897 720
Этаж 2/33
Москва, Сигнальный 16
Владыкино
10 мин.
Строится
1-комн. квартира 42,70 м2 22 041 740
Этаж 18/33
Москва, Сигнальный 16
Владыкино
10 мин.
Строится
1-комн. квартира 42,80 м2 21 802 320
Этаж 4/33
Москва, Сигнальный 16
Владыкино
10 мин.
Строится
Посмотреть 13 квартир в Сигнальный 16
2-комн. квартира 50,70 м2 22 019 010
Этаж 26/33
Москва, Сигнальный 16
Владыкино
10 мин.
Строится
2-комн. квартира 50,80 м2 23 053 040
Этаж 10/33
Москва, Сигнальный 16
Владыкино
10 мин.
Строится
2-комн. квартира 50,90 м2 21 668 130
Этаж 26/33
Москва, Сигнальный 16
Владыкино
10 мин.
Строится
2-комн. квартира 60,80 м2 28 667 200
Этаж 3/33
Москва, Сигнальный 16
Владыкино
10 мин.
Сдан
Посмотреть 28 квартир в Сигнальный 16
3-комн. квартира 80,40 м2 32 497 680
Этаж 28/33
Москва, Сигнальный 16
Владыкино
10 мин.
Строится
3-комн. квартира 81,00 м2 30 018 600
Этаж 17/33
Москва, Сигнальный 16
Владыкино
10 мин.
Строится
3-комн. квартира 81,01 м2 29 633 458
Этаж 4/33
Москва, Сигнальный 16
Владыкино
10 мин.
Строится
3-комн. квартира 81,10 м2 30 339 510
Этаж 28/33
Москва, Сигнальный 16
Владыкино
10 мин.
Строится
Посмотреть 8 квартир в Сигнальный 16

Скидки и спецпредложения от застройщиков

Сигнальный 16 на карте

Выгодные предложения на новостройки

Отзывы о Сигнальный 16

Самый полезный отзыв
В
25 ноября 2020
Оценка:
Рядом с Ботаническим садом конечно козырное место) И Яуза тут тебе и пруды. Ашан под боком. Только до школы топать далековато, но я думаю по мере заселения микрорайона и этот вопрос решится. Цены как ни странно не завышены, хоть это и не эконом, а комфорт класс. Мы, например, выбрали двушку всего за 8 лямов. Для такого уровня жилья это даже дёшево. Планировка отличная. Как мы и хотели, кухня небольшая, как раз не в ущерб метражу комнат. Комнаты огромные. С оформлением детской прям есть где разгуляться. Вероятно такая стоимость, потому что под строительство дешевле. Больно крута локация, честное слово. Ну должно быть дороже. Транспортная доступность очень хорошая- метро и МЦК рядышком, автобусов много. До ВДНХ рукой подать.
Ответить
Полезный отзыв?
Самый новый отзыв
Е
11 июня 2024
Оценка:
Транспортная доступность
Социальная инфраструктура
Планировки
Двор, окружение
Расположение
Плюсы: метро рядом 12мин пешком или 1 остановка транспортом, Ашан рядом, Ботанический сад рядом, ремонт в квартире "жить можно", внутрений дворик удобный. Минусы: 4 грузовых лифта на этаж, на 14 квартир маловато. К ремонту лучше не присматриваться, мелкие огрехи режут глаз, без претензий только окна. Рядом стройка, строят 2ую очередь, школу, детсад. Лучше брать квартиру с видом на вднх и ботанический сад, а не на трубы мусорозжигающего завода. Запаха нет, дыма нет, система очистки норм. Парковка маленькая, мусоропровода нет.
Ответить
Полезный отзыв?
Добавьте отзыв, заполнив личные данные, или сначала войдите на сайт, тогда информация будет автоматически взята из личного профиля.
Оценка*