Рейтинг@Mail.ru
Переверните экран
Новостройки Квартиры Ипотека Новостройки Москвы Новостройки Подмосковья Новостройки Новой Москвы Готовые новостройки Новостройки на карте Акции от застройщиков Коммерческие помещения Продавцы и застройщики Панорамы новостроек Видеообзор новостроек Экспертиза новостроек Экология Москвы и Подмосковья Студии 1-комнатные 2-комнатные 3-комнатные Квартиры на карте Ипотечный калькулятор Семейная ипотека Военная ипотека Банки и программы Медиа Новости недвижимости Мнение эксперта Аналитика рынка Покупателю Экспертиза новостроек Эксперты и авторы О проекте Контакты Реклама на сайте Vk Youtube Telegram Дзен Машиноместа Апартаменты #траншевая ипотека #рассрочка IT-ипотека Квартиры со скидками до 40% Видео 360° новостроек Субсидированная застройщиком Rutube Поиск дома в Москве Программа реновации в Москве Новостройки премиум-класса Новостройки бизнес-класса Рассрочка Траншевая ипотека Дома и коттеджи Бизнес-центры Бизнес-центры в Москве Бизнес-центры рядом с метро Строящиеся бизнес-центры Бизнес-центры класса A Бизнес-центры класса B
Данная квартира является лидером продаж среди двухкомнатных квартир в Плеханова 11  по данным Росреестра
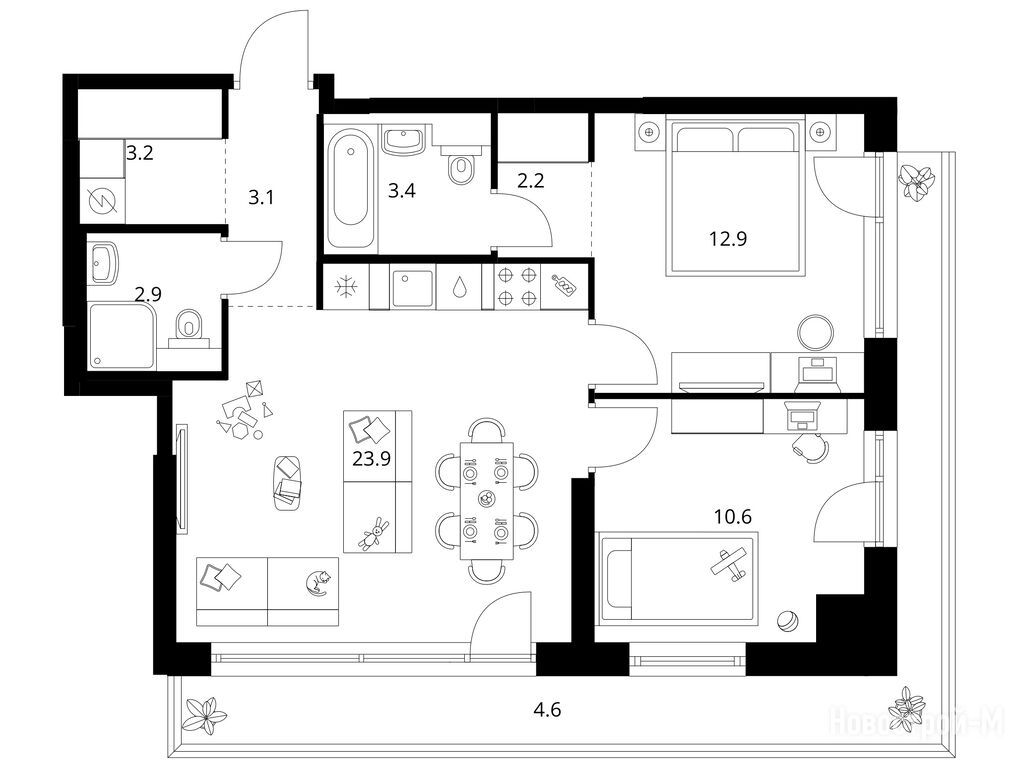
2-комн. квартира, 66.80 м2, 5 этаж
Срок сдачи 3 квартал 2026 года
30 353 920 
454 400 2
обновлено 30 января

Описание 2-комн. квартиры

Новостройка
Застройщик
Срок ГК
3 квартал 2026 года
Тип проекта
Общая площадь
66.80 м2
Этаж
5 / 31
Отделка
чистовая
Грузовой лифт
есть

Расположение 2-комн. квартиры

Локация
Метро
Станция МЦД
Перово
15 мин.
Станция МЦК
Дом
1.3
Адрес
ул. Плеханова, вл. 11, корп.1.3, секция 3

Способы покупки

Особенности

Продается двухкомнатная квартира в новостройке Плеханова 11  по адресу Москва, ВАО, Перово, ул. Плеханова, вл. 11, корп.1.3. Общая площадь квартиры - 66.8 кв. м. Тип проекта, по которому построен дом — Монолит, компания-застройщик — ПИК, ООО СЗ «Ясеневый парк». Стоимость квартиры — 30 353 920 руб. Способы оплаты можно уточнить у продавца. Срок сдачи — 3 квартал 2026. Более подробная информация по телефону.
ПИК
ПИК
Сданных 96
|
Строящихся 38
Время работы 02:00 — 21:00
Онлайн-сделка
Выбирайте квартиру в Плеханова 11  по ценам от застройщика
Посмотреть все спецпредложения
студия 19,40 м2 13 686 700
Этаж 24/24
Москва, Плеханова 11 
Шоссе Энтузиастов
10 мин.
Строится
студия 19,90 м2 12 829 530
Этаж 9/24
Москва, Плеханова 11 
Шоссе Энтузиастов
10 мин.
Строится
студия 20,80 м2 13 054 080
Этаж 2/24
Москва, Плеханова 11 
Шоссе Энтузиастов
10 мин.
Строится
студия 21,30 м2 15 016 500
Этаж 2/24
Москва, Плеханова 11 
Шоссе Энтузиастов
10 мин.
Строится
Этаж 7/24
Москва, Плеханова 11 
Шоссе Энтузиастов
10 мин.
Строится
Этаж 4/24
Москва, Плеханова 11 
Шоссе Энтузиастов
10 мин.
Строится
Этаж 13/31
Москва, Плеханова 11 
Шоссе Энтузиастов
10 мин.
Строится
1-комн. квартира 33,60 м2 19 941 600
Этаж 24/24
Москва, Плеханова 11 
Шоссе Энтузиастов
10 мин.
Строится
1-комн. квартира 34,50 м2 21 017 400
Этаж 13/31
Москва, Плеханова 11 
Шоссе Энтузиастов
10 мин.
Строится
1-комн. квартира 35,90 м2 19 874 240
Этаж 28/31
Москва, Плеханова 11 
Шоссе Энтузиастов
10 мин.
Строится
1-комн. квартира 37,10 м2 20 041 420
Этаж 2/31
Москва, Плеханова 11 
Шоссе Энтузиастов
10 мин.
Строится
Посмотреть 19 квартир в Плеханова 11 
2-комн. квартира 49,90 м2 25 473 950
Этаж 7/24
Москва, Плеханова 11 
Шоссе Энтузиастов
10 мин.
Строится
2-комн. квартира 51,30 м2 26 014 230
Этаж 5/31
Москва, Плеханова 11 
Шоссе Энтузиастов
10 мин.
Строится
2-комн. квартира 57,00 м2 25 581 600
Этаж 16/31
Москва, Плеханова 11 
Шоссе Энтузиастов
10 мин.
Строится
2-комн. квартира 58,00 м2 27 683 400
Этаж 2/24
Москва, Плеханова 11 
Шоссе Энтузиастов
10 мин.
Строится
Посмотреть 15 квартир в Плеханова 11 
3-комн. квартира 75,60 м2 34 027 560
Этаж 2/31
Москва, Плеханова 11 
Шоссе Энтузиастов
10 мин.
Строится
3-комн. квартира 76,90 м2 33 228 490
Этаж 19/24
Москва, Плеханова 11 
Шоссе Энтузиастов
10 мин.
Строится
3-комн. квартира 88,40 м2 38 206 480
Этаж 15/24
Москва, Плеханова 11 
Шоссе Энтузиастов
10 мин.
Строится
Посмотреть 5 квартир в Плеханова 11 

Скидки и спецпредложения от застройщиков

Плеханова 11  на карте

Выгодные предложения на новостройки

Отзывы о Плеханова 11 

Самый полезный отзыв
И
31 июля 2020
Оценка:
Транспортная доступность
Скорость строительства
Ожидаем строительсво
Ответить
Полезный отзыв?
Самый новый отзыв
KG
27 сентября 2025
Оценка:
Транспортная доступность
Экология
Социальная инфраструктура
Планировки
Готовность
Внешний вид фасада
Подземный паркинг
Двор, окружение
Расположение
Я купила квартиру в феврале этого года и очень довольна своим выбором. Цены стабильно и постепенно растут. Район отличный — я всё тщательно изучала перед покупкой. Весь район будет полностью реновирован, об этом есть информация в телеграм-канале мэра Москвы. Соответственно, в перспективе район изменится кардинально. До центра очень близко: от станции метро «Шоссе Энтузиастов» до «Третьяковской» всего 12 минут на метро, а до станции идти пешком всего 8 минут. Причём прогулка до метро проходит вдоль живописного пруда, что для меня очень важно — я всегда люблю жить рядом с водоёмами. Там действительно красиво и уютно. Фотку сделала - храм приятный рядом. Застройщик — крупнейший в стране. Я узнала у моей подруги, которая тоже купила квартиру у этого застройщика и уже живет в ней, на Большой Академической - она очень довольна и качеством строительства, и управляющей компанией. И вот если сравнить цены - понятно, что на Большой Академической уже все гораздо дороже, а тут пока цены не выросли так. Сфотографировала сами дома, на фото получились розовые, в лучах закатного солнца. :) Я уверена, что проект получится очень красивым! Сейчас многие люди держат деньги на депозитах, и как только условия по ипотеке станут выгоднее, они начнут активно переводить средства из депозитов в недвижимость - цены начнут расти. И я лично не хочу этого дожидаться и платить дороже, подстраховалась заранее.
Ответить
Полезный отзыв?
Добавьте отзыв, заполнив личные данные, или сначала войдите на сайт, тогда информация будет автоматически взята из личного профиля.
Оценка*