Рейтинг@Mail.ru
Переверните экран
Новостройки Квартиры Ипотека Новостройки Москвы Новостройки Подмосковья Новостройки Новой Москвы Готовые новостройки Новостройки на карте Акции от застройщиков Коммерческие помещения Продавцы и застройщики Панорамы новостроек Видеообзор новостроек Экспертиза новостроек Экология Москвы и Подмосковья Студии 1-комнатные 2-комнатные 3-комнатные Квартиры на карте Ипотечный калькулятор Семейная ипотека Военная ипотека Банки и программы Медиа Новости недвижимости Мнение эксперта Аналитика рынка Покупателю Экспертиза новостроек Эксперты и авторы О проекте Контакты Реклама на сайте Vk Youtube Telegram Дзен Машиноместа Апартаменты #траншевая ипотека #рассрочка IT-ипотека Квартиры со скидками до 40% Видео 360° новостроек Субсидированная застройщиком Rutube Поиск дома в Москве Программа реновации в Москве Новостройки премиум-класса Новостройки бизнес-класса Рассрочка Траншевая ипотека ГАЛС Дома и коттеджи Бизнес-центры Бизнес-центры в Москве Бизнес-центры рядом с метро Строящиеся бизнес-центры Бизнес-центры класса A Бизнес-центры класса B ЛСР
Данная квартира является лидером продаж среди двухкомнатных квартир в Level Южнопортовая по данным Росреестра
Данное предложение на 13.12.2025 неактуально. Пожалуйста, ознакомьтесь с другими похожими предложениями в Level Южнопортовая .
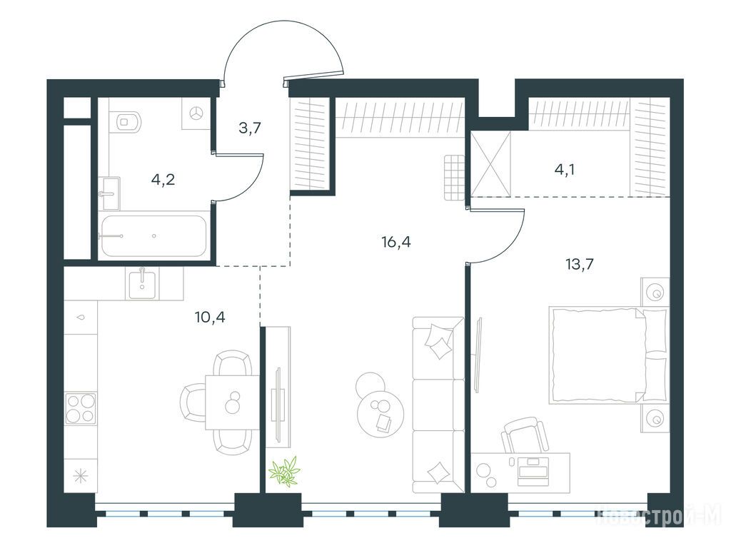
2-комн. квартира, 52.50 м2, 15 этаж
Срок сдачи 1 квартал 2029 года
19 892 548 
28 417 926
378 906 2
обновлено 5 ноября

Описание 2-комн. квартиры

Новостройка
Срок ГК
1 квартал 2029 года
Стадия строительства
котлован/фундамент
Тип проекта
Общая площадь
52.50 м2
Высота потолков
2.70
Этаж
15 / 49
Отделка
нет

Расположение 2-комн. квартиры

Локация
Метро
Станция МЦД
Станция МЦК
Дом
8
Адрес
жилой комплекс Левел Южнопортовая, 8, секция 1

Способы покупки

Особенности

Продается двухкомнатная квартира в новостройке Level Южнопортовая по адресу Москва, ЮВАО, Печатники, жилой комплекс Левел Южнопортовая, 8. Общая площадь квартиры - 52.5 кв. м. Тип проекта, по которому построен дом — Монолит, компания-застройщик — Level Group (Левел Групп), ООО СЗ АПД. Стоимость квартиры — 19 892 548 руб. Способы оплаты можно уточнить у продавца. Срок сдачи — 1 квартал 2029. Более подробная информация по телефону.

Правовые документы

Level Group (Левел Групп)
Level Group (Левел Групп)
Сданных 8
|
Строящихся 18
Время работы 09:00 — 21:00
Онлайн-сделка
Выбирайте квартиры и помещения в Level Южнопортовая по ценам от застройщика
Посмотреть все спецпредложения
студия 31,70 м2 15 425 119
Этаж 22/49
Москва, Level Южнопортовая
Кожуховская
10 мин.
Строится
1-комн. квартира 38,50 м2 17 597 185
Этаж 18/49
Москва, Level Южнопортовая
Кожуховская
10 мин.
Строится
2-комн. квартира 64,80 м2 21 869 470
Этаж 20/49
Москва, Level Южнопортовая
Кожуховская
10 мин.
Строится
3-комн. квартира 85,10 м2 31 553 943
Этаж 41/49
Москва, Level Южнопортовая
Кожуховская
10 мин.
Строится
Этаж 31/49
Москва, Level Южнопортовая
Кожуховская
10 мин.
Строится
Этаж 4/68
Москва, Level Южнопортовая
Кожуховская
10 мин.
Строится
Этаж 7/68
Москва, Level Южнопортовая
Кожуховская
10 мин.
Строится
Этаж 20/68
Москва, Level Южнопортовая
Кожуховская
10 мин.
Строится
Посмотреть 24 квартиры в Level Южнопортовая
Этаж 4/68
Москва, Level Южнопортовая
Кожуховская
10 мин.
Строится
Этаж 23/68
Москва, Level Южнопортовая
Кожуховская
10 мин.
Строится
1-комн. квартира 33,60 м2 19 394 840
Этаж 50/68
Москва, Level Южнопортовая
Кожуховская
10 мин.
Строится
1-комн. квартира 33,70 м2 18 839 309
Этаж 48/68
Москва, Level Южнопортовая
Кожуховская
10 мин.
Строится
Посмотреть 178 квартир в Level Южнопортовая
Этаж 23/68
Москва, Level Южнопортовая
Кожуховская
10 мин.
Строится
2-комн. квартира 45,70 м2 18 627 536
Этаж 14/16
Москва, Level Южнопортовая
Кожуховская
10 мин.
Строится
Этаж 20/68
Москва, Level Южнопортовая
Кожуховская
10 мин.
Строится
2-комн. квартира 46,70 м2 19 374 627
Этаж 5/16
Москва, Level Южнопортовая
Кожуховская
10 мин.
Строится
Посмотреть 134 квартиры в Level Южнопортовая
3-комн. квартира 55,80 м2 24 798 028
Этаж 67/68
Москва, Level Южнопортовая
Кожуховская
10 мин.
Строится
3-комн. квартира 57,40 м2 24 453 267
Этаж 46/47
Москва, Level Южнопортовая
Кожуховская
10 мин.
Строится
3-комн. квартира 62,20 м2 25 769 032
Этаж 28/49
Москва, Level Южнопортовая
Кожуховская
10 мин.
Строится
3-комн. квартира 62,50 м2 23 996 918
Этаж 14/20
Москва, Level Южнопортовая
Кожуховская
10 мин.
Строится
Посмотреть 100 квартир в Level Южнопортовая
4-комн. квартира 77,90 м2 33 373 309
Этаж 63/68
Москва, Level Южнопортовая
Кожуховская
10 мин.
Строится
4-комн. квартира 81,00 м2 33 633 089
Этаж 46/47
Москва, Level Южнопортовая
Кожуховская
10 мин.
Строится
4-комн. квартира 84,60 м2 50 050 829
Этаж 36/47
Москва, Level Южнопортовая
Кожуховская
10 мин.
Строится
4-комн. квартира 89,10 м2 29 705 080
Этаж 11/16
Москва, Level Южнопортовая
Кожуховская
10 мин.
Строится
Посмотреть 16 квартир в Level Южнопортовая
5-комн. квартира 108,50 м2 45 212 060
Этаж 68/69
Москва, Level Южнопортовая
Кожуховская
10 мин.
Строится
5-комн. квартира 113,00 м2 46 896 609
Этаж 68/68
Москва, Level Южнопортовая
Кожуховская
10 мин.
Строится
помещение-студия 24,10 м2 11 329 768
Этаж 5/23
Москва, Level Южнопортовая
Кожуховская
10 мин.
Строится
1-комн. помещение 36,50 м2 20 728 922
Этаж 14/23
Москва, Level Южнопортовая
Кожуховская
10 мин.
Строится
2-комн. помещение 50,30 м2 17 284 054
Этаж 4/13
Москва, Level Южнопортовая
Кожуховская
10 мин.
Строится
3-комн. помещение 49,30 м2 20 076 887
Этаж 5/23
Москва, Level Южнопортовая
Кожуховская
10 мин.
Строится

Скидки и спецпредложения от застройщиков

Level Южнопортовая на карте

Выгодные предложения на новостройки

Отзывы о Level Южнопортовая

Самый полезный отзыв
А
20 декабря 2021
Оценка:
Слышу не первый раз, что Левел новый проект запускает. Печатники район знаю, так, что был бы не против узнать подробнее, что застрой предлагает. У кого-то есть больше инфы, кроме анонса?
Показать все комментарии
Ответить
Полезный отзыв?
Самый новый отзыв
ЕП
16 июля
Оценка:
Планировки
Способы покупки
Внешний вид фасада
Двор, окружение
Обнадёживает, шесть домов уже построено и готовится к комиссии, процесс идёт. Всего планируется 14 домов, масштабный проект. Комплекс выглядит современно и перспективно, активно развивается. Надеюсь, качество строительства будет на высоте и остальные дома сдадут в срок.
Ответить
Полезный отзыв?
Добавьте отзыв, заполнив личные данные, или сначала войдите на сайт, тогда информация будет автоматически взята из личного профиля.
Оценка*