Рейтинг@Mail.ru
Переверните экран
Новостройки Квартиры Ипотека Новостройки Москвы Новостройки Подмосковья Новостройки Новой Москвы Готовые новостройки Новостройки на карте Акции от застройщиков Коммерческие помещения Продавцы и застройщики Панорамы новостроек Видеообзор новостроек Экспертиза новостроек Экология Москвы и Подмосковья Студии 1-комнатные 2-комнатные 3-комнатные Квартиры на карте Ипотечный калькулятор Семейная ипотека Военная ипотека Банки и программы Медиа Новости недвижимости Мнение эксперта Аналитика рынка Покупателю Экспертиза новостроек Эксперты и авторы О проекте Контакты Реклама на сайте Vk Youtube Telegram Дзен Машиноместа Апартаменты #траншевая ипотека #рассрочка ИТ-ипотека Квартиры со скидками до 40% Видео 360° новостроек Субсидированная застройщиком Rutube Поиск дома в Москве Программа реновации в Москве Новостройки премиум-класса Новостройки бизнес-класса Рассрочка Траншевая ипотека Дома и коттеджи Бизнес-центры Бизнес-центры в Москве Бизнес-центры рядом с метро Строящиеся бизнес-центры Бизнес-центры класса A Бизнес-центры класса B Ипотека со ставкой 0,1%
Данная квартира является лидером продаж среди двухкомнатных квартир в Кутузовском квартале по данным Росреестра
Данное предложение на 13.03.2026 неактуально. Пожалуйста, ознакомьтесь с другими похожими предложениями в Кутузовский квартал .
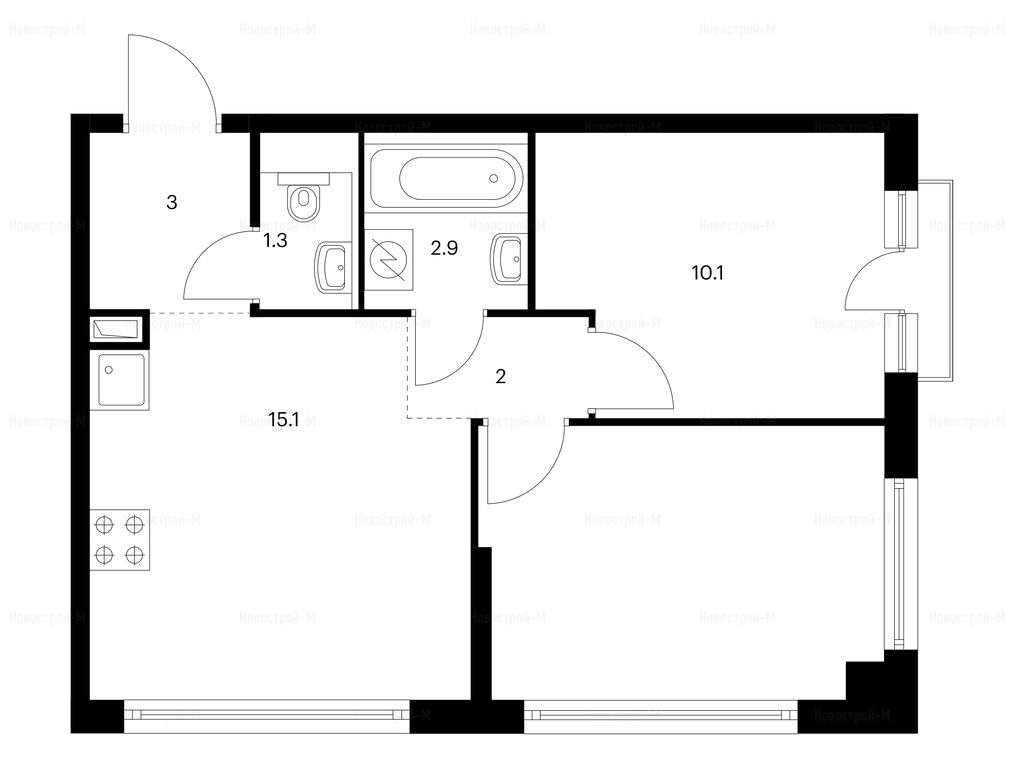
2-комн. квартира, 46.20 м2, 8 этаж
Срок сдачи 2 квартал 2026 года
29 641 920 
641 600 2
обновлено 27 января

Описание 2-комн. квартиры

Новостройка
Застройщик
Срок ГК
2 квартал 2026 года
Тип проекта
Общая площадь
46.20 м2
Жилая площадь
20.20 м2
Площадь кухни
15.10 м2
Этаж
8 / 30
Отделка
чистовая
Грузовой лифт
есть

Расположение 2-комн. квартиры

Локация
Станция МЦД
Станция МЦК
Дом
3
Адрес
ул. Ивана Франко, корп.3, секция 2

Особенности

Продается двухкомнатная квартира в новостройке Кутузовский квартал по адресу Москва, ЗАО, Кунцево, ул. Ивана Франко, корп.3. Общая площадь квартиры - 46.2 кв. м. Тип проекта, по которому построен дом — Монолит, компания-застройщик — ПИК, АО СЗ Монетчик. Стоимость квартиры — 29 641 920 руб. Способы оплаты можно уточнить у продавца. Срок сдачи — 2 квартал 2026. Более подробная информация по телефону.
ПИК
ПИК
Сданных 96
|
Строящихся 38
Время работы 02:00 — 21:00
Онлайн-сделка
Выбирайте квартиру в Кутузовский квартал по ценам от застройщика
Этаж 3/30
Москва, Кутузовский квартал
Кунцевская
9 мин.
Строится
1-комн. квартира 33,50 м2 23 929 050
Этаж 1/30
Москва, Кутузовский квартал
Кунцевская
9 мин.
Строится
Этаж 3/30 лоджия
Москва, Кутузовский квартал
Кунцевская
9 мин.
Строится
1-комн. квартира 35,80 м2 26 098 200
Этаж 30/30
Москва, Кутузовский квартал
Кунцевская
9 мин.
Строится
1-комн. квартира 33,50 м2 23 929 050
Этаж 1/30
Москва, Кутузовский квартал
Кунцевская
9 мин.
Строится
1-комн. квартира 39,20 м2 28 812 000
Этаж 1/23
Москва, Кутузовский квартал
Кунцевская
9 мин.
Строится
1-комн. квартира 39,80 м2 30 454 960
Этаж 30/30
Москва, Кутузовский квартал
Кунцевская
9 мин.
Строится
2-комн. квартира 56,50 м2 32 967 750
Этаж 2/23 лоджия
Москва, Кутузовский квартал
Кунцевская
9 мин.
Строится
2-комн. квартира 57,70 м2 33 789 120
Этаж 21/23 лоджия
Москва, Кутузовский квартал
Кунцевская
9 мин.
Строится
3-комн. квартира 77,80 м2 44 447 140
Этаж 2/30
Москва, Кутузовский квартал
Кунцевская
9 мин.
Строится
3-комн. квартира 78,10 м2 46 578 840
Этаж 30/30
Москва, Кутузовский квартал
Кунцевская
9 мин.
Строится
3-комн. квартира 80,10 м2 44 639 730
Этаж 2/23
Москва, Кутузовский квартал
Кунцевская
9 мин.
Строится
3-комн. квартира 82,30 м2 46 474 810
Этаж 5/30
Москва, Кутузовский квартал
Кунцевская
9 мин.
Строится

Скидки и спецпредложения от застройщиков

Кутузовский квартал на карте

Выгодные предложения на новостройки

Отзывы о Кутузовском квартале

Самый полезный отзыв
А
08 ноября 2023
Оценка:
Достоинства
Транспортная доступность
Экология
Планировки
Расположение
Недостатки
Готовность
Присмотрели сыну студию в Кутузовском квартале. К 2026 году он как раз закончит школу, и поступит в универ. Цены, конечно, не низкие, хотя на старте продаж они обычно ниже. Но надеемся попасть на акцию и взять ипотеку под хороший %. Думаю, к тому времени, как сдадут первый корпус, платеж будет вполне сопоставим с арендной платой. В принципе, район престижный, метро недалеко и вузов рядом хватает. Будем думать, немного времени есть еще.
Ответить
Самый новый отзыв
И
28 июня 2025
Оценка:
Достоинства
Транспортная доступность
Социальная инфраструктура
Планировки
Готовность
Внешний вид фасада
Отличный район, транспортная доступность
Ответить

Оставить отзыв

Добавьте отзыв, заполнив личные данные, или сначала войдите на сайт, тогда информация будет автоматически взята из личного профиля.
Оценка*