Рейтинг@Mail.ru
Переверните экран
Новостройки Квартиры Ипотека Новостройки Москвы Новостройки Подмосковья Новостройки Новой Москвы Готовые новостройки Новостройки на карте Акции от застройщиков Коммерческие помещения Продавцы и застройщики Панорамы новостроек Видеообзор новостроек Экспертиза новостроек Экология Москвы и Подмосковья Студии 1-комнатные 2-комнатные 3-комнатные Квартиры на карте Ипотечный калькулятор Семейная ипотека Военная ипотека Банки и программы Медиа Новости недвижимости Мнение эксперта Аналитика рынка Покупателю Экспертиза новостроек Эксперты и авторы О проекте Контакты Реклама на сайте Vk Youtube Telegram Дзен Машиноместа Апартаменты #траншевая ипотека #рассрочка ИТ-ипотека Квартиры со скидками до 40% Видео 360° новостроек Субсидированная застройщиком Rutube Поиск дома в Москве Программа реновации в Москве Новостройки премиум-класса Новостройки бизнес-класса Рассрочка Траншевая ипотека Дома и коттеджи Бизнес-центры Бизнес-центры в Москве Бизнес-центры рядом с метро Строящиеся бизнес-центры Бизнес-центры класса A Бизнес-центры класса B Ипотека со ставкой 0,1%
Данная квартира является лидером продаж среди двухкомнатных квартир в Городе-парке «Первый Московский» по данным Росреестра
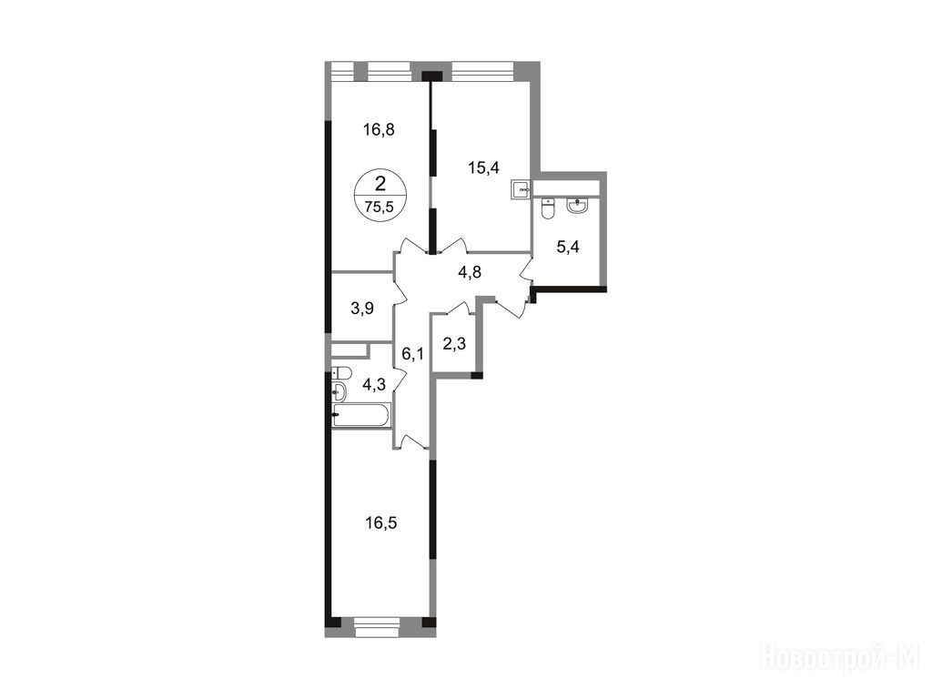
2-комн. квартира, 75.50 м2, 19 этаж
Срок сдачи 1 квартал 2029 года
20 320 297 
269 143 2
обновлено 29 марта

Описание 2-комн. квартиры

Срок ГК
1 квартал 2029 года
Стадия строительства
котлован/фундамент
Тип проекта
Общая площадь
75.50 м2
Жилая площадь
33.30 м2
Площадь кухни
15.40 м2
Этаж
19 / 22
Отделка
предчистовая
Стоимость эксплуатации
~ 38 руб./м2

Расположение 2-комн. квартиры

Локация
Метро
Станция МЦД
Дом
5 (фаза 11)
Адрес
мкр. Первый Московский, Город-парк «Первый Московский», секция 2

Способы покупки

Особенности

Продается двухкомнатная квартира в новостройке Город-парк «Первый Московский» по адресу Москва, ТиНАО, Новомосковский АО, Московский Г/П, мкр. Первый Московский, Город-парк «Первый Московский». Общая площадь квартиры - 75.5 кв. м. Тип проекта, по которому построен дом — Монолит,Панельный,Монолитно-каркасный, компания-застройщик — Абсолют Недвижимость, ООО «Первый Московский». Стоимость квартиры — 20 320 297 руб. Способы оплаты можно уточнить у продавца. Срок сдачи — 1 квартал 2029. Более подробная информация по телефону.

Правовые документы

Инфоцентр новостроек
Инфоцентр новостроек
+7 (499) 705-91-41
Время работы 9:00 — 21:00

Похожие квартиры в Городе-парке «Первый Московский»

3 этаж
из 22 1 квартал 2029
Москва, Новомосковский АО
Филатов луг
10 мин.
5 (фаза 11)
Корпус
предчистовая
Отделка
2.73 м
Потолки
Город-парк «Первый Московский»
18 634 948
СберБанк, Альфа-Банк, Азиатско-Тихоокеанский Банк, ВТБ, Совкомбанк, Россельхозбанк, Металлинвестбанк, Банк Санкт-Петербург, Абсолют Банк, Банк Россия, ДОМ.РФ, Московский Кредитный Банк
3.50%
Ставка
40.10%
Первый взнос
от 83 679 /мес.
Все варианты
12 этаж
из 22 1 квартал 2029
Москва, Новомосковский АО
Филатов луг
10 мин.
5 (фаза 11)
Корпус
предчистовая
Отделка
2.73 м
Потолки
Город-парк «Первый Московский»
19 937 963
СберБанк, Альфа-Банк, Азиатско-Тихоокеанский Банк, ВТБ, Совкомбанк, Россельхозбанк, Металлинвестбанк, Банк Санкт-Петербург, Абсолют Банк, Банк Россия, ДОМ.РФ, Московский Кредитный Банк
3.50%
Ставка
40.10%
Первый взнос
от 89 530 /мес.
Все варианты
Этаж 6/20
НМ, Город-парк «Первый Московский»
Филатов луг
10 мин.
Строится
студия 21,10 м2 10 071 469
Этаж 16/19
НМ, Город-парк «Первый Московский»
Филатов луг
10 мин.
Строится
студия 21,50 м2 9 502 041
Этаж 13/20
НМ, Город-парк «Первый Московский»
Филатов луг
10 мин.
Строится
студия 21,60 м2 10 194 948
Этаж 14/20
НМ, Город-парк «Первый Московский»
Филатов луг
10 мин.
Строится
Посмотреть 37 квартир в Городе-парке «Первый Московский»
1-комн. квартира 32,90 м2 12 335 075
Этаж 17/20
НМ, Город-парк «Первый Московский»
Филатов луг
10 мин.
Строится
1-комн. квартира 33,20 м2 13 130 941
Этаж 15/20
НМ, Город-парк «Первый Московский»
Филатов луг
10 мин.
Строится
1-комн. квартира 33,40 м2 12 932 735
Этаж 9/20
НМ, Город-парк «Первый Московский»
Филатов луг
10 мин.
Сдан
1-комн. квартира 34,50 м2 13 528 414
Этаж 14/19
НМ, Город-парк «Первый Московский»
Филатов луг
10 мин.
Строится
Посмотреть 175 квартир в Городе-парке «Первый Московский»
2-комн. квартира 51,50 м2 17 917 072
Этаж 11/19
НМ, Город-парк «Первый Московский»
Филатов луг
10 мин.
Строится
Этаж 1/19
НМ, Город-парк «Первый Московский»
Филатов луг
10 мин.
Строится
2-комн. квартира 52,80 м2 18 281 468
Этаж 14/20
НМ, Город-парк «Первый Московский»
Филатов луг
10 мин.
Строится
2-комн. квартира 53,10 м2 17 063 444
Этаж 19/20
НМ, Город-парк «Первый Московский»
Филатов луг
10 мин.
Строится
Посмотреть 184 квартиры в Городе-парке «Первый Московский»
3-комн. квартира 72,60 м2 21 207 009
Этаж 16/20
НМ, Город-парк «Первый Московский»
Филатов луг
10 мин.
Строится
3-комн. квартира 73,70 м2 21 650 040
Этаж 9/19
НМ, Город-парк «Первый Московский»
Филатов луг
10 мин.
Строится
3-комн. квартира 74,10 м2 22 116 987
Этаж 2/19
НМ, Город-парк «Первый Московский»
Филатов луг
10 мин.
Строится
3-комн. квартира 74,30 м2 22 373 146
Этаж 8/20
НМ, Город-парк «Первый Московский»
Филатов луг
10 мин.
Строится
Посмотреть 82 квартиры в Городе-парке «Первый Московский»
4-комн. квартира 101,50 м2 27 857 100
Этаж 18/20
НМ, Город-парк «Первый Московский»
Филатов луг
10 мин.
Строится
4-комн. квартира 102,40 м2 24 654 818
Этаж 12/20
НМ, Город-парк «Первый Московский»
Филатов луг
10 мин.
Строится
4-комн. квартира 104,00 м2 26 426 313
Этаж 18/20
НМ, Город-парк «Первый Московский»
Филатов луг
10 мин.
Сдан
4-комн. квартира 115,50 м2 34 980 293
Этаж 17/21
НМ, Город-парк «Первый Московский»
Филатов луг
10 мин.
Сдан
Посмотреть 7 квартир в Городе-парке «Первый Московский»

Скидки и спецпредложения от застройщиков

Город-парк «Первый Московский» на карте

Выгодные предложения на новостройки

Самый полезный отзыв
А
12 февраля 2019
Оценка:
Достоинства
Экология
Двор, окружение
В квартире нормальная звукоизоляция, бывает слышно соседей, но очень редко (может у нас соседи просто тихие). Стеклопакеты и качество самого дома хорошее, зимой не холодно, летом не жарко. Что касается транспорта, то с ним все довольно скудно, но пока это не стало огромной проблемой, все необходимое есть рядом. Хороший лесопарк рядом с жк, можно гулять.
Ответить
Самый новый отзыв
АС
10 марта
Оценка:
Достоинства
Планировки
В продаже осталось около 330 квартир, выбор ещё есть, но многие лоты уже разобраны.
Ответить

Оставить отзыв

Добавьте отзыв, заполнив личные данные, или сначала войдите на сайт, тогда информация будет автоматически взята из личного профиля.
Оценка*