Рейтинг@Mail.ru
Переверните экран
Новостройки Квартиры Ипотека Новостройки Москвы Новостройки Подмосковья Новостройки Новой Москвы Готовые новостройки Новостройки на карте Акции от застройщиков Коммерческие помещения Продавцы и застройщики Панорамы новостроек Видеообзор новостроек Экспертиза новостроек Экология Москвы и Подмосковья Студии 1-комнатные 2-комнатные 3-комнатные Квартиры на карте Ипотечный калькулятор Семейная ипотека Военная ипотека Банки и программы Медиа Новости недвижимости Мнение эксперта Аналитика рынка Покупателю Экспертиза новостроек Эксперты и авторы О проекте Контакты Реклама на сайте Vk Youtube Telegram Дзен Машиноместа Апартаменты #траншевая ипотека #рассрочка IT-ипотека Квартиры со скидками до 40% Видео 360° новостроек Субсидированная застройщиком Rutube Поиск дома в Москве Программа реновации в Москве Новостройки премиум-класса Новостройки бизнес-класса Рассрочка Траншевая ипотека ГАЛС Дома и коттеджи Бизнес-центры Бизнес-центры в Москве Бизнес-центры рядом с метро Строящиеся бизнес-центры Бизнес-центры класса A Бизнес-центры класса B ЛСР
Данная квартира является лидером продаж среди двухкомнатных квартир в Городе-парке «Переделкино Ближнее» по данным Росреестра
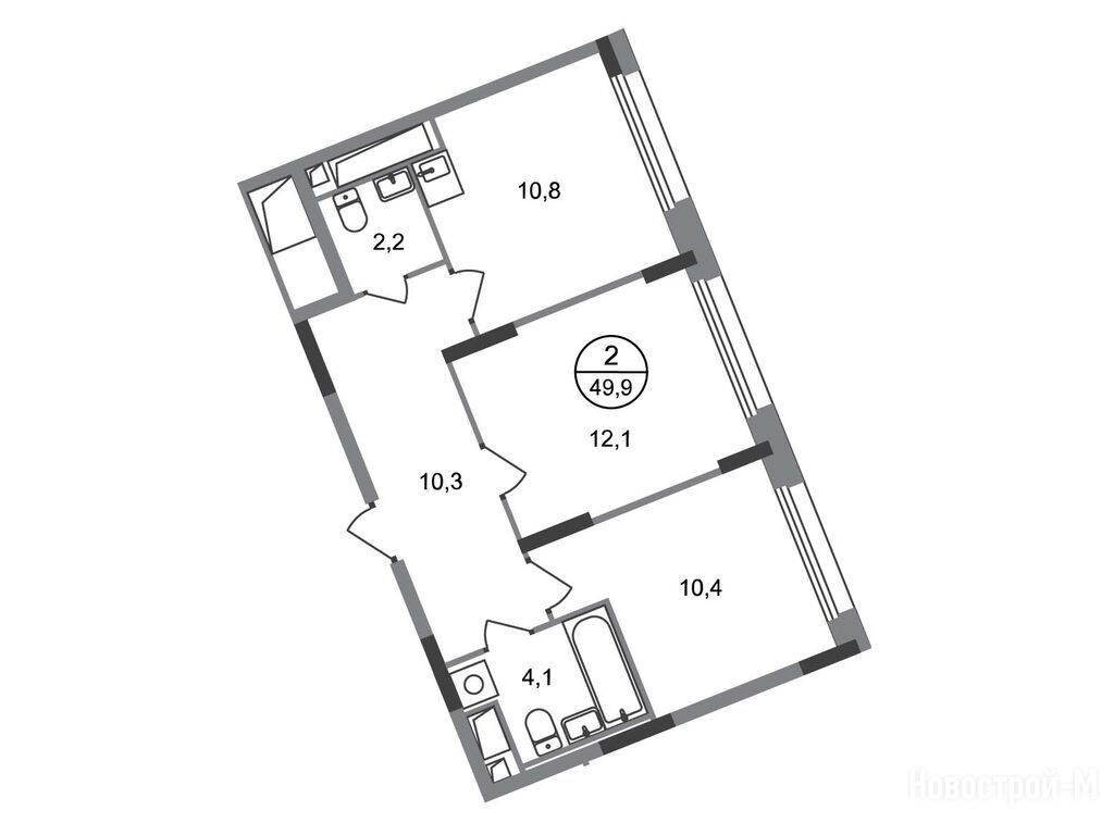
2-комн. квартира, 49.90 м2, 4 этаж
Срок сдачи 2 квартал 2026 года
17 886 598 
358 449 2
обновлено 5 декабря

Описание 2-комн. квартиры

Срок ГК
2 квартал 2026 года
Стадия строительства
монтаж верхних этажей
Тип проекта
Общая площадь
49.90 м2
Этаж
4 / 17
Отделка
нет
Грузовой лифт
есть
Стоимость эксплуатации
~ 39 руб./м2

Расположение 2-комн. квартиры

Локация
Метро
Станция МЦД
Станция МЦК
Дом
2 (18 фаза)
Адрес
д. Рассказовка, секция 10

Способы покупки

Особенности

Продается двухкомнатная квартира в новостройке Город-парк «Переделкино Ближнее» по адресу Москва, ТиНАО, Новомосковский АО, Внуковское С/П, д. Рассказовка. Общая площадь квартиры - 49.9 кв. м. Тип проекта, по которому построен дом — Монолит,Панельный,Блочный, компания-застройщик — ООО «Переделкино Ближнее». Стоимость квартиры — 17 886 598 руб. Способы оплаты можно уточнить у продавца. Срок сдачи — 2 квартал 2026. Более подробная информация по телефону.

Правовые документы

Инфоцентр новостроек
Инфоцентр новостроек
+7 (499) 705-91-41
Время работы 9:00 — 21:00
Посмотреть все спецпредложения
студия 24,80 м2 10 184 450
Этаж 2/7
НМ, Город-парк «Переделкино Ближнее»
Рассказовка
7 мин.
Строится
студия 25,30 м2 10 074 940
Этаж 1/7
НМ, Город-парк «Переделкино Ближнее»
Рассказовка
7 мин.
Строится
студия 25,60 м2 10 143 434
Этаж 1/7
НМ, Город-парк «Переделкино Ближнее»
Рассказовка
7 мин.
Строится
студия 26,00 м2 10 087 224
Этаж 8/17
НМ, Город-парк «Переделкино Ближнее»
Рассказовка
7 мин.
Строится
Посмотреть 24 квартиры в Городе-парке «Переделкино Ближнее»
Этаж 5/8
НМ, Город-парк «Переделкино Ближнее»
Рассказовка
7 мин.
Строится
Этаж 8/8
НМ, Город-парк «Переделкино Ближнее»
Рассказовка
7 мин.
Строится
Этаж 3/8
НМ, Город-парк «Переделкино Ближнее»
Рассказовка
7 мин.
Строится
Этаж 6/8
НМ, Город-парк «Переделкино Ближнее»
Рассказовка
7 мин.
Строится
Посмотреть 148 квартир в Городе-парке «Переделкино Ближнее»
2-комн. квартира 39,80 м2 14 581 670
Этаж 9/17
НМ, Город-парк «Переделкино Ближнее»
Рассказовка
7 мин.
Строится
2-комн. квартира 44,50 м2 16 307 140
Этаж 6/17
НМ, Город-парк «Переделкино Ближнее»
Рассказовка
7 мин.
Строится
2-комн. квартира 47,40 м2 15 999 540
Этаж 8/17
НМ, Город-парк «Переделкино Ближнее»
Рассказовка
7 мин.
Строится
2-комн. квартира 53,10 м2 19 502 141
Этаж 6/8
НМ, Город-парк «Переделкино Ближнее»
Рассказовка
7 мин.
Строится
Посмотреть 244 квартиры в Городе-парке «Переделкино Ближнее»
3-комн. квартира 64,80 м2 18 564 446
Этаж 2/17
НМ, Город-парк «Переделкино Ближнее»
Рассказовка
7 мин.
Строится
3-комн. квартира 66,10 м2 18 809 365
Этаж 1/17
НМ, Город-парк «Переделкино Ближнее»
Рассказовка
7 мин.
Строится
3-комн. квартира 68,70 м2 20 399 286
Этаж 12/17
НМ, Город-парк «Переделкино Ближнее»
Рассказовка
7 мин.
Строится
3-комн. квартира 73,90 м2 21 499 312
Этаж 2/7
НМ, Город-парк «Переделкино Ближнее»
Рассказовка
7 мин.
Строится
Посмотреть 108 квартир в Городе-парке «Переделкино Ближнее»
4-комн. квартира 104,90 м2 30 201 273
Этаж 13/17
НМ, Город-парк «Переделкино Ближнее»
Рассказовка
7 мин.
Строится
4-комн. квартира 106,80 м2 33 507 273
Этаж 16/17
НМ, Город-парк «Переделкино Ближнее»
Рассказовка
7 мин.
Строится
4-комн. квартира 107,10 м2 34 235 796
Этаж 17/17
НМ, Город-парк «Переделкино Ближнее»
Рассказовка
7 мин.
Строится
4-комн. квартира 107,20 м2 35 409 893
Этаж 15/17
НМ, Город-парк «Переделкино Ближнее»
Рассказовка
7 мин.
Строится
Посмотреть 11 квартир в Городе-парке «Переделкино Ближнее»

Скидки и спецпредложения от застройщиков

Город-парк «Переделкино Ближнее» на карте

Выгодные предложения на новостройки

Самый полезный отзыв
Н
28 мая 2018
Оценка:
Планировки
Внешний вид фасада
Двор, окружение
Расположение
Такой грандиозный проект! А сегодня в инете вычитала, что Москомархитектура согласовала проекты пяти кварталов жилого комплекса «Переделкино Ближнее» в Новой Москве. Жизнь продолжается, что бы там не говорили: кризис, везде разруха...!
Ответить
Полезный отзыв?
Самый новый отзыв
Г
05 октября
Оценка:
Социальная инфраструктура
Двор, окружение
Забрали ключи в 17 фазе Переделкино Ближнего. Просторные комнаты, большие окна, много света. Особенно радует вид на рассветы. Район удобный, инфраструктура развита, всё необходимое рядом. С нетерпением жду, когда закончим ремонт и переедем!
Ответить
Полезный отзыв?
Добавьте отзыв, заполнив личные данные, или сначала войдите на сайт, тогда информация будет автоматически взята из личного профиля.
Оценка*