Рейтинг@Mail.ru
Переверните экран
Новостройки Квартиры Ипотека Новостройки Москвы Новостройки Подмосковья Новостройки Новой Москвы Готовые новостройки Новостройки на карте Акции от застройщиков Коммерческие помещения Продавцы и застройщики Панорамы новостроек Видеообзор новостроек Экспертиза новостроек Экология Москвы и Подмосковья Студии 1-комнатные 2-комнатные 3-комнатные Квартиры на карте Ипотечный калькулятор Семейная ипотека Военная ипотека Банки и программы Медиа Новости недвижимости Мнение эксперта Аналитика рынка Покупателю Экспертиза новостроек Эксперты и авторы О проекте Контакты Реклама на сайте Vk Youtube Telegram Дзен Машиноместа Апартаменты #траншевая ипотека #рассрочка IT-ипотека Квартиры со скидками до 40% Видео 360° новостроек Субсидированная застройщиком Rutube Поиск дома в Москве Программа реновации в Москве Новостройки премиум-класса Новостройки бизнес-класса Рассрочка Траншевая ипотека ГАЛС Дома и коттеджи Бизнес-центры Бизнес-центры в Москве Бизнес-центры рядом с метро Строящиеся бизнес-центры Бизнес-центры класса A Бизнес-центры класса B ЛСР
Данная квартира является лидером продаж среди четырехкомнатных квартир в ЖК Luzhniki Collection (Коллекция Лужники) по данным Росреестра
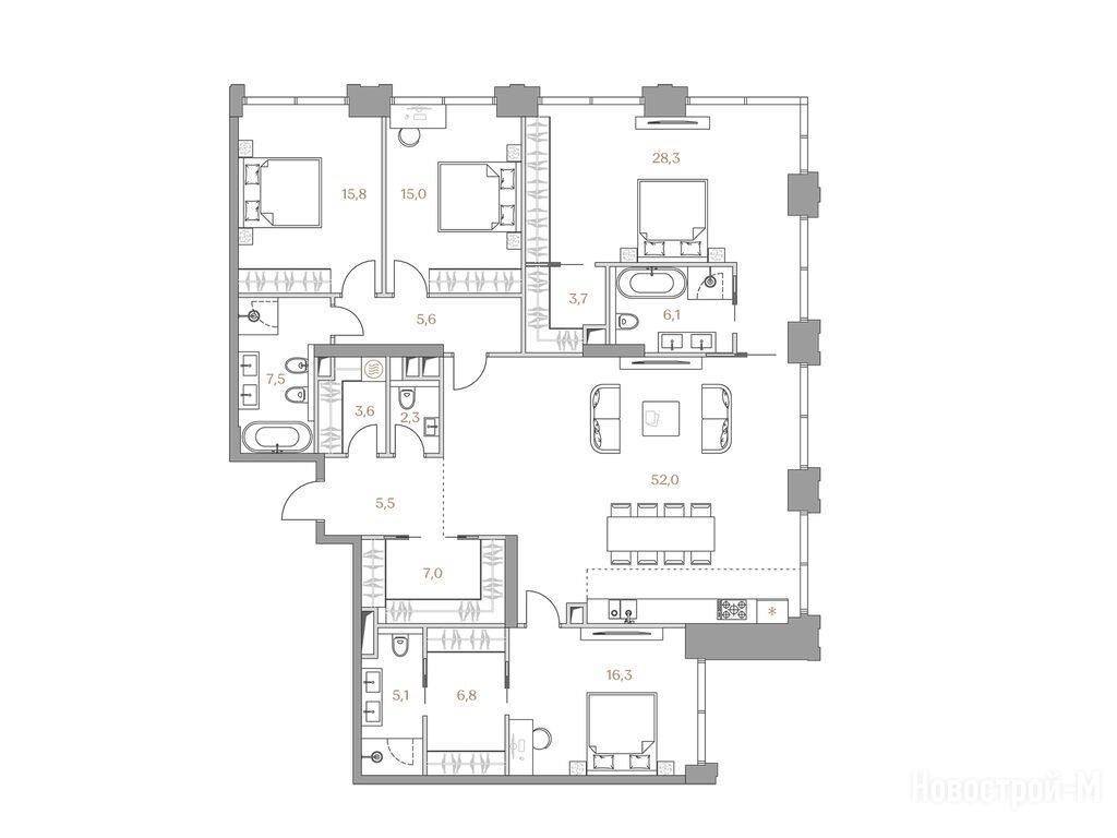
4-комн. квартира, 180.60 м2, 12 этаж
Срок сдачи 4 квартал 2027 года
348 846 000 
1 931 595 2
обновлено 5 декабря

Описание 4-комн. квартиры

Застройщик
Срок ГК
4 квартал 2027 года
Стадия строительства
котлован/фундамент
Тип проекта
Общая площадь
180.60 м2
Жилая площадь
75.40 м2
Площадь кухни
52.00 м2
Этаж
12 / 17
Отделка
нет

Расположение 4-комн. квартиры

Локация
Станция МЦК
Лужники
17 мин.
Дом
G3
Адрес
наб. Лужнецкая, д. 2/4, стр. В3, секция В3

Способы покупки

Особенности

Продается четырехкомнатная квартира в новостройке ЖК Luzhniki Collection (Коллекция Лужники) по адресу Москва, ЦАО, Хамовники, наб. Лужнецкая, д. 2/4, стр. В3. Общая площадь квартиры - 180.6 кв. м. Тип проекта, по которому построен дом — Монолит, компания-застройщик — Абсолют Премиум, ООО «СЗ «Грандсоюзинвест» . Стоимость квартиры — 348 846 000 руб. Способы оплаты можно уточнить у продавца. Срок сдачи — 4 квартал 2027. Более подробная информация по телефону.
Инфоцентр новостроек
Инфоцентр новостроек
+7 (499) 705-91-41
Время работы 9:00 — 21:00

Похожие квартиры в ЖК Luzhniki Collection (Коллекция Лужники)

10 этаж
из 17 4 квартал 2027
Москва, ЦАО
Воробьевы Горы
15 мин.
G3
Корпус
нет
Отделка
3.25 м
Потолки
ЖК Luzhniki Collection (Коллекция Лужники)
330 116 000
Московский Кредитный Банк, ВТБ, Альфа-Банк, СберБанк, Банк Санкт-Петербург, Банк Россия, Абсолют Банк, Металлинвестбанк, Россельхозбанк, РайффайзенБанк
6.00%
Ставка
50.01%
Первый взнос
от 1 979 212 /мес.
Все варианты
Посмотреть все спецпредложения
1-комн. квартира 49,80 м2 71 874 000
Этаж 9/18
Москва, ЖК Luzhniki Collection (Коллекция Лужники)
Воробьевы Горы
15 мин.
Строится
1-комн. квартира 55,00 м2 79 315 000
Этаж 9/18
Москва, ЖК Luzhniki Collection (Коллекция Лужники)
Воробьевы Горы
15 мин.
Строится
1-комн. квартира 60,70 м2 97 159 000
Этаж 7/18
Москва, ЖК Luzhniki Collection (Коллекция Лужники)
Воробьевы Горы
15 мин.
Строится
1-комн. квартира 63,00 м2 93 911 000
Этаж 7/16
Москва, ЖК Luzhniki Collection (Коллекция Лужники)
Воробьевы Горы
15 мин.
Строится
Посмотреть 15 квартир в ЖК Luzhniki Collection (Коллекция Лужники)
2-комн. квартира 49,70 м2 78 402 000
Этаж 4/12
Москва, ЖК Luzhniki Collection (Коллекция Лужники)
Воробьевы Горы
15 мин.
Строится
2-комн. квартира 49,80 м2 73 093 000
Этаж 5/17
Москва, ЖК Luzhniki Collection (Коллекция Лужники)
Воробьевы Горы
15 мин.
Строится
2-комн. квартира 60,70 м2 103 631 000
Этаж 5/12
Москва, ЖК Luzhniki Collection (Коллекция Лужники)
Воробьевы Горы
15 мин.
Строится
2-комн. квартира 80,50 м2 130 924 000
Этаж 4/17
Москва, ЖК Luzhniki Collection (Коллекция Лужники)
Воробьевы Горы
15 мин.
Строится
Посмотреть 42 квартиры в ЖК Luzhniki Collection (Коллекция Лужники)
3-комн. квартира 105,10 м2 192 859 000
Этаж 11/16
Москва, ЖК Luzhniki Collection (Коллекция Лужники)
Воробьевы Горы
15 мин.
Строится
Этаж 15/18
Москва, ЖК Luzhniki Collection (Коллекция Лужники)
Воробьевы Горы
15 мин.
Строится
3-комн. квартира 122,20 м2 196 289 000
Этаж 11/17
Москва, ЖК Luzhniki Collection (Коллекция Лужники)
Воробьевы Горы
15 мин.
Строится
Этаж 8/12
Москва, ЖК Luzhniki Collection (Коллекция Лужники)
Воробьевы Горы
15 мин.
Строится
Посмотреть 41 квартира в ЖК Luzhniki Collection (Коллекция Лужники)
Этаж 16/18
Москва, ЖК Luzhniki Collection (Коллекция Лужники)
Воробьевы Горы
15 мин.
Строится
Этаж 14/17
Москва, ЖК Luzhniki Collection (Коллекция Лужники)
Воробьевы Горы
15 мин.
Строится
Этаж 8/12
Москва, ЖК Luzhniki Collection (Коллекция Лужники)
Воробьевы Горы
15 мин.
Строится
Этаж 10/17
Москва, ЖК Luzhniki Collection (Коллекция Лужники)
Воробьевы Горы
15 мин.
Строится
Посмотреть 10 квартир в ЖК Luzhniki Collection (Коллекция Лужники)

Скидки и спецпредложения от застройщиков

ЖК Luzhniki Collection (Коллекция Лужники) на карте

Выгодные предложения на новостройки

Отзывы о ЖК Luzhniki Collection (Коллекция Лужники)

Самый полезный отзыв
ОМ
21 ноября 2022
Оценка:
Транспортная доступность
Подземный паркинг
Двор, окружение
Расположение
Готовность
Место хорошее. Пока только площадку расчищают под застройку, не очень понятно, каким будет проект. Но справедливо, что место отдано под премиум комплекс. Виды на реку намечаются шикарные) Жду развития проекта - интересно, что тут получится.
Показать все комментарии
Ответить
Полезный отзыв?
Самый новый отзыв
П
29 августа
Оценка:
Транспортная доступность
Социальная инфраструктура
Планировки
Расположение
Готовность
Скорость строительства
+: 1. Большой пул самых востребованных семейных квартир с двумя-тремя спальнями. 2. Строится рядом с СК Лужники, хорошее место для жизни с детьми. 3. Почти не осталось мест для новых ЖК в Хамовниках, достойных конкурентов не будет. 4. Фонд недвижимости в рублях инвестирует в Luzhniki Collection. Высокая потенциальная доходность инвестиций. Сдачу комплекса нужно ждать. Хамовники престижный и традиционно семейный район, тут всегда будут брать большие площади. Элитный востребованный проект для вложений.
Ответить
Полезный отзыв?
Добавьте отзыв, заполнив личные данные, или сначала войдите на сайт, тогда информация будет автоматически взята из личного профиля.
Оценка*