Рейтинг@Mail.ru
Переверните экран
Новостройки Квартиры Ипотека Новостройки Москвы Новостройки Подмосковья Новостройки Новой Москвы Готовые новостройки Новостройки на карте Акции от застройщиков Коммерческие помещения Продавцы и застройщики Панорамы новостроек Видеообзор новостроек Экспертиза новостроек Экология Москвы и Подмосковья Студии 1-комнатные 2-комнатные 3-комнатные Квартиры на карте Ипотечный калькулятор Семейная ипотека Военная ипотека Банки и программы Медиа Новости недвижимости Мнение эксперта Аналитика рынка Покупателю Экспертиза новостроек Эксперты и авторы О проекте Контакты Реклама на сайте Vk Youtube Telegram Дзен Машиноместа Апартаменты #траншевая ипотека #рассрочка IT-ипотека Квартиры со скидками до 40% Видео 360° новостроек Субсидированная застройщиком Rutube Поиск дома в Москве Программа реновации в Москве Новостройки премиум-класса Новостройки бизнес-класса Рассрочка Траншевая ипотека ГАЛС Дома и коттеджи Бизнес-центры Бизнес-центры в Москве Бизнес-центры рядом с метро Строящиеся бизнес-центры Бизнес-центры класса A Бизнес-центры класса B ЛСР
Данная квартира является лидером продаж среди четырехкомнатных квартир в ЖК «Киноквартал» по данным Росреестра
4-комн. квартира, 88.10 м2, 3 этаж
Срок сдачи 2 квартал 2027 года
17 643 000 
200 261 2
обновлено 5 декабря

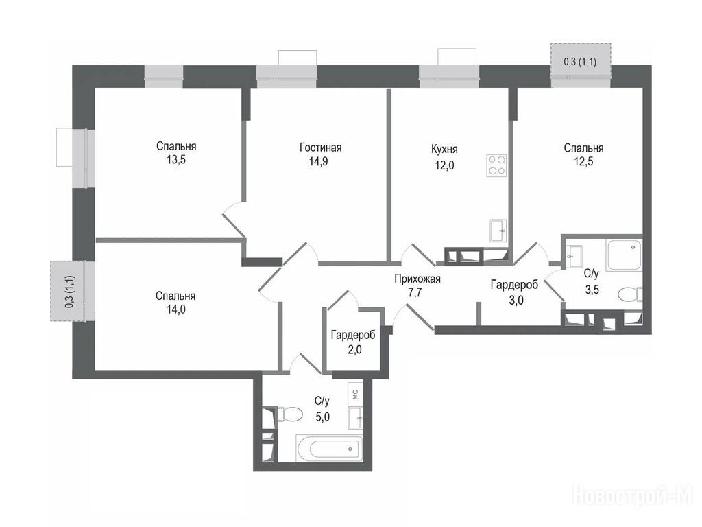
Описание 4-комн. квартиры

Новостройка
Застройщик
Срок ГК
2 квартал 2027 года
Стадия строительства
Общая площадь
88.10 м2
Жилая площадь
54.90 м2
Площадь кухни
12.00 м2
Этаж
3 / 8
Отделка
нет

Расположение 4-комн. квартиры

Ж/Д-станция
Дом
2
Адрес
мкрн. Первомайский, ул. Кирова / ул. Солнечная, секция 3

Способы покупки

Особенности

Продается четырехкомнатная квартира в новостройке ЖК «Киноквартал» по адресу Московская область, Королев городской округ, Королев, мкрн. Первомайский, ул. Кирова / ул. Солнечная. Общая площадь квартиры - 88.1 кв. м. Тип проекта, по которому построен дом — Монолитно-кирпичный, компания-застройщик — Монолит ГК. Стоимость квартиры — 17 643 000 руб. Способы оплаты можно уточнить у продавца. Срок сдачи — 2 квартал 2027. Более подробная информация по телефону.
Инфоцентр новостроек
Инфоцентр новостроек
+7 (499) 705-91-41
Время работы 9:00 — 21:00

Похожие квартиры в ЖК «Киноквартал»

2 этаж
из 8 2 квартал 2027
Московская область, Королев городской округ
Фабрика 1 Мая (ж/д)
15 мин.
2
Корпус
нет
Отделка
2.82 м
Потолки
ЖК «Киноквартал»
17 524 000
ВТБ, Альфа-Банк, СберБанк, Совкомбанк
6.00%
Ставка
40.10%
Первый взнос
от 105 065 /мес.
Все варианты
6 этаж
из 8 2 квартал 2027
Московская область, Королев городской округ
Фабрика 1 Мая (ж/д)
15 мин.
2
Корпус
нет
Отделка
2.82 м
Потолки
ЖК «Киноквартал»
18 172 000
ВТБ, Альфа-Банк, СберБанк, Совкомбанк
6.00%
Ставка
40.10%
Первый взнос
от 108 950 /мес.
Все варианты
Посмотреть все спецпредложения
Этаж 6/8
МО, ЖК «Киноквартал»
Фабрика 1 Мая (ж/д)
15 мин.
Строится
студия 23,10 м2 5 197 500
Этаж 5/6
МО, ЖК «Киноквартал»
Фабрика 1 Мая (ж/д)
15 мин.
Строится
Этаж 5/6
МО, ЖК «Киноквартал»
Фабрика 1 Мая (ж/д)
15 мин.
Строится
студия 24,00 м2 5 386 000
Этаж 1/8
МО, ЖК «Киноквартал»
Фабрика 1 Мая (ж/д)
15 мин.
Строится
Посмотреть 41 квартира в ЖК «Киноквартал»
Этаж 3/8
МО, ЖК «Киноквартал»
Фабрика 1 Мая (ж/д)
15 мин.
Строится
Этаж 2/8
МО, ЖК «Киноквартал»
Фабрика 1 Мая (ж/д)
15 мин.
Строится
Этаж 3/4
МО, ЖК «Киноквартал»
Фабрика 1 Мая (ж/д)
15 мин.
Строится
Этаж 2/4
МО, ЖК «Киноквартал»
Фабрика 1 Мая (ж/д)
15 мин.
Строится
Посмотреть 83 квартиры в ЖК «Киноквартал»
2-комн. квартира 39,60 м2 7 920 000
Этаж 1/8
МО, ЖК «Киноквартал»
Фабрика 1 Мая (ж/д)
15 мин.
Строится
Этаж 1/8
МО, ЖК «Киноквартал»
Фабрика 1 Мая (ж/д)
15 мин.
Строится
2-комн. квартира 43,90 м2 8 341 000
Этаж 2/8
МО, ЖК «Киноквартал»
Фабрика 1 Мая (ж/д)
15 мин.
Строится
Этаж 1/8
МО, ЖК «Киноквартал»
Фабрика 1 Мая (ж/д)
15 мин.
Строится
Посмотреть 99 квартир в ЖК «Киноквартал»
Этаж 2/4
МО, ЖК «Киноквартал»
Фабрика 1 Мая (ж/д)
15 мин.
Строится
3-комн. квартира 70,30 м2 12 161 900
Этаж 4/8
МО, ЖК «Киноквартал»
Фабрика 1 Мая (ж/д)
15 мин.
Строится
3-комн. квартира 71,10 м2 11 751 000
Этаж 2/8
МО, ЖК «Киноквартал»
Фабрика 1 Мая (ж/д)
15 мин.
Строится
3-комн. квартира 73,30 м2 14 617 000
Этаж 2/8
МО, ЖК «Киноквартал»
Фабрика 1 Мая (ж/д)
15 мин.
Строится
Посмотреть 48 квартир в ЖК «Киноквартал»
4-комн. квартира 86,20 м2 16 126 200
Этаж 4/8
МО, ЖК «Киноквартал»
Фабрика 1 Мая (ж/д)
15 мин.
Строится
4-комн. квартира 87,40 м2 15 994 200
Этаж 2/8
МО, ЖК «Киноквартал»
Фабрика 1 Мая (ж/д)
15 мин.
Строится
Этаж 2/8
МО, ЖК «Киноквартал»
Фабрика 1 Мая (ж/д)
15 мин.
Строится
Посмотреть 6 квартир в ЖК «Киноквартал»

Скидки и спецпредложения от застройщиков

ЖК «Киноквартал» на карте

Выгодные предложения на новостройки

Отзывы о ЖК «Киноквартал»

Самый полезный отзыв
ВД
20 ноября 2024
Оценка:
Социальная инфраструктура
Планировки
Двор, окружение
Расположение
Мне лично очень нравится концепция Киноквартала. Уютно, застройка не плотная будет, к тому же обещают социальные объекты вроде музея кино, летней площадки для просмотра фильмов и променад на набережной. Вроде и территория санатория, который рядом, на реконструкции еще. По мне так супер!
Ответить
Полезный отзыв?
Самый новый отзыв
МВ
08 ноября
Оценка:
Способы покупки
Понравилась рассрочка в Киноквартале: удобно распределить платежи без сильной нагрузки, все зависит от пв.
Ответить
Полезный отзыв?
Добавьте отзыв, заполнив личные данные, или сначала войдите на сайт, тогда информация будет автоматически взята из личного профиля.
Оценка*