Рейтинг@Mail.ru
Переверните экран
Новостройки Квартиры Ипотека Новостройки Москвы Новостройки Подмосковья Новостройки Новой Москвы Готовые новостройки Новостройки на карте Акции от застройщиков Коммерческие помещения Продавцы и застройщики Панорамы новостроек Видеообзор новостроек Экспертиза новостроек Экология Москвы и Подмосковья Студии 1-комнатные 2-комнатные 3-комнатные Квартиры на карте Ипотечный калькулятор Семейная ипотека Военная ипотека Банки и программы Медиа Новости недвижимости Мнение эксперта Аналитика рынка Покупателю Экспертиза новостроек Эксперты и авторы О проекте Контакты Реклама на сайте Vk Youtube Telegram Дзен Машиноместа Апартаменты #траншевая ипотека #рассрочка IT-ипотека Квартиры со скидками до 35% Видео 360° новостроек Субсидированная застройщиком Rutube Поиск дома в Москве Программа реновации в Москве Новостройки премиум-класса Новостройки бизнес-класса Рассрочка Траншевая ипотека Дома и коттеджи Бизнес-центры Бизнес-центры в Москве Бизнес-центры рядом с метро Строящиеся бизнес-центры Бизнес-центры класса A Бизнес-центры класса B
4-комн. квартира, 124.70 м2, 2 этаж
Срок сдачи 3 квартал 2027 года
197 210 000 
1 581 476 2
обновлено 5 февраля

Описание 4-комн. квартиры

Застройщик
Срок ГК
3 квартал 2027 года
Стадия строительства
монтаж средних этажей
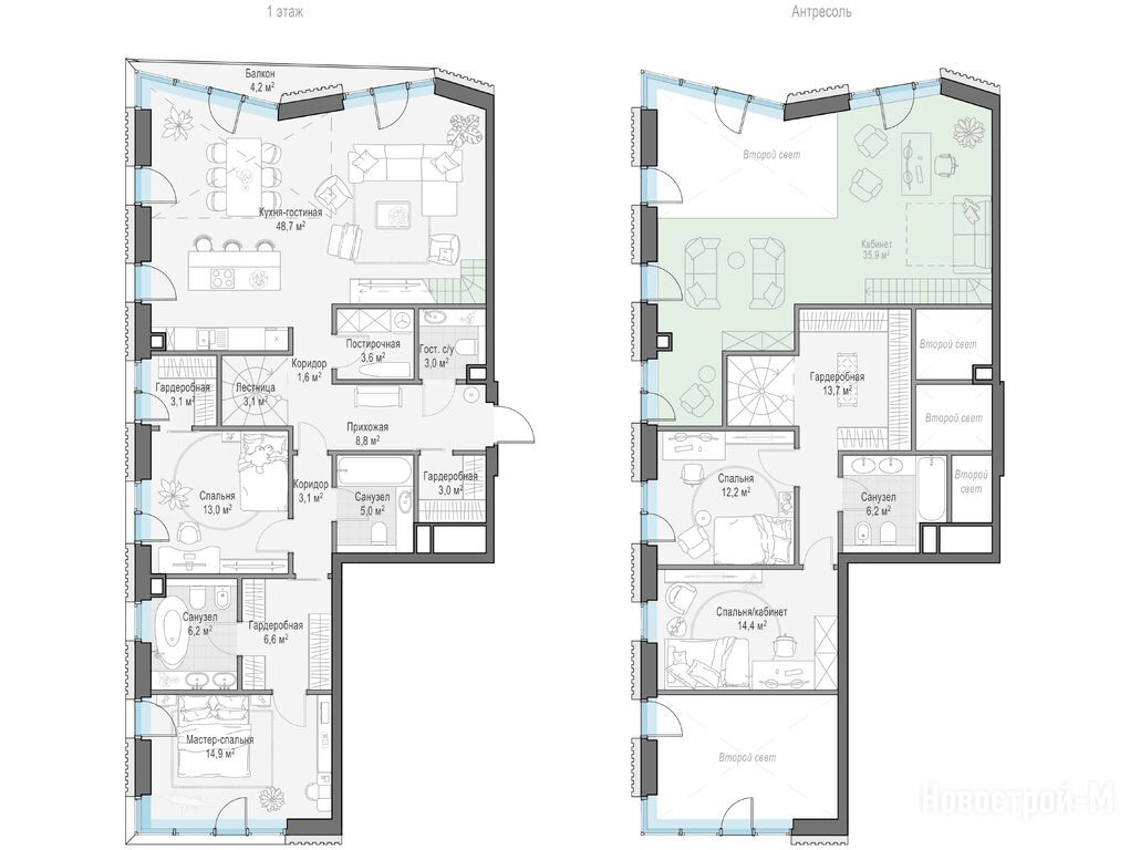
Общая площадь
124.70 м2
Жилая площадь
52.60 м2
Площадь кухни
32.30 м2
Этаж
2 / 14
Грузовой лифт
есть

Расположение 4-комн. квартиры

Локация
Метро
Дом
К3
Адрес
Пресненский р-н, пер. Электрический, корп. 3, вл. 1, секция 1

Особенности

Продается четырехкомнатная квартира в новостройке Элитный квартал «Тишинский бульвар» по адресу Москва, ЦАО, Пресненский, Пресненский р-н, пер. Электрический, корп. 3, вл. 1. Общая площадь квартиры - 124.7 кв. м. Тип проекта, по которому построен дом — Монолитно-кирпичный, компания-застройщик — Sminex. Стоимость квартиры — 197 210 000 руб. Способы оплаты можно уточнить у продавца. Срок сдачи — 3 квартал 2027. Более подробная информация по телефону.

Правовые документы

Время работы 9:00 — 21:00
Выбирайте квартиру в Элитный квартал «Тишинский бульвар» по ценам от застройщика
Посмотреть все спецпредложения
1-комн. квартира 44,90 м2 85 010 000
Этаж 8/14
Москва, Элитный квартал «Тишинский бульвар»
Белорусская
14 мин.
Строится
1-комн. квартира 45,60 м2 80 980 000
Этаж 2/14
Москва, Элитный квартал «Тишинский бульвар»
Белорусская
14 мин.
Строится
1-комн. квартира 45,70 м2 89 200 000
Этаж 7/14
Москва, Элитный квартал «Тишинский бульвар»
Белорусская
14 мин.
Строится
1-комн. квартира 50,90 м2 98 390 000
Этаж 9/14
Москва, Элитный квартал «Тишинский бульвар»
Белорусская
14 мин.
Строится
Посмотреть 46 квартир в Элитном квартале «Тишинский бульвар»
2-комн. квартира 64,50 м2 148 250 000
Этаж 12/14
Москва, Элитный квартал «Тишинский бульвар»
Белорусская
14 мин.
Строится
2-комн. квартира 72,30 м2 145 890 000
Этаж 9/14
Москва, Элитный квартал «Тишинский бульвар»
Белорусская
14 мин.
Строится
2-комн. квартира 72,40 м2 162 270 000
Этаж 12/14
Москва, Элитный квартал «Тишинский бульвар»
Белорусская
14 мин.
Строится
2-комн. квартира 75,30 м2 130 020 000
Этаж 6/9
Москва, Элитный квартал «Тишинский бульвар»
Белорусская
14 мин.
Строится
Посмотреть 43 квартиры в Элитном квартале «Тишинский бульвар»
3-комн. квартира 96,20 м2 151 510 000
Этаж 2/14
Москва, Элитный квартал «Тишинский бульвар»
Белорусская
14 мин.
Строится
3-комн. квартира 96,30 м2 181 130 000
Этаж 3/9
Москва, Элитный квартал «Тишинский бульвар»
Белорусская
14 мин.
Строится
3-комн. квартира 96,70 м2 164 990 000
Этаж 4/14
Москва, Элитный квартал «Тишинский бульвар»
Белорусская
14 мин.
Строится
3-комн. квартира 97,00 м2 177 960 000
Этаж 11/14
Москва, Элитный квартал «Тишинский бульвар»
Белорусская
14 мин.
Строится
Посмотреть 85 квартир в Элитном квартале «Тишинский бульвар»
4-комн. квартира 126,00 м2 214 900 000
Этаж 6/14
Москва, Элитный квартал «Тишинский бульвар»
Белорусская
14 мин.
Строится
4-комн. квартира 126,90 м2 421 470 000
Этаж 14/14
Москва, Элитный квартал «Тишинский бульвар»
Белорусская
14 мин.
Строится
4-комн. квартира 127,50 м2 222 490 000
Этаж 5/14
Москва, Элитный квартал «Тишинский бульвар»
Белорусская
14 мин.
Строится
4-комн. квартира 134,10 м2 209 050 000
Этаж 2/14
Москва, Элитный квартал «Тишинский бульвар»
Белорусская
14 мин.
Строится
Посмотреть 36 квартир в Элитном квартале «Тишинский бульвар»
5-комн. квартира 176,10 м2 279 630 000
Этаж 2/11
Москва, Элитный квартал «Тишинский бульвар»
Белорусская
14 мин.
Строится
5-комн. квартира 179,50 м2 297 350 000
Этаж 3/7
Москва, Элитный квартал «Тишинский бульвар»
Белорусская
14 мин.
Строится
5-комн. квартира 180,20 м2 337 430 000
Этаж 10/14
Москва, Элитный квартал «Тишинский бульвар»
Белорусская
14 мин.
Строится
5-комн. квартира 180,50 м2 414 880 000
Этаж 7/7
Москва, Элитный квартал «Тишинский бульвар»
Белорусская
14 мин.
Строится
Посмотреть 15 квартир в Элитном квартале «Тишинский бульвар»

Скидки и спецпредложения от застройщиков

Элитный квартал «Тишинский бульвар» на карте

Выгодные предложения на новостройки

Отзывы о Элитном квартале «Тишинский бульвар»

Самый полезный отзыв
М
14 апреля 2024
Оценка:
Стройка только завертелась, а обзорчик на ютубе уже есть. Ну, что сказать, престижный район, стильный ЖК, все будет на уровне.
Ответить
Полезный отзыв?
Самый новый отзыв
K
29 января
Оценка:
Ездили посмотреть площадку где строится ЖК, по району погуляли. Понравилось, что нет бешеного трафика, хоть и центральный район. В округе учебные заведения, магазины, рестораны, достопримечательности. Проект понравился, по задумке все продумано для жизни, по идее в реале так все и будет, учитывая опыт застройщика в строительстве элитки.
Ответить
Полезный отзыв?
Добавьте отзыв, заполнив личные данные, или сначала войдите на сайт, тогда информация будет автоматически взята из личного профиля.
Оценка*