Рейтинг@Mail.ru
Переверните экран
Новостройки Квартиры Ипотека Новостройки Москвы Новостройки Подмосковья Новостройки Новой Москвы Готовые новостройки Новостройки на карте Акции от застройщиков Коммерческие помещения Продавцы и застройщики Панорамы новостроек Видеообзор новостроек Экспертиза новостроек Экология Москвы и Подмосковья Студии 1-комнатные 2-комнатные 3-комнатные Квартиры на карте Ипотечный калькулятор Семейная ипотека Военная ипотека Банки и программы Медиа Новости недвижимости Мнение эксперта Аналитика рынка Покупателю Экспертиза новостроек Эксперты и авторы О проекте Контакты Реклама на сайте Vk Youtube Telegram Дзен Машиноместа Апартаменты #траншевая ипотека #рассрочка IT-ипотека Квартиры со скидками до 40% Видео 360° новостроек Субсидированная застройщиком Rutube Поиск дома в Москве Программа реновации в Москве Новостройки премиум-класса Новостройки бизнес-класса Рассрочка Траншевая ипотека Дома и коттеджи Бизнес-центры Бизнес-центры в Москве Бизнес-центры рядом с метро Строящиеся бизнес-центры Бизнес-центры класса A Бизнес-центры класса B
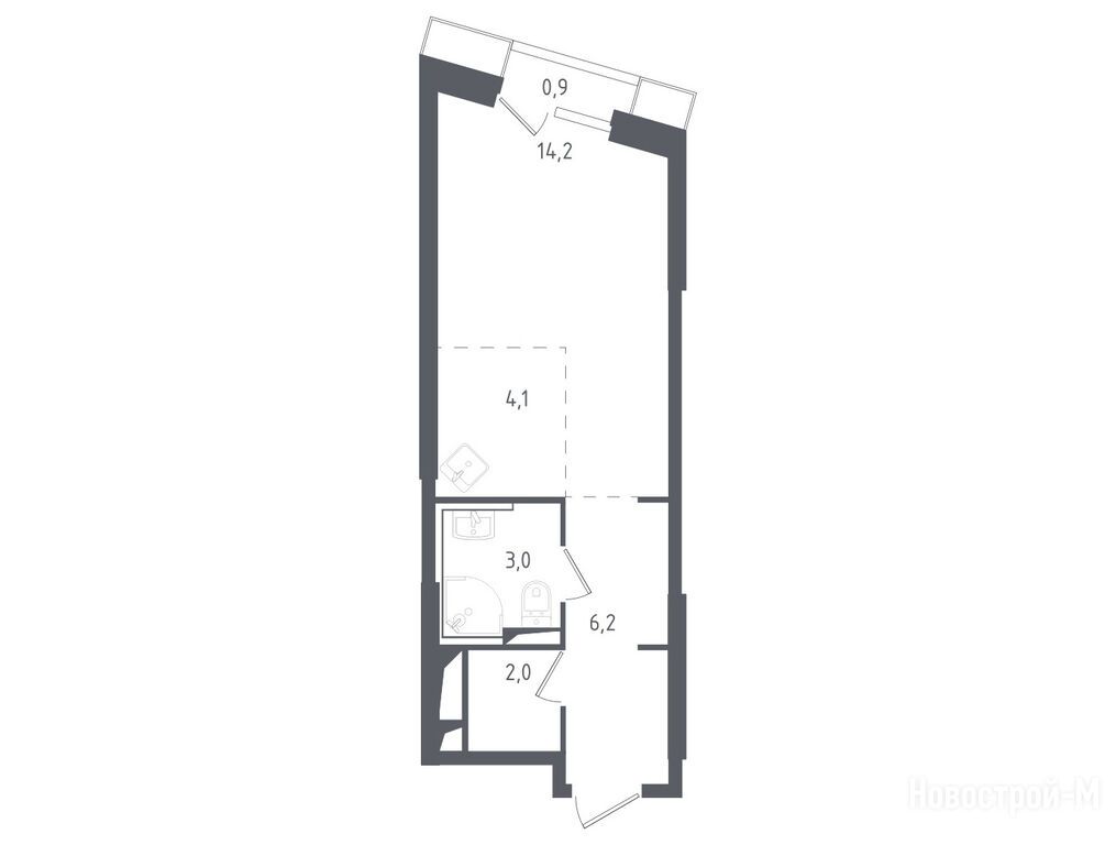
помещение-студия, 30.75 м2, 4 этаж
Срок сдачи 4 квартал 2026 года
12 456 087 
405 076 2
обновлено 5 февраля

Описание помещения-студии

Новостройка
Срок ГК
4 квартал 2026 года
Стадия строительства
Тип проекта
монолит, блочный
Общая площадь
30.75 м2
Этаж
4 / 28

Расположение помещения-студии

Станция МЦД
Дом
20
Адрес
ул. Липовой Рощи, корп.20, секция 1

Способы покупки

Особенности

Продается помещение-студия в новостройке SKY Sputnik (Скай Спутник) по адресу Московская область, Одинцовский район, Раздоры деревня, ул. Липовой Рощи, корп.20. Общая площадь помещения - 30.75 кв. м. Тип проекта, по которому построен дом — Монолитно-кирпичный, компания-застройщик — Группа «Самолет», ООО СЗ «Бухта Лэнд». Стоимость помещения — 12 456 087 руб. Способы оплаты можно уточнить у продавца. Срок сдачи — 4 квартал 2026. Более подробная информация по телефону.

Правовые документы

Посмотреть все спецпредложения
помещение-студия 19,00 м2 10 850 465
Этаж 13/28
МО, SKY Sputnik (Скай Спутник)
Липовая роща (2027)
5 мин.
Строится
помещение-студия 23,49 м2 10 190 455
Этаж 17/28
МО, SKY Sputnik (Скай Спутник)
Липовая роща (2027)
5 мин.
Строится
помещение-студия 23,54 м2 11 279 260
Этаж 2/30
МО, SKY Sputnik (Скай Спутник)
Липовая роща (2027)
5 мин.
Строится
помещение-студия 23,93 м2 13 355 057
Этаж 21/30
МО, SKY Sputnik (Скай Спутник)
Липовая роща (2027)
5 мин.
Строится
Посмотреть 31 помещение в SKY Sputnik (Скай Спутник)
Этаж 19/28
МО, SKY Sputnik (Скай Спутник)
Липовая роща (2027)
5 мин.
Строится
Этаж 4/28
МО, SKY Sputnik (Скай Спутник)
Липовая роща (2027)
5 мин.
Строится
Этаж 2/28
МО, SKY Sputnik (Скай Спутник)
Липовая роща (2027)
5 мин.
Строится
Этаж 24/28
МО, SKY Sputnik (Скай Спутник)
Липовая роща (2027)
5 мин.
Строится
Посмотреть 129 помещений в SKY Sputnik (Скай Спутник)
Этаж 2/30
МО, SKY Sputnik (Скай Спутник)
Липовая роща (2027)
5 мин.
Строится
Этаж 7/30
МО, SKY Sputnik (Скай Спутник)
Липовая роща (2027)
5 мин.
Строится
Этаж 9/30
МО, SKY Sputnik (Скай Спутник)
Липовая роща (2027)
5 мин.
Строится
Этаж 26/30
МО, SKY Sputnik (Скай Спутник)
Липовая роща (2027)
5 мин.
Строится
Посмотреть 34 помещения в SKY Sputnik (Скай Спутник)
Этаж 5/30
МО, SKY Sputnik (Скай Спутник)
Липовая роща (2027)
5 мин.
Строится
Этаж 2/30
МО, SKY Sputnik (Скай Спутник)
Липовая роща (2027)
5 мин.
Строится
Этаж 14/30
МО, SKY Sputnik (Скай Спутник)
Липовая роща (2027)
5 мин.
Строится
Этаж 19/30
МО, SKY Sputnik (Скай Спутник)
Липовая роща (2027)
5 мин.
Строится
Посмотреть 20 помещений в SKY Sputnik (Скай Спутник)

Скидки и спецпредложения от застройщиков

SKY Sputnik (Скай Спутник) на карте

Выгодные предложения на новостройки

Самый полезный отзыв
П
24 ноября 2017
Оценка:
Планировки
А где расположен офис продаж у этого ЖК?
Показать все комментарии
Ответить
Полезный отзыв?
Самый новый отзыв
Т
31 января
Оценка:
По природе район отличный, кто ее любит, тому точно понравится тут жить. Рядом река, парки. Но это не то что мы ограничены в соц объектах. Здесь достаточно магазинов, медучреждений и даже школ с садиками. С детками тут очень хорошо. Только если берете квартиру, сразу надо и место на стоянке брать, нехватка такого добра имеется.
Ответить
Полезный отзыв?
Добавьте отзыв, заполнив личные данные, или сначала войдите на сайт, тогда информация будет автоматически взята из личного профиля.
Оценка*