Рейтинг@Mail.ru
Переверните экран
Новостройки Квартиры Ипотека Новостройки Москвы Новостройки Подмосковья Новостройки Новой Москвы Готовые новостройки Новостройки на карте Акции от застройщиков Коммерческие помещения Продавцы и застройщики Панорамы новостроек Видеообзор новостроек Экспертиза новостроек Экология Москвы и Подмосковья Студии 1-комнатные 2-комнатные 3-комнатные Квартиры на карте Ипотечный калькулятор Семейная ипотека Военная ипотека Банки и программы Медиа Новости недвижимости Мнение эксперта Аналитика рынка Покупателю Экспертиза новостроек Эксперты и авторы О проекте Контакты Реклама на сайте Vk Youtube Telegram Дзен Машиноместа Апартаменты #траншевая ипотека #рассрочка IT-ипотека Квартиры со скидками до 40% Видео 360° новостроек Субсидированная застройщиком Rutube Поиск дома в Москве Программа реновации в Москве Новостройки премиум-класса Новостройки бизнес-класса Рассрочка Траншевая ипотека ГАЛС Дома и коттеджи Бизнес-центры Бизнес-центры в Москве Бизнес-центры рядом с метро Строящиеся бизнес-центры Бизнес-центры класса A Бизнес-центры класса B ЛСР
Данное помещение является лидером продаж среди студий в NAMETKIN TOWER (Наметкин Тауэр) по данным Росреестра
помещение-студия, 41.30 м2, 9 этаж
Срок сдачи 2 квартал 2026 года
14 124 600 
342 000 2
обновлено 5 декабря

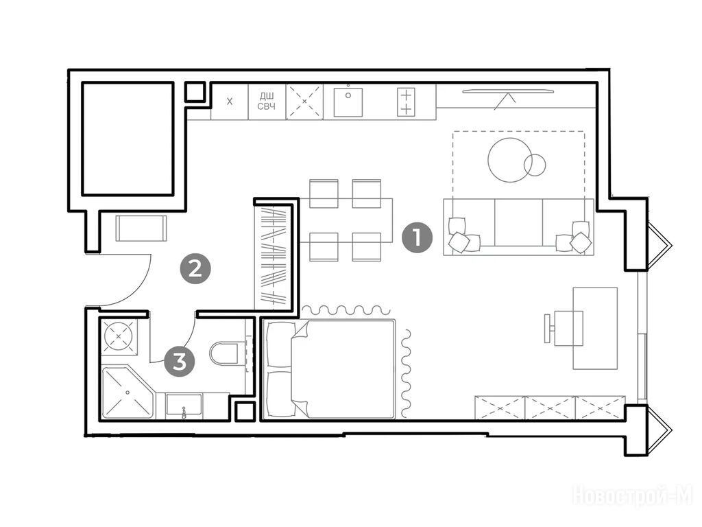
Описание помещения-студии

Застройщик
Срок ГК
2 квартал 2026 года
Общая площадь
41.30 м2
Жилая площадь
27.10 м2
Площадь кухни
5.00 м2
Этаж
9 / 29
Грузовой лифт
есть

Расположение помещения-студии

Локация
Метро
Станция МЦД
Очаково
29 мин.
Ж/Д-станция
Дом
1
Адрес
ул. Наметкина, вл. 10, корп. 1, секция 3

Способы покупки

Особенности

Продается помещение-студия в новостройке NAMETKIN TOWER (Наметкин Тауэр) по адресу Москва, ЮЗАО, Черемушки, ул. Наметкина, вл. 10, корп. 1. Общая площадь помещения - 41.3 кв. м. Тип проекта, по которому построен дом — Монолитно-кирпичный, компания-застройщик — ГК «Основа». Стоимость помещения — 14 124 600 руб. Способы оплаты можно уточнить у продавца. Срок сдачи — 2 квартал 2026. Более подробная информация по телефону.
Инфоцентр новостроек
Инфоцентр новостроек
+7 (499) 705-91-41
Время работы 9:00 — 21:00

Похожие помещения в NAMETKIN TOWER (Наметкин Тауэр)

2 этаж
из 29 2 квартал 2026
Москва, ЮЗАО
Новые Черемушки
10 мин.
1
Корпус
нет данных
Отделка
3.10 м
Потолки
NAMETKIN TOWER (Наметкин Тауэр)
13 538 140
Промсвязьбанк, ДОМ.РФ
19.49%
Ставка
20.01%
Первый взнос
от 220 550 /мес.
Все варианты
6 этаж
из 29 2 квартал 2026
Москва, ЮЗАО
Новые Черемушки
10 мин.
1
Корпус
нет данных
Отделка
3.10 м
Потолки
NAMETKIN TOWER (Наметкин Тауэр)
13 835 500
Промсвязьбанк, ДОМ.РФ
19.49%
Ставка
20.01%
Первый взнос
от 225 394 /мес.
Все варианты
7 этаж
из 29 2 квартал 2026
Москва, ЮЗАО
Новые Черемушки
10 мин.
1
Корпус
нет данных
Отделка
3.10 м
Потолки
NAMETKIN TOWER (Наметкин Тауэр)
13 918 100
Промсвязьбанк, ДОМ.РФ
19.49%
Ставка
20.01%
Первый взнос
от 226 740 /мес.
Все варианты
8 этаж
из 29 2 квартал 2026
Москва, ЮЗАО
Новые Черемушки
10 мин.
1
Корпус
нет данных
Отделка
3.10 м
Потолки
NAMETKIN TOWER (Наметкин Тауэр)
14 000 700
Промсвязьбанк, ДОМ.РФ
19.49%
Ставка
20.01%
Первый взнос
от 228 085 /мес.
Все варианты
10 этаж
из 29 2 квартал 2026
Москва, ЮЗАО
Новые Черемушки
10 мин.
1
Корпус
нет данных
Отделка
3.10 м
Потолки
NAMETKIN TOWER (Наметкин Тауэр)
16 693 460
Промсвязьбанк, ДОМ.РФ
19.49%
Ставка
20.01%
Первый взнос
от 271 953 /мес.
Все варианты
Посмотреть все спецпредложения
помещение-студия 23,20 м2 12 722 880
Этаж 24/29
Москва, NAMETKIN TOWER (Наметкин Тауэр)
Новые Черемушки
10 мин.
Строится
помещение-студия 23,50 м2 12 278 750
Этаж 15/29
Москва, NAMETKIN TOWER (Наметкин Тауэр)
Новые Черемушки
10 мин.
Строится
помещение-студия 24,00 м2 12 628 800
Этаж 16/29
Москва, NAMETKIN TOWER (Наметкин Тауэр)
Новые Черемушки
10 мин.
Строится
помещение-студия 24,10 м2 12 310 280
Этаж 6/29
Москва, NAMETKIN TOWER (Наметкин Тауэр)
Новые Черемушки
10 мин.
Строится
Посмотреть 109 помещений в NAMETKIN TOWER (Наметкин Тауэр)
1-комн. помещение 29,90 м2 15 153 320
Этаж 20/29
Москва, NAMETKIN TOWER (Наметкин Тауэр)
Новые Черемушки
10 мин.
Строится
1-комн. помещение 36,70 м2 19 274 840
Этаж 16/29
Москва, NAMETKIN TOWER (Наметкин Тауэр)
Новые Черемушки
10 мин.
Строится
1-комн. помещение 37,10 м2 18 357 080
Этаж 17/29
Москва, NAMETKIN TOWER (Наметкин Тауэр)
Новые Черемушки
10 мин.
Строится
1-комн. помещение 37,20 м2 17 238 480
Этаж 6/29
Москва, NAMETKIN TOWER (Наметкин Тауэр)
Новые Черемушки
10 мин.
Строится
Посмотреть 77 помещений в NAMETKIN TOWER (Наметкин Тауэр)
2-комн. помещение 42,60 м2 17 546 940
Этаж 5/29
Москва, NAMETKIN TOWER (Наметкин Тауэр)
Новые Черемушки
10 мин.
Строится
2-комн. помещение 42,70 м2 18 190 200
Этаж 18/29
Москва, NAMETKIN TOWER (Наметкин Тауэр)
Новые Черемушки
10 мин.
Строится
2-комн. помещение 43,30 м2 18 147 030
Этаж 11/29
Москва, NAMETKIN TOWER (Наметкин Тауэр)
Новые Черемушки
10 мин.
Строится
2-комн. помещение 43,40 м2 18 501 420
Этаж 16/29
Москва, NAMETKIN TOWER (Наметкин Тауэр)
Новые Черемушки
10 мин.
Строится
Посмотреть 217 помещений в NAMETKIN TOWER (Наметкин Тауэр)
3-комн. помещение 56,70 м2 21 285 180
Этаж 15/29
Москва, NAMETKIN TOWER (Наметкин Тауэр)
Новые Черемушки
10 мин.
Строится
3-комн. помещение 56,80 м2 19 772 080
Этаж 2/29
Москва, NAMETKIN TOWER (Наметкин Тауэр)
Новые Черемушки
10 мин.
Строится
3-комн. помещение 57,20 м2 21 123 960
Этаж 12/29
Москва, NAMETKIN TOWER (Наметкин Тауэр)
Новые Черемушки
10 мин.
Строится
3-комн. помещение 57,70 м2 21 902 920
Этаж 19/29
Москва, NAMETKIN TOWER (Наметкин Тауэр)
Новые Черемушки
10 мин.
Строится
Посмотреть 162 помещения в NAMETKIN TOWER (Наметкин Тауэр)
4-комн. помещение 84,50 м2 38 447 500
Этаж 23/29
Москва, NAMETKIN TOWER (Наметкин Тауэр)
Новые Черемушки
10 мин.
Строится
4-комн. помещение 90,40 м2 38 212 080
Этаж 27/29
Москва, NAMETKIN TOWER (Наметкин Тауэр)
Новые Черемушки
10 мин.
Строится
4-комн. помещение 110,10 м2 47 331 990
Этаж 24/29
Москва, NAMETKIN TOWER (Наметкин Тауэр)
Новые Черемушки
10 мин.
Строится

Скидки и спецпредложения от застройщиков

NAMETKIN TOWER (Наметкин Тауэр) на карте

Выгодные предложения на новостройки

Отзывы о NAMETKIN TOWER (Наметкин Тауэр)

Самый полезный отзыв
СС
27 сентября 2022
Оценка:
Транспортная доступность
Расположение
Выбор пал на Наметкин тауэр из-за удачного расположения в плане транспортного соотношения. По ул. Намёткина на Профсоюзную, а дальше и на ттк, до садового минут 20 езды. Мне удобно, так как раз в неделю нужно мотаться туда, чтобы сдавать документы в офис.
Ответить
Полезный отзыв?
Самый новый отзыв
З
21 ноября
Оценка:
Выбирала, чтобы всё было рядом — аптеки, магазины, метро. Тут это всё есть в пешей доступности, что для моих родителей важно. Архитектура спокойная. Думаю, им это как раз подойдёт — глаз не устанет. Парк рядом это плюс, особенно для людей в возрасте. Двор без машин, значит меньше грязи и шума.
Ответить
Полезный отзыв?
Добавьте отзыв, заполнив личные данные, или сначала войдите на сайт, тогда информация будет автоматически взята из личного профиля.
Оценка*