Рейтинг@Mail.ru
Переверните экран
Новостройки Квартиры Ипотека Новостройки Москвы Новостройки Подмосковья Новостройки Новой Москвы Готовые новостройки Новостройки на карте Акции от застройщиков Коммерческие помещения Продавцы и застройщики Панорамы новостроек Видеообзор новостроек Экспертиза новостроек Экология Москвы и Подмосковья Студии 1-комнатные 2-комнатные 3-комнатные Квартиры на карте Ипотечный калькулятор Семейная ипотека Военная ипотека Банки и программы Медиа Новости недвижимости Мнение эксперта Аналитика рынка Покупателю Экспертиза новостроек Эксперты и авторы О проекте Контакты Реклама на сайте Vk Youtube Telegram Дзен Машиноместа Апартаменты #траншевая ипотека #рассрочка IT-ипотека Квартиры со скидками до 40% Видео 360° новостроек Субсидированная застройщиком Rutube Поиск дома в Москве Программа реновации в Москве Новостройки премиум-класса Новостройки бизнес-класса Рассрочка Траншевая ипотека ГАЛС Дома и коттеджи Бизнес-центры Бизнес-центры в Москве Бизнес-центры рядом с метро Строящиеся бизнес-центры Бизнес-центры класса A Бизнес-центры класса B ЛСР
Данное помещение является лидером продаж среди однокомнатных помещений в «Мираполис» по данным Росреестра
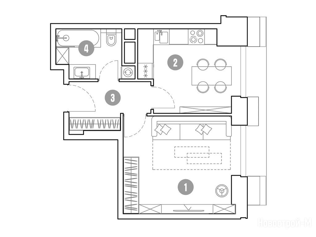
1-комн. помещение, 36.60 м2, 4 этаж
Срок сдачи 2 квартал 2026 года
12 261 000 
335 000 2
обновлено 5 декабря

Описание 1-комн. помещения

Новостройка
Застройщик
Срок ГК
2 квартал 2026 года
Стадия строительства
Тип проекта
Общая площадь
36.60 м2
Жилая площадь
15.90 м2
Площадь кухни
10.90 м2
Этаж
4 / 35

Расположение 1-комн. помещения

Локация
Метро
Станция МЦК
Дом
1
Адрес
проспект Мира, 222, секция 3

Способы покупки

Особенности

Продается однокомнатное помещение в новостройке «Мираполис» по адресу Москва, СВАО, Ярославский, проспект Мира, 222. Общая площадь помещения - 36.6 кв. м. Тип проекта, по которому построен дом — Монолит, компания-застройщик — ГК «Основа». Стоимость помещения — 12 261 000 руб. Способы оплаты можно уточнить у продавца. Срок сдачи — 2 квартал 2026. Более подробная информация по телефону.
Инфоцентр новостроек
Инфоцентр новостроек
+7 (499) 705-91-41
Время работы 9:00 — 21:00

Похожие помещения в «Мираполис»

7 этаж
из 35 2 квартал 2026
Москва, СВАО
Ростокино
3 мин.
1
Корпус
нет данных
Отделка
3.00 м
Потолки
«Мираполис»
12 444 000
Промсвязьбанк, СберБанк, ДОМ.РФ, Альфа-Банк
19.49%
Ставка
20.01%
Первый взнос
от 202 725 /мес.
Все варианты
Посмотреть все спецпредложения
помещение-студия 19,90 м2 9 225 640
Этаж 16/35
Москва, «Мираполис»
Ростокино
3 мин.
Строится
помещение-студия 20,00 м2 9 970 000
Этаж 20/33
Москва, «Мираполис»
Ростокино
3 мин.
Строится
помещение-студия 20,10 м2 10 039 950
Этаж 26/33
Москва, «Мираполис»
Ростокино
3 мин.
Строится
Этаж 11/35
Москва, «Мираполис»
Ростокино
3 мин.
Строится
Посмотреть 50 помещений в «Мираполис»
1-комн. помещение 35,70 м2 15 254 610
Этаж 32/35
Москва, «Мираполис»
Ростокино
3 мин.
Строится
1-комн. помещение 35,90 м2 14 360 000
Этаж 24/35
Москва, «Мираполис»
Ростокино
3 мин.
Строится
1-комн. помещение 36,10 м2 13 580 820
Этаж 13/33
Москва, «Мираполис»
Ростокино
3 мин.
Строится
1-комн. помещение 36,60 м2 12 407 400
Этаж 6/35
Москва, «Мираполис»
Ростокино
3 мин.
Строится
Посмотреть 89 помещений в «Мираполис»
2-комн. помещение 37,60 м2 12 558 400
Этаж 5/35
Москва, «Мираполис»
Ростокино
3 мин.
Строится
2-комн. помещение 37,80 м2 13 986 000
Этаж 19/35
Москва, «Мираполис»
Ростокино
3 мин.
Строится
2-комн. помещение 37,90 м2 13 568 200
Этаж 8/35
Москва, «Мираполис»
Ростокино
3 мин.
Строится
2-комн. помещение 38,00 м2 14 896 000
Этаж 32/35
Москва, «Мираполис»
Ростокино
3 мин.
Строится
Посмотреть 138 помещений в «Мираполис»
3-комн. помещение 61,70 м2 19 929 100
Этаж 6/35
Москва, «Мираполис»
Ростокино
3 мин.
Строится
3-комн. помещение 62,80 м2 20 535 600
Этаж 12/33
Москва, «Мираполис»
Ростокино
3 мин.
Строится
3-комн. помещение 63,20 м2 20 792 800
Этаж 15/33
Москва, «Мираполис»
Ростокино
3 мин.
Строится
3-комн. помещение 63,30 м2 20 509 200
Этаж 9/33
Москва, «Мираполис»
Ростокино
3 мин.
Строится
Посмотреть 25 помещений в «Мираполис»
4-комн. помещение 92,00 м2 29 624 000
Этаж 23/35
Москва, «Мираполис»
Ростокино
3 мин.
Строится
4-комн. помещение 92,20 м2 30 057 200
Этаж 27/35
Москва, «Мираполис»
Ростокино
3 мин.
Строится
4-комн. помещение 92,50 м2 31 144 750
Этаж 23/35
Москва, «Мираполис»
Ростокино
3 мин.
Строится
4-комн. помещение 92,60 м2 32 382 220
Этаж 28/35
Москва, «Мираполис»
Ростокино
3 мин.
Строится
Посмотреть 14 помещений в «Мираполис»

Скидки и спецпредложения от застройщиков

«Мираполис» на карте

Выгодные предложения на новостройки

Отзывы о «Мираполис»

Самый полезный отзыв
ГВ
09 декабря 2022
Оценка:
Транспортная доступность
Расположение
Очень удобное расположение дома, все необходимое рядом: и для работы и для отдыха.
Ответить
Полезный отзыв?
Самый новый отзыв
Н
04 декабря
Оценка:
Рядом жд , проектировщики Инженеры все мероприятия провели по выявлению помех блуждающих токов норм там все по гостам? В допуске? Или все скородирует потом нафиг , сердечник на тп будет подмагничиваться?
Ответить
Полезный отзыв?
Добавьте отзыв, заполнив личные данные, или сначала войдите на сайт, тогда информация будет автоматически взята из личного профиля.
Оценка*