Рейтинг@Mail.ru
Переверните экран
Новостройки Квартиры Ипотека Новостройки Москвы Новостройки Подмосковья Новостройки Новой Москвы Готовые новостройки Новостройки на карте Акции от застройщиков Коммерческие помещения Продавцы и застройщики Панорамы новостроек Видеообзор новостроек Экспертиза новостроек Экология Москвы и Подмосковья Студии 1-комнатные 2-комнатные 3-комнатные Квартиры на карте Ипотечный калькулятор Семейная ипотека Военная ипотека Банки и программы Медиа Новости недвижимости Мнение эксперта Аналитика рынка Покупателю Экспертиза новостроек Эксперты и авторы О проекте Контакты Реклама на сайте Vk Youtube Telegram Дзен Машиноместа Апартаменты #траншевая ипотека #рассрочка IT-ипотека Квартиры со скидками до 40% Видео 360° новостроек Субсидированная застройщиком Rutube Поиск дома в Москве Программа реновации в Москве Новостройки премиум-класса Новостройки бизнес-класса Рассрочка Траншевая ипотека ГАЛС Дома и коттеджи Бизнес-центры Бизнес-центры в Москве Бизнес-центры рядом с метро Строящиеся бизнес-центры Бизнес-центры класса A Бизнес-центры класса B ЛСР
Данное помещение является лидером продаж среди трехкомнатных помещений в «Мираполис» по данным Росреестра
3-комн. помещение, 68.90 м2, 9 этаж
Срок сдачи 2 квартал 2026 года
24 115 000 
350 000 2
обновлено 18 декабря

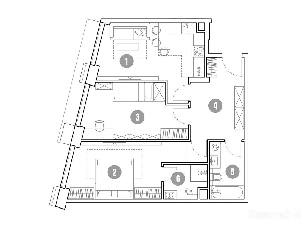
Описание 3-комн. помещения

Новостройка
Застройщик
Срок ГК
2 квартал 2026 года
Стадия строительства
Тип проекта
Общая площадь
68.90 м2
Жилая площадь
31.50 м2
Площадь кухни
17.30 м2
Этаж
9 / 33

Расположение 3-комн. помещения

Локация
Метро
Станция МЦК
Дом
1
Адрес
проспект Мира, 222, секция 1

Способы покупки

Особенности

Продается трехкомнатное помещение в новостройке «Мираполис» по адресу Москва, СВАО, Ярославский, проспект Мира, 222. Общая площадь помещения - 68.9 кв. м. Тип проекта, по которому построен дом — Монолит, компания-застройщик — ГК «Основа». Стоимость помещения — 24 115 000 руб. Способы оплаты можно уточнить у продавца. Срок сдачи — 2 квартал 2026. Более подробная информация по телефону.
Инфоцентр новостроек
Инфоцентр новостроек
+7 (499) 705-91-41
Время работы 9:00 — 21:00
Посмотреть все спецпредложения
помещение-студия 19,90 м2 9 265 440
Этаж 16/35
Москва, «Мираполис»
Ростокино
3 мин.
Строится
помещение-студия 20,00 м2 10 010 000
Этаж 20/33
Москва, «Мираполис»
Ростокино
3 мин.
Строится
помещение-студия 20,10 м2 10 080 150
Этаж 26/33
Москва, «Мираполис»
Ростокино
3 мин.
Строится
помещение-студия 20,60 м2 9 749 980
Этаж 11/35
Москва, «Мираполис»
Ростокино
3 мин.
Строится
Посмотреть 48 помещений в «Мираполис»
1-комн. помещение 35,70 м2 15 326 010
Этаж 32/35
Москва, «Мираполис»
Ростокино
3 мин.
Строится
1-комн. помещение 35,90 м2 14 431 800
Этаж 24/35
Москва, «Мираполис»
Ростокино
3 мин.
Строится
1-комн. помещение 36,10 м2 13 653 020
Этаж 13/33
Москва, «Мираполис»
Ростокино
3 мин.
Строится
1-комн. помещение 36,60 м2 12 334 200
Этаж 4/35
Москва, «Мираполис»
Ростокино
3 мин.
Строится
Посмотреть 87 помещений в «Мираполис»
2-комн. помещение 37,60 м2 12 633 600
Этаж 5/35
Москва, «Мираполис»
Ростокино
3 мин.
Строится
2-комн. помещение 37,80 м2 14 061 600
Этаж 19/35
Москва, «Мираполис»
Ростокино
3 мин.
Строится
2-комн. помещение 37,90 м2 13 644 000
Этаж 8/35
Москва, «Мираполис»
Ростокино
3 мин.
Строится
2-комн. помещение 38,00 м2 14 972 000
Этаж 32/35
Москва, «Мираполис»
Ростокино
3 мин.
Строится
Посмотреть 136 помещений в «Мираполис»
3-комн. помещение 61,70 м2 20 052 500
Этаж 6/35
Москва, «Мираполис»
Ростокино
3 мин.
Строится
3-комн. помещение 63,20 м2 20 919 200
Этаж 15/33
Москва, «Мираполис»
Ростокино
3 мин.
Строится
3-комн. помещение 63,30 м2 22 155 000
Этаж 9/33
Москва, «Мираполис»
Ростокино
3 мин.
Строится
3-комн. помещение 69,10 м2 22 526 600
Этаж 7/35
Москва, «Мираполис»
Ростокино
3 мин.
Строится
Посмотреть 24 помещения в «Мираполис»
4-комн. помещение 92,00 м2 29 808 000
Этаж 23/35
Москва, «Мираполис»
Ростокино
3 мин.
Строится
4-комн. помещение 92,20 м2 30 241 600
Этаж 27/35
Москва, «Мираполис»
Ростокино
3 мин.
Строится
4-комн. помещение 92,50 м2 31 329 750
Этаж 23/35
Москва, «Мираполис»
Ростокино
3 мин.
Строится
4-комн. помещение 92,60 м2 32 567 420
Этаж 28/35
Москва, «Мираполис»
Ростокино
3 мин.
Строится
Посмотреть 15 помещений в «Мираполис»

Скидки и спецпредложения от застройщиков

«Мираполис» на карте

Выгодные предложения на новостройки

Отзывы о «Мираполис»

Самый полезный отзыв
ГВ
09 декабря 2022
Оценка:
Транспортная доступность
Расположение
Очень удобное расположение дома, все необходимое рядом: и для работы и для отдыха.
Ответить
Полезный отзыв?
Самый новый отзыв
П
09 декабря
Оценка:
В комплексе в том числе сделают фитнес с бассейном. Хорошая альтернатива спортзалу, куда хожу сейчас. И ездить никуда не нужно будет, спустился со своего этажа, позанимался и обратно домой.
Ответить
Полезный отзыв?
Добавьте отзыв, заполнив личные данные, или сначала войдите на сайт, тогда информация будет автоматически взята из личного профиля.
Оценка*