Рейтинг@Mail.ru
Переверните экран
Новостройки Квартиры Ипотека Новостройки Москвы Новостройки Подмосковья Новостройки Новой Москвы Готовые новостройки Новостройки на карте Акции от застройщиков Коммерческие помещения Продавцы и застройщики Панорамы новостроек Видеообзор новостроек Экспертиза новостроек Экология Москвы и Подмосковья Студии 1-комнатные 2-комнатные 3-комнатные Квартиры на карте Ипотечный калькулятор Семейная ипотека Военная ипотека Банки и программы Медиа Новости недвижимости Мнение эксперта Аналитика рынка Покупателю Экспертиза новостроек Эксперты и авторы О проекте Контакты Реклама на сайте Vk Youtube Telegram Дзен Машиноместа Апартаменты #траншевая ипотека #рассрочка ИТ-ипотека Квартиры со скидками до 40% Видео 360° новостроек Субсидированная застройщиком Rutube Поиск дома в Москве Программа реновации в Москве Новостройки премиум-класса Новостройки бизнес-класса Рассрочка Траншевая ипотека Дома и коттеджи Бизнес-центры Бизнес-центры в Москве Бизнес-центры рядом с метро Строящиеся бизнес-центры Бизнес-центры класса A Бизнес-центры класса B Ипотека со ставкой 0,1%
Данное помещение является лидером продаж среди однокомнатных помещений в «Мираполис» по данным Росреестра
1-комн. помещение, 42.80 м2, 23 этаж
Срок сдачи 2 квартал 2026 года
15 215 400 
355 500 2
обновлено 1 апреля

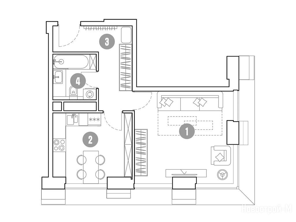
Описание 1-комн. помещения

Новостройка
Застройщик
Срок ГК
2 квартал 2026 года
Стадия строительства
Тип проекта
Общая площадь
42.80 м2
Площадь
18.70 м2
Площадь кухни
11.30 м2
Этаж
23 / 35

Расположение 1-комн. помещения

Локация
Метро
Станция МЦК
Дом
1
Адрес
проспект Мира, 222, секция 3

Способы покупки

Особенности

Продается однокомнатное помещение в новостройке «Мираполис» по адресу Москва, СВАО, Ярославский, проспект Мира, 222. Общая площадь помещения - 42.8 кв. м. Тип проекта, по которому построен дом — Монолит, компания-застройщик — ГК «Основа». Стоимость помещения — 15 215 400 руб. Способы оплаты можно уточнить у продавца. Срок сдачи — 2 квартал 2026. Более подробная информация по телефону.
Инфоцентр новостроек
Инфоцентр новостроек
+7 (499) 705-91-41
Время работы 9:00 — 21:00
помещение-студия 19,90 м2 9 446 530
Этаж 16/35
Москва, «Мираполис»
Ростокино
3 мин.
Строится
помещение-студия 20,00 м2 10 290 000
Этаж 20/33
Москва, «Мираполис»
Ростокино
3 мин.
Строится
помещение-студия 20,10 м2 10 361 550
Этаж 26/33
Москва, «Мираполис»
Ростокино
3 мин.
Строится
помещение-студия 20,60 м2 10 038 380
Этаж 11/35
Москва, «Мираполис»
Ростокино
3 мин.
Строится
Посмотреть 31 помещение в «Мираполис»
1-комн. помещение 35,70 м2 15 708 000
Этаж 32/35
Москва, «Мираполис»
Ростокино
3 мин.
Строится
1-комн. помещение 35,90 м2 14 952 350
Этаж 24/35
Москва, «Мираполис»
Ростокино
3 мин.
Строится
1-комн. помещение 36,10 м2 14 566 350
Этаж 13/33
Москва, «Мираполис»
Ростокино
3 мин.
Строится
Этаж 3/35
Москва, «Мираполис»
Ростокино
3 мин.
Строится
Посмотреть 74 помещения в «Мираполис»
2-комн. помещение 37,60 м2 13 483 360
Этаж 5/35
Москва, «Мираполис»
Ростокино
3 мин.
Строится
2-комн. помещение 37,80 м2 14 953 680
Этаж 19/35
Москва, «Мираполис»
Ростокино
3 мин.
Строится
2-комн. помещение 37,90 м2 14 121 540
Этаж 8/35
Москва, «Мираполис»
Ростокино
3 мин.
Строится
2-комн. помещение 38,00 м2 15 450 800
Этаж 32/35
Москва, «Мираполис»
Ростокино
3 мин.
Строится
Посмотреть 149 помещений в «Мираполис»
3-комн. помещение 61,70 м2 20 965 660
Этаж 6/35
Москва, «Мираполис»
Ростокино
3 мин.
Строится
Этаж 18/35
Москва, «Мираполис»
Ростокино
3 мин.
Строится
3-комн. помещение 62,50 м2 21 415 625
Этаж 24/35
Москва, «Мираполис»
Ростокино
3 мин.
Строится
3-комн. помещение 63,20 м2 21 962 000
Этаж 15/33
Москва, «Мираполис»
Ростокино
3 мин.
Строится
Посмотреть 22 помещения в «Мираполис»
4-комн. помещение 92,00 м2 31 004 000
Этаж 23/35
Москва, «Мираполис»
Ростокино
3 мин.
Строится
4-комн. помещение 92,20 м2 31 440 200
Этаж 27/35
Москва, «Мираполис»
Ростокино
3 мин.
Строится
4-комн. помещение 92,50 м2 32 005 000
Этаж 23/35
Москва, «Мираполис»
Ростокино
3 мин.
Строится
4-комн. помещение 92,60 м2 33 243 400
Этаж 28/35
Москва, «Мираполис»
Ростокино
3 мин.
Строится
Посмотреть 16 помещений в «Мираполис»

Скидки и спецпредложения от застройщиков

«Мираполис» на карте

Выгодные предложения на новостройки

Отзывы о «Мираполис»

Самый полезный отзыв
ГВ
09 декабря 2022
Оценка:
Достоинства
Транспортная доступность
Расположение
Очень удобное расположение дома, все необходимое рядом: и для работы и для отдыха.
Ответить
Самый новый отзыв
М
13 марта
Оценка:
Мираполис выбирают из-за возможности быстро добраться в дальнейшем из дома до работы/учебы/или просто в центр для встречи с друзьями. На машине или общественном транспорте - не важно, полчаса и ты на месте. Я лично во многом поэтому и выбрал этот комлпекс.
Ответить

Оставить отзыв

Добавьте отзыв, заполнив личные данные, или сначала войдите на сайт, тогда информация будет автоматически взята из личного профиля.
Оценка*