Рейтинг@Mail.ru
Переверните экран
Новостройки Квартиры Ипотека Новостройки Москвы Новостройки Подмосковья Новостройки Новой Москвы Готовые новостройки Новостройки на карте Акции от застройщиков Коммерческие помещения Продавцы и застройщики Панорамы новостроек Видеообзор новостроек Экспертиза новостроек Экология Москвы и Подмосковья Студии 1-комнатные 2-комнатные 3-комнатные Квартиры на карте Ипотечный калькулятор Семейная ипотека Военная ипотека Банки и программы Медиа Новости недвижимости Мнение эксперта Аналитика рынка Покупателю Экспертиза новостроек Эксперты и авторы О проекте Контакты Реклама на сайте Vk Youtube Telegram Дзен Машиноместа Апартаменты #траншевая ипотека #рассрочка IT-ипотека Квартиры со скидками до 40% Видео 360° новостроек Субсидированная застройщиком Rutube Поиск дома в Москве Программа реновации в Москве Новостройки премиум-класса Новостройки бизнес-класса Рассрочка Траншевая ипотека ГАЛС Дома и коттеджи Бизнес-центры Бизнес-центры в Москве Бизнес-центры рядом с метро Строящиеся бизнес-центры Бизнес-центры класса A Бизнес-центры класса B ЛСР
Данное помещение является лидером продаж среди однокомнатных помещений в «Аквилон Signal» (Аквилон Сигнал) по данным Росреестра
1-комн. помещение, 22.40 м2, 17 этаж
Срок сдачи 4 квартал 2026 года
11 593 940 
517 587 2
обновлено 5 декабря

Описание 1-комн. помещения

Срок ГК
4 квартал 2026 года
Стадия строительства
монтаж верхних этажей
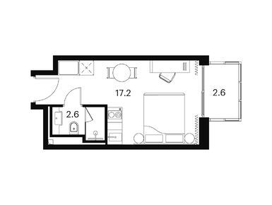
Общая площадь
22.40 м2
Жилая площадь
16.20 м2
Площадь кухни
1.00 м2
Этаж
17 / 23

Расположение 1-комн. помещения

Локация
Метро
Станция МЦД
Станция МЦК
Дом
4
Адрес
Сигнальный проезд, корп.4, секция 1

Особенности

Продается однокомнатное помещение в новостройке «Аквилон Signal» (Аквилон Сигнал) по адресу Москва, СВАО, Отрадное, Сигнальный проезд, корп.4. Общая площадь помещения - 22.4 кв. м. Тип проекта, по которому построен дом — Монолитно-кирпичный, компания-застройщик — «СЗ «ИНСТРОЙ», Группа «Аквилон». Стоимость помещения — 11 593 940 руб. Способы оплаты можно уточнить у продавца. Срок сдачи — 4 квартал 2026. Более подробная информация по телефону.
Инфоцентр новостроек
Инфоцентр новостроек
+7 (499) 705-91-41
Время работы 9:00 — 21:00

Похожие помещения в «Аквилон Signal» (Аквилон Сигнал)

15 этаж
из 23 4 квартал 2026
Москва, СВАО
Владыкино
6 мин.
4
Корпус
нет данных
Отделка
2.87 м
Потолки
«Аквилон Signal» (Аквилон Сигнал)
11 549 174
16 этаж
из 23 4 квартал 2026
Москва, СВАО
Владыкино
6 мин.
4
Корпус
нет данных
Отделка
2.87 м
Потолки
«Аквилон Signal» (Аквилон Сигнал)
11 662 111
19 этаж
из 23 4 квартал 2026
Москва, СВАО
Владыкино
6 мин.
4
Корпус
нет данных
Отделка
2.87 м
Потолки
«Аквилон Signal» (Аквилон Сигнал)
11 824 446
18 этаж
из 23 4 квартал 2026
Москва, СВАО
Владыкино
6 мин.
4
Корпус
нет данных
Отделка
2.87 м
Потолки
«Аквилон Signal» (Аквилон Сигнал)
11 891 424
19 этаж
из 23 4 квартал 2026
Москва, СВАО
Владыкино
6 мин.
4
Корпус
нет данных
Отделка
2.87 м
Потолки
«Аквилон Signal» (Аквилон Сигнал)
12 007 800
21 этаж
из 23 4 квартал 2026
Москва, СВАО
Владыкино
6 мин.
4
Корпус
нет данных
Отделка
2.87 м
Потолки
«Аквилон Signal» (Аквилон Сигнал)
12 059 561
20 этаж
из 23 4 квартал 2026
Москва, СВАО
Владыкино
6 мин.
4
Корпус
нет данных
Отделка
2.87 м
Потолки
«Аквилон Signal» (Аквилон Сигнал)
12 060 212
20 этаж
из 23 4 квартал 2026
Москва, СВАО
Владыкино
6 мин.
4
Корпус
нет данных
Отделка
2.87 м
Потолки
«Аквилон Signal» (Аквилон Сигнал)
12 125 328
21 этаж
из 23 4 квартал 2026
Москва, СВАО
Владыкино
6 мин.
4
Корпус
нет данных
Отделка
2.87 м
Потолки
«Аквилон Signal» (Аквилон Сигнал)
12 244 033
22 этаж
из 23 4 квартал 2026
Москва, СВАО
Владыкино
6 мин.
4
Корпус
нет данных
Отделка
2.87 м
Потолки
«Аквилон Signal» (Аквилон Сигнал)
12 363 939
Посмотреть все спецпредложения
помещение-студия 23,50 м2 10 650 760
Этаж 15/23
Москва, «Аквилон Signal» (Аквилон Сигнал)
Владыкино
6 мин.
Строится
помещение-студия 23,70 м2 10 750 256
Этаж 15/23
Москва, «Аквилон Signal» (Аквилон Сигнал)
Владыкино
6 мин.
Строится
помещение-студия 24,10 м2 10 830 346
Этаж 16/23
Москва, «Аквилон Signal» (Аквилон Сигнал)
Владыкино
6 мин.
Строится
помещение-студия 24,20 м2 10 739 680
Этаж 13/23
Москва, «Аквилон Signal» (Аквилон Сигнал)
Владыкино
6 мин.
Строится
Посмотреть 95 помещений в «Аквилон Signal» (Аквилон Сигнал)
1-комн. помещение 22,40 м2 11 699 488
Этаж 21/23
Москва, «Аквилон Signal» (Аквилон Сигнал)
Владыкино
6 мин.
Строится
1-комн. помещение 22,50 м2 11 483 033
Этаж 14/23
Москва, «Аквилон Signal» (Аквилон Сигнал)
Владыкино
6 мин.
Строится
1-комн. помещение 22,70 м2 11 534 714
Этаж 13/23
Москва, «Аквилон Signal» (Аквилон Сигнал)
Владыкино
6 мин.
Строится
1-комн. помещение 23,00 м2 12 761 251
Этаж 19/23
Москва, «Аквилон Signal» (Аквилон Сигнал)
Владыкино
6 мин.
Строится
Посмотреть 209 помещений в «Аквилон Signal» (Аквилон Сигнал)
2-комн. помещение 41,40 м2 17 389 201
Этаж 18/23
Москва, «Аквилон Signal» (Аквилон Сигнал)
Владыкино
6 мин.
Строится
2-комн. помещение 41,90 м2 17 412 755
Этаж 19/23
Москва, «Аквилон Signal» (Аквилон Сигнал)
Владыкино
6 мин.
Строится
2-комн. помещение 42,70 м2 16 226 428
Этаж 4/23
Москва, «Аквилон Signal» (Аквилон Сигнал)
Владыкино
6 мин.
Строится
2-комн. помещение 45,40 м2 18 516 708
Этаж 18/23
Москва, «Аквилон Signal» (Аквилон Сигнал)
Владыкино
6 мин.
Строится
Посмотреть 45 помещений в «Аквилон Signal» (Аквилон Сигнал)

Скидки и спецпредложения от застройщиков

«Аквилон Signal» (Аквилон Сигнал) на карте

Выгодные предложения на новостройки

Отзывы о «Аквилон Signal» (Аквилон Сигнал)

Самый полезный отзыв
М
11 марта 2024
Оценка:
Рендеры симпатичные, локация нам подходит (снимаем недалеко от места строительства), но информации на сайте не хватило. Планировки не все размещены, как нам показалось. Не очень понятно, какие есть программы по покупке. Записались с супругом на консультацию на следующую неделю, будем узнавать.
Ответить
Полезный отзыв?
Самый новый отзыв
Р
04 декабря
Оценка:
Зачастую смотрю на инженерную составляющую квартир. Здесь шумоизоляция будет, умные датчики всякие, да и коммуникации все проведут. Это хорошо упрощает повседневную жизнь, как по мне, и ремонт в будущем. Гостиничный сервис как отдельный плюсик в копилку)
Ответить
Полезный отзыв?
Добавьте отзыв, заполнив личные данные, или сначала войдите на сайт, тогда информация будет автоматически взята из личного профиля.
Оценка*