Рейтинг@Mail.ru
Переверните экран
Новостройки Квартиры Ипотека Новостройки Москвы Новостройки Подмосковья Новостройки Новой Москвы Готовые новостройки Новостройки на карте Акции от застройщиков Коммерческие помещения Продавцы и застройщики Панорамы новостроек Видеообзор новостроек Экспертиза новостроек Экология Москвы и Подмосковья Студии 1-комнатные 2-комнатные 3-комнатные Квартиры на карте Ипотечный калькулятор Семейная ипотека Военная ипотека Банки и программы Медиа Новости недвижимости Мнение эксперта Аналитика рынка Покупателю Экспертиза новостроек Эксперты и авторы О проекте Контакты Реклама на сайте Vk Youtube Telegram Дзен Машиноместа Апартаменты #траншевая ипотека #рассрочка IT-ипотека Квартиры со скидками до 40% Видео 360° новостроек Субсидированная застройщиком Rutube Поиск дома в Москве Программа реновации в Москве Новостройки премиум-класса Новостройки бизнес-класса Рассрочка Траншевая ипотека ГАЛС Дома и коттеджи Бизнес-центры Бизнес-центры в Москве Бизнес-центры рядом с метро Строящиеся бизнес-центры Бизнес-центры класса A Бизнес-центры класса B ЛСР
Данное помещение является лидером продаж среди студий в EVOPARK Измайлово (ЭВОПАРК Измайлово) по данным Росреестра
Данное предложение на 18.12.2025 неактуально. Пожалуйста, ознакомьтесь с другими похожими предложениями в EVOPARK Измайлово (ЭВОПАРК Измайлово) .
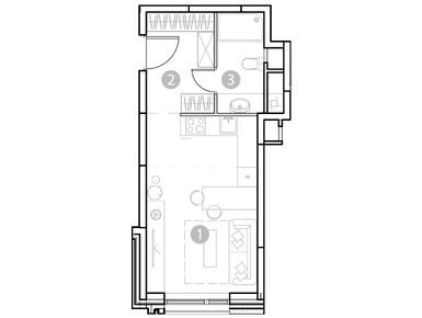
помещение-студия, 30.87 м2, 16 этаж
Срок сдачи 4 квартал 2025 года
11 113 200 
360 000 2
обновлено 25 ноября

Описание помещения-студии

Застройщик
Срок ГК
4 квартал 2025 года
Общая площадь
30.87 м2
Жилая площадь
17.27 м2
Площадь кухни
5.00 м2
Этаж
16 / 18

Расположение помещения-студии

Локация
Станция МЦД
Дом
1
Адрес
ул. Электродная, 2А, секция 1

Способы покупки

Особенности

Продается помещение-студия в новостройке EVOPARK Измайлово (ЭВОПАРК Измайлово) по адресу Москва, ВАО, Перово, ул. Электродная, 2А. Общая площадь помещения - 30.87 кв. м. Тип проекта, по которому построен дом — Монолитно-кирпичный, компания-застройщик — ГК «Основа». Стоимость помещения — 11 113 200 руб. Способы оплаты можно уточнить у продавца. Срок сдачи — 4 квартал 2025. Более подробная информация по телефону.
Инфоцентр новостроек
Инфоцентр новостроек
+7 (499) 705-91-41
Время работы 9:00 — 21:00

Похожие помещения в EVOPARK Измайлово (ЭВОПАРК Измайлово)

17 этаж
из 18 4 квартал 2025
Москва, ВАО
Шоссе Энтузиастов
5 мин.
1
Корпус
нет данных
Отделка
4.10 м
Потолки
EVOPARK Измайлово (ЭВОПАРК Измайлово)
12 131 910
ДОМ.РФ
20.20%
Ставка
20.00%
Первый взнос
от 204 723 /мес.
Все варианты
Посмотреть все спецпредложения
Этаж 9/18
Москва, EVOPARK Измайлово (ЭВОПАРК Измайлово)
Шоссе Энтузиастов
5 мин.
Строится
Этаж 2/18
Москва, EVOPARK Измайлово (ЭВОПАРК Измайлово)
Шоссе Энтузиастов
5 мин.
Строится
Этаж 6/18
Москва, EVOPARK Измайлово (ЭВОПАРК Измайлово)
Шоссе Энтузиастов
5 мин.
Строится
Этаж 2/18
Москва, EVOPARK Измайлово (ЭВОПАРК Измайлово)
Шоссе Энтузиастов
5 мин.
Строится
Посмотреть 16 помещений в EVOPARK Измайлово (ЭВОПАРК Измайлово)
2-комн. помещение 43,25 м2 15 461 875
Этаж 4/18
Москва, EVOPARK Измайлово (ЭВОПАРК Измайлово)
Шоссе Энтузиастов
5 мин.
Строится
2-комн. помещение 43,90 м2 14 596 750
Этаж 2/18
Москва, EVOPARK Измайлово (ЭВОПАРК Измайлово)
Шоссе Энтузиастов
5 мин.
Строится
2-комн. помещение 49,04 м2 15 746 744
Этаж 4/18
Москва, EVOPARK Измайлово (ЭВОПАРК Измайлово)
Шоссе Энтузиастов
5 мин.
Строится
2-комн. помещение 49,77 м2 15 782 067
Этаж 2/18
Москва, EVOPARK Измайлово (ЭВОПАРК Измайлово)
Шоссе Энтузиастов
5 мин.
Строится
Посмотреть 17 помещений в EVOPARK Измайлово (ЭВОПАРК Измайлово)
Этаж 5/18
Москва, EVOPARK Измайлово (ЭВОПАРК Измайлово)
Шоссе Энтузиастов
5 мин.
Строится
Этаж 2/18
Москва, EVOPARK Измайлово (ЭВОПАРК Измайлово)
Шоссе Энтузиастов
5 мин.
Строится

Скидки и спецпредложения от застройщиков

EVOPARK Измайлово (ЭВОПАРК Измайлово) на карте

Выгодные предложения на новостройки

Отзывы о EVOPARK Измайлово (ЭВОПАРК Измайлово)

Самый полезный отзыв
Т
24 мая 2024
Оценка:
Транспортная доступность
Экология
Дом будет выгодно расположен. Готовая инфраструктура, 5 минут до метро, парковые зоны, стильная архитектура, функциональные планировки. Когда просматривали с женой для покупки, поставили его в наш топ)
Ответить
Полезный отзыв?
Самый новый отзыв
В
25 ноября
Оценка:
EVOPARK Измайлово понравился тем, что это один дом с хорошей инфраструктурой и удобным расположением. За счет МСД и шоссе Энтузиастов в любую точку Москвы можно будет добраться без проблем. Да и ценник на 2025 год вполне адекватный. Другие варианты в Перово по цене/качеству не такие интересные.
Ответить
Полезный отзыв?
Добавьте отзыв, заполнив личные данные, или сначала войдите на сайт, тогда информация будет автоматически взята из личного профиля.
Оценка*