Рейтинг@Mail.ru
Переверните экран
Новостройки Квартиры Ипотека Новостройки Москвы Новостройки Подмосковья Новостройки Новой Москвы Готовые новостройки Новостройки на карте Акции от застройщиков Коммерческие помещения Продавцы и застройщики Панорамы новостроек Видеообзор новостроек Экспертиза новостроек Экология Москвы и Подмосковья Студии 1-комнатные 2-комнатные 3-комнатные Квартиры на карте Ипотечный калькулятор Семейная ипотека Военная ипотека Банки и программы Медиа Новости недвижимости Мнение эксперта Аналитика рынка Покупателю Экспертиза новостроек Эксперты и авторы О проекте Контакты Реклама на сайте Vk Youtube Telegram Дзен Машиноместа Апартаменты #траншевая ипотека #рассрочка ИТ-ипотека Квартиры со скидками до 40% Видео 360° новостроек Субсидированная застройщиком Rutube Поиск дома в Москве Программа реновации в Москве Новостройки премиум-класса Новостройки бизнес-класса Рассрочка Траншевая ипотека Дома и коттеджи Бизнес-центры Бизнес-центры в Москве Бизнес-центры рядом с метро Строящиеся бизнес-центры Бизнес-центры класса A Бизнес-центры класса B Ипотека со ставкой 0,1%
3-комн. помещение, 47.81 м2, 5 этаж
Срок сдачи 3 квартал 2026 года
16 159 780 
338 000 2
обновлено 29 марта

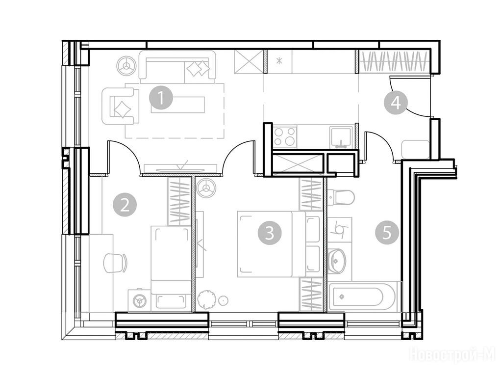
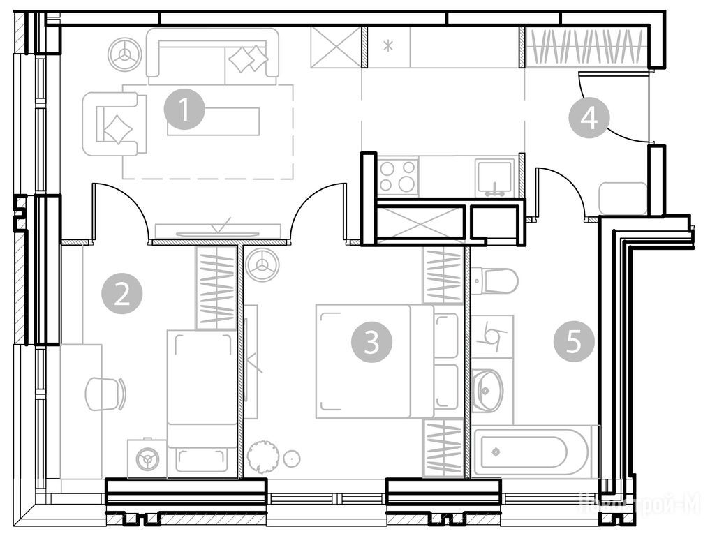
Описание 3-комн. помещения

Новостройка
Застройщик
Срок ГК
3 квартал 2026 года
Общая площадь
47.81 м2
Площадь
18.55 м2
Площадь кухни
18.20 м2
Этаж
5 / 18

Расположение 3-комн. помещения

Локация
Станция МЦД
Дом
1
Адрес
ул. Электродная, 2А, секция 1

Способы покупки

Особенности

Продается трехкомнатное помещение в новостройке «ЭвоПарк Измайлово» по адресу Москва, ВАО, Перово, ул. Электродная, 2А. Общая площадь помещения - 47.81 кв. м. Тип проекта, по которому построен дом — Монолитно-кирпичный, компания-застройщик — ГК «Основа». Стоимость помещения — 16 159 780 руб. Способы оплаты можно уточнить у продавца. Срок сдачи — 3 квартал 2026. Более подробная информация по телефону.
Инфоцентр новостроек
Инфоцентр новостроек
+7 (499) 705-91-41
Время работы 9:00 — 21:00

Похожие помещения в «ЭвоПарк Измайлово»

3 этаж
из 18 3 квартал 2026
Москва, ВАО
Шоссе Энтузиастов
5 мин.
1
Корпус
нет данных
Отделка
4.10 м
Потолки
«ЭвоПарк Измайлово»
15 896 825
Альфа-Банк, ДОМ.РФ
0.11%
Ставка
43.00%
Первый взнос
от 44 159 /мес.
Все варианты
6 этаж
из 18 3 квартал 2026
Москва, ВАО
Шоссе Энтузиастов
5 мин.
1
Корпус
нет данных
Отделка
4.10 м
Потолки
«ЭвоПарк Измайлово»
16 351 020
Альфа-Банк, ДОМ.РФ
0.11%
Ставка
43.00%
Первый взнос
от 45 420 /мес.
Все варианты
10 этаж
из 18 3 квартал 2026
Москва, ВАО
Шоссе Энтузиастов
5 мин.
1
Корпус
нет данных
Отделка
4.10 м
Потолки
«ЭвоПарк Измайлово»
16 613 975
Альфа-Банк, ДОМ.РФ
0.11%
Ставка
43.00%
Первый взнос
от 46 151 /мес.
Все варианты
13 этаж
из 18 3 квартал 2026
Москва, ВАО
Шоссе Энтузиастов
5 мин.
1
Корпус
нет данных
Отделка
4.10 м
Потолки
«ЭвоПарк Измайлово»
16 829 120
Альфа-Банк, ДОМ.РФ
0.11%
Ставка
43.00%
Первый взнос
от 46 748 /мес.
Все варианты
15 этаж
из 18 3 квартал 2026
Москва, ВАО
Шоссе Энтузиастов
5 мин.
1
Корпус
нет данных
Отделка
4.10 м
Потолки
«ЭвоПарк Измайлово»
16 972 550
Альфа-Банк, ДОМ.РФ
0.11%
Ставка
43.00%
Первый взнос
от 47 147 /мес.
Все варианты
17 этаж
из 18 3 квартал 2026
Москва, ВАО
Шоссе Энтузиастов
5 мин.
1
Корпус
нет данных
Отделка
4.10 м
Потолки
«ЭвоПарк Измайлово»
19 171 810
Альфа-Банк, ДОМ.РФ
0.11%
Ставка
43.00%
Первый взнос
от 53 256 /мес.
Все варианты
помещение-студия 20,99 м2 8 773 820
Этаж 3/18
Москва, «ЭвоПарк Измайлово»
Шоссе Энтузиастов
5 мин.
Строится
Этаж 7/18
Москва, «ЭвоПарк Измайлово»
Шоссе Энтузиастов
5 мин.
Строится
помещение-студия 29,42 м2 10 620 620
Этаж 13/18
Москва, «ЭвоПарк Измайлово»
Шоссе Энтузиастов
5 мин.
Строится
помещение-студия 30,87 м2 12 008 430
Этаж 17/18
Москва, «ЭвоПарк Измайлово»
Шоссе Энтузиастов
5 мин.
Строится
Посмотреть 10 помещений в «ЭвоПарк Измайлово»
2-комн. помещение 43,25 м2 15 699 750
Этаж 4/18
Москва, «ЭвоПарк Измайлово»
Шоссе Энтузиастов
5 мин.
Строится
2-комн. помещение 43,90 м2 14 838 200
Этаж 2/18
Москва, «ЭвоПарк Измайлово»
Шоссе Энтузиастов
5 мин.
Строится
Этаж 15/18
Москва, «ЭвоПарк Измайлово»
Шоссе Энтузиастов
5 мин.
Строится
2-комн. помещение 49,04 м2 16 109 640
Этаж 5/18
Москва, «ЭвоПарк Измайлово»
Шоссе Энтузиастов
5 мин.
Строится
Посмотреть 19 помещений в «ЭвоПарк Измайлово»
3-комн. помещение 47,81 м2 15 896 825
Этаж 3/18
Москва, «ЭвоПарк Измайлово»
Шоссе Энтузиастов
5 мин.
Строится
3-комн. помещение 48,52 м2 16 035 860
Этаж 2/18
Москва, «ЭвоПарк Измайлово»
Шоссе Энтузиастов
5 мин.
Строится
Посмотреть 8 помещений в «ЭвоПарк Измайлово»

Скидки и спецпредложения от застройщиков

«ЭвоПарк Измайлово» на карте

Выгодные предложения на новостройки

Отзывы о «ЭвоПарк Измайлово»

Самый полезный отзыв
Т
24 мая 2024
Оценка:
Достоинства
Транспортная доступность
Экология
Дом будет выгодно расположен. Готовая инфраструктура, 5 минут до метро, парковые зоны, стильная архитектура, функциональные планировки. Когда просматривали с женой для покупки, поставили его в наш топ)
Ответить
Самый новый отзыв
В
25 ноября 2025
Оценка:
EVOPARK Измайлово понравился тем, что это один дом с хорошей инфраструктурой и удобным расположением. За счет МСД и шоссе Энтузиастов в любую точку Москвы можно будет добраться без проблем. Да и ценник на 2025 год вполне адекватный. Другие варианты в Перово по цене/качеству не такие интересные.
Ответить

Оставить отзыв

Добавьте отзыв, заполнив личные данные, или сначала войдите на сайт, тогда информация будет автоматически взята из личного профиля.
Оценка*