Рейтинг@Mail.ru
Переверните экран
Новостройки Квартиры Ипотека Новостройки Москвы Новостройки Подмосковья Новостройки Новой Москвы Готовые новостройки Новостройки на карте Акции от застройщиков Коммерческие помещения Продавцы и застройщики Панорамы новостроек Видеообзор новостроек Экспертиза новостроек Экология Москвы и Подмосковья Студии 1-комнатные 2-комнатные 3-комнатные Квартиры на карте Ипотечный калькулятор Семейная ипотека Военная ипотека Банки и программы Медиа Новости недвижимости Мнение эксперта Аналитика рынка Покупателю Экспертиза новостроек Эксперты и авторы О проекте Контакты Реклама на сайте Vk Youtube Telegram Дзен Машиноместа Апартаменты #траншевая ипотека #рассрочка IT-ипотека Квартиры со скидками до 40% Видео 360° новостроек Субсидированная застройщиком Rutube Поиск дома в Москве Программа реновации в Москве Новостройки премиум-класса Новостройки бизнес-класса Рассрочка Траншевая ипотека Дома и коттеджи Бизнес-центры Бизнес-центры в Москве Бизнес-центры рядом с метро Строящиеся бизнес-центры Бизнес-центры класса A Бизнес-центры класса B
Данное помещение является лидером продаж среди однокомнатных помещений в «Аквилон Signal» (Аквилон Сигнал) по данным Росреестра
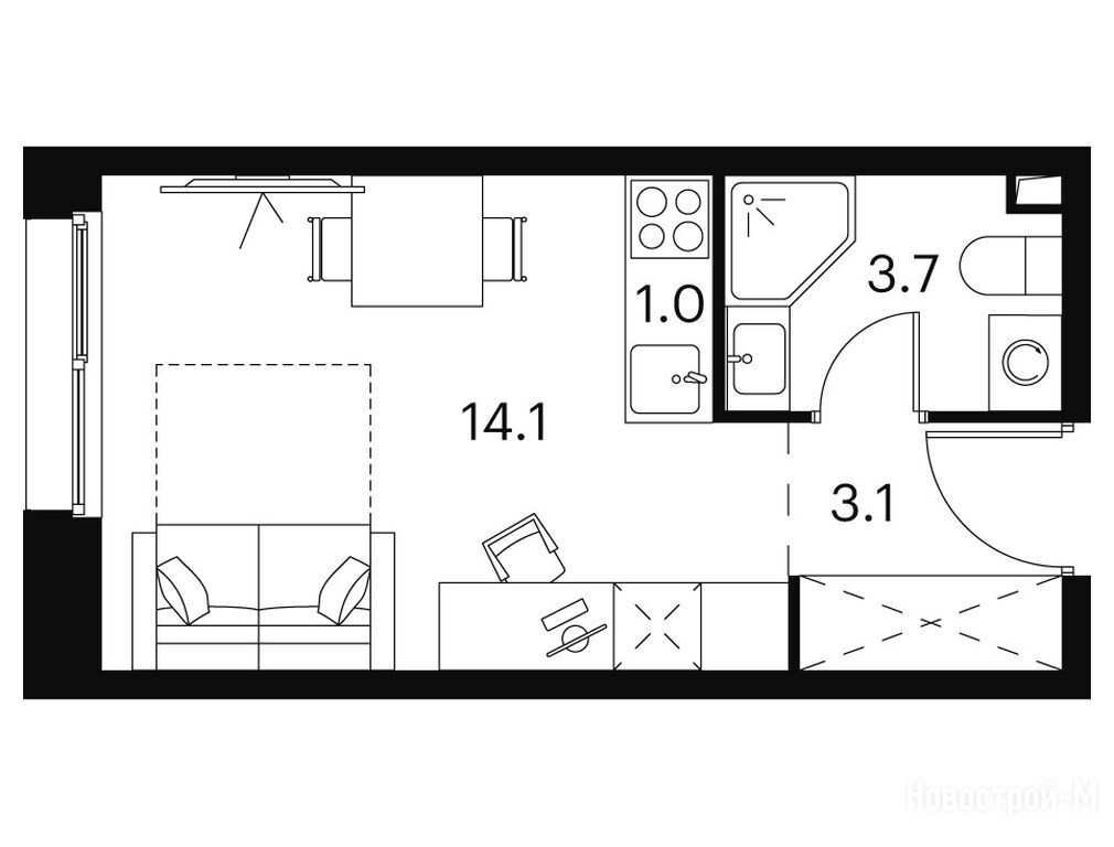
1-комн. помещение, 21.90 м2, 6 этаж
Срок сдачи 4 квартал 2026 года
10 916 865 
498 487 2
обновлено 25 февраля

Описание 1-комн. помещения

Срок ГК
4 квартал 2026 года
Стадия строительства
монтаж верхних этажей
Общая площадь
21.90 м2
Этаж
6 / 23

Расположение 1-комн. помещения

Локация
Метро
Станция МЦД
Станция МЦК
Дом
3
Адрес
Сигнальный проезд, корп.3, секция 1

Особенности

Продается однокомнатное помещение в новостройке «Аквилон Signal» (Аквилон Сигнал) по адресу Москва, СВАО, Отрадное, Сигнальный проезд, корп.3. Общая площадь помещения - 21.9 кв. м. Тип проекта, по которому построен дом — Монолитно-кирпичный, компания-застройщик — «СЗ «ИНСТРОЙ», Группа «Аквилон». Стоимость помещения — 10 916 865 руб. Способы оплаты можно уточнить у продавца. Срок сдачи — 4 квартал 2026. Более подробная информация по телефону.
Группа «Аквилон»
Группа «Аквилон»
Сданных 2
|
Строящихся 6
Время работы 09:00 — 21:00
Выбирайте помещения в «Аквилон Signal» (Аквилон Сигнал) по ценам от застройщика
помещение-студия 21,20 м2 10 196 458
Этаж 5/23
Москва, «Аквилон Signal» (Аквилон Сигнал)
Владыкино
6 мин.
Строится
помещение-студия 23,50 м2 10 650 760
Этаж 15/23
Москва, «Аквилон Signal» (Аквилон Сигнал)
Владыкино
6 мин.
Строится
помещение-студия 23,70 м2 10 811 869
Этаж 15/23
Москва, «Аквилон Signal» (Аквилон Сигнал)
Владыкино
6 мин.
Строится
помещение-студия 24,10 м2 10 820 755
Этаж 14/23
Москва, «Аквилон Signal» (Аквилон Сигнал)
Владыкино
6 мин.
Строится
Посмотреть 81 помещение в «Аквилон Signal» (Аквилон Сигнал)
1-комн. помещение 22,40 м2 11 933 478
Этаж 21/23
Москва, «Аквилон Signal» (Аквилон Сигнал)
Владыкино
6 мин.
Строится
1-комн. помещение 22,50 м2 12 111 008
Этаж 16/23
Москва, «Аквилон Signal» (Аквилон Сигнал)
Владыкино
6 мин.
Строится
1-комн. помещение 22,70 м2 12 165 906
Этаж 17/23
Москва, «Аквилон Signal» (Аквилон Сигнал)
Владыкино
6 мин.
Строится
1-комн. помещение 23,00 м2 13 016 476
Этаж 19/23
Москва, «Аквилон Signal» (Аквилон Сигнал)
Владыкино
6 мин.
Строится
Посмотреть 204 помещения в «Аквилон Signal» (Аквилон Сигнал)
2-комн. помещение 41,40 м2 17 999 655
Этаж 18/23
Москва, «Аквилон Signal» (Аквилон Сигнал)
Владыкино
6 мин.
Строится
2-комн. помещение 41,90 м2 18 179 865
Этаж 19/23
Москва, «Аквилон Signal» (Аквилон Сигнал)
Владыкино
6 мин.
Строится
2-комн. помещение 45,40 м2 19 075 912
Этаж 18/23
Москва, «Аквилон Signal» (Аквилон Сигнал)
Владыкино
6 мин.
Строится
2-комн. помещение 56,50 м2 22 365 751
Этаж 4/23
Москва, «Аквилон Signal» (Аквилон Сигнал)
Владыкино
6 мин.
Строится
Посмотреть 42 помещения в «Аквилон Signal» (Аквилон Сигнал)

Скидки и спецпредложения от застройщиков

«Аквилон Signal» (Аквилон Сигнал) на карте

Выгодные предложения на новостройки

Отзывы о «Аквилон Signal» (Аквилон Сигнал)

Самый полезный отзыв
М
11 марта 2024
Оценка:
Рендеры симпатичные, локация нам подходит (снимаем недалеко от места строительства), но информации на сайте не хватило. Планировки не все размещены, как нам показалось. Не очень понятно, какие есть программы по покупке. Записались с супругом на консультацию на следующую неделю, будем узнавать.
Ответить
Полезный отзыв?
Самый новый отзыв
Р
05 февраля
Оценка:
Красиво, стильно, современно)) И шоурум есть, который не менее симпатичный. Менеджеры вежливые, готовы во всем подсказать без навязывания.
Ответить
Полезный отзыв?
Добавьте отзыв, заполнив личные данные, или сначала войдите на сайт, тогда информация будет автоматически взята из личного профиля.
Оценка*