Рейтинг@Mail.ru
Переверните экран
Новостройки Квартиры Ипотека Новостройки Москвы Новостройки Подмосковья Новостройки Новой Москвы Готовые новостройки Новостройки на карте Акции от застройщиков Коммерческие помещения Продавцы и застройщики Панорамы новостроек Видеообзор новостроек Экспертиза новостроек Экология Москвы и Подмосковья Студии 1-комнатные 2-комнатные 3-комнатные Квартиры на карте Ипотечный калькулятор Семейная ипотека Военная ипотека Банки и программы Медиа Новости недвижимости Мнение эксперта Аналитика рынка Покупателю Экспертиза новостроек Эксперты и авторы О проекте Контакты Реклама на сайте Vk Youtube Telegram Дзен Машиноместа Апартаменты #траншевая ипотека #рассрочка ИТ-ипотека Квартиры со скидками до 40% Видео 360° новостроек Субсидированная застройщиком Rutube Поиск дома в Москве Программа реновации в Москве Новостройки премиум-класса Новостройки бизнес-класса Рассрочка Траншевая ипотека Дома и коттеджи Бизнес-центры Бизнес-центры в Москве Бизнес-центры рядом с метро Строящиеся бизнес-центры Бизнес-центры класса A Бизнес-центры класса B Ипотека со ставкой 0,1%
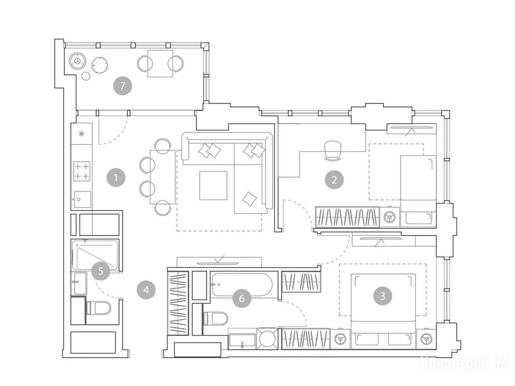
3-комн. квартира, 65.20 м2, 6 этаж
Сдан
37 881 200 
581 000 2
обновлено 18 марта

Описание 3-комн. квартиры

Застройщик
Срок ГК
Дом сдан
Стадия строительства
сдан ГК
Общая площадь
65.20 м2
Жилая площадь
27.20 м2
Площадь кухни
22.70 м2
Этаж
6 / 19

Расположение 3-комн. квартиры

Локация
Метро
Станция МЦД
Очаково
20 мин.
Дом
2
Адрес
ул. Миклухо-Маклая, д. 23, секция 1

Особенности

Продается трехкомнатная квартира в новостройке ЖК «Very на Миклухо-Маклая» (Вэри на Миклухо-Маклая) по адресу Москва, ЮЗАО, Обручевский, ул. Миклухо-Маклая, д. 23. Общая площадь квартиры - 65.2 кв. м. Тип проекта, по которому построен дом — Монолитно-кирпичный, компания-застройщик — ГК «Основа». Стоимость квартиры — 37 881 200 руб. Способы оплаты можно уточнить у продавца. Более подробная информация по телефону.
Время работы 9:00 — 21:00
Выбирайте квартиру в ЖК «Very на Миклухо-Маклая» (Вэри на Миклухо-Маклая) по ценам от застройщика

Похожие квартиры в ЖК «Very на Миклухо-Маклая» (Вэри на Миклухо-Маклая)

5 этаж
из 19 Дом сдан
Москва, ЮЗАО
Университет Дружбы Народов
2 мин.
2
Корпус
нет данных
Отделка
3.40 м
Потолки
ЖК «Very на Миклухо-Маклая» (Вэри на Миклухо-Маклая)
37 555 200
студия 23,30 м2 15 867 300
Этаж 7/19
Москва, ЖК «Very на Миклухо-Маклая» (Вэри на Миклухо-Маклая)
Университет Дружбы Народов
2 мин.
Сдан
студия 23,50 м2 16 802 500
Этаж 10/19
Москва, ЖК «Very на Миклухо-Маклая» (Вэри на Миклухо-Маклая)
Университет Дружбы Народов
2 мин.
Сдан
студия 24,10 м2 17 279 700
Этаж 11/19
Москва, ЖК «Very на Миклухо-Маклая» (Вэри на Миклухо-Маклая)
Университет Дружбы Народов
2 мин.
Сдан
студия 24,40 м2 17 738 800
Этаж 14/19
Москва, ЖК «Very на Миклухо-Маклая» (Вэри на Миклухо-Маклая)
Университет Дружбы Народов
2 мин.
Сдан
Посмотреть 7 квартир в ЖК «Very на Миклухо-Маклая» (Вэри на Миклухо-Маклая)
1-комн. квартира 27,30 м2 18 973 500
Этаж 8/19
Москва, ЖК «Very на Миклухо-Маклая» (Вэри на Миклухо-Маклая)
Университет Дружбы Народов
2 мин.
Сдан
1-комн. квартира 28,20 м2 19 204 200
Этаж 5/19
Москва, ЖК «Very на Миклухо-Маклая» (Вэри на Миклухо-Маклая)
Университет Дружбы Народов
2 мин.
Сдан
1-комн. квартира 28,30 м2 19 328 900
Этаж 6/19
Москва, ЖК «Very на Миклухо-Маклая» (Вэри на Миклухо-Маклая)
Университет Дружбы Народов
2 мин.
Сдан
1-комн. квартира 31,60 м2 22 341 200
Этаж 13/19
Москва, ЖК «Very на Миклухо-Маклая» (Вэри на Миклухо-Маклая)
Университет Дружбы Народов
2 мин.
Сдан
Посмотреть 20 квартир в ЖК «Very на Миклухо-Маклая» (Вэри на Миклухо-Маклая)
Этаж 4/19
Москва, ЖК «Very на Миклухо-Маклая» (Вэри на Миклухо-Маклая)
Университет Дружбы Народов
2 мин.
Сдан
2-комн. квартира 42,10 м2 25 049 500
Этаж 6/19
Москва, ЖК «Very на Миклухо-Маклая» (Вэри на Миклухо-Маклая)
Университет Дружбы Народов
2 мин.
Сдан
2-комн. квартира 42,20 м2 25 277 800
Этаж 3/19
Москва, ЖК «Very на Миклухо-Маклая» (Вэри на Миклухо-Маклая)
Университет Дружбы Народов
2 мин.
Сдан
2-комн. квартира 42,40 м2 25 270 400
Этаж 6/19
Москва, ЖК «Very на Миклухо-Маклая» (Вэри на Миклухо-Маклая)
Университет Дружбы Народов
2 мин.
Сдан
Посмотреть 45 квартир в ЖК «Very на Миклухо-Маклая» (Вэри на Миклухо-Маклая)
Этаж 19/19
Москва, ЖК «Very на Миклухо-Маклая» (Вэри на Миклухо-Маклая)
Университет Дружбы Народов
2 мин.
Сдан
3-комн. квартира 65,20 м2 37 555 200
Этаж 5/19
Москва, ЖК «Very на Миклухо-Маклая» (Вэри на Миклухо-Маклая)
Университет Дружбы Народов
2 мин.
Сдан
3-комн. квартира 65,70 м2 37 514 700
Этаж 4/19
Москва, ЖК «Very на Миклухо-Маклая» (Вэри на Миклухо-Маклая)
Университет Дружбы Народов
2 мин.
Сдан
3-комн. квартира 67,30 м2 39 437 800
Этаж 7/19
Москва, ЖК «Very на Миклухо-Маклая» (Вэри на Миклухо-Маклая)
Университет Дружбы Народов
2 мин.
Сдан
Посмотреть 38 квартир в ЖК «Very на Миклухо-Маклая» (Вэри на Миклухо-Маклая)
4-комн. квартира 99,30 м2 58 785 600
Этаж 12/19
Москва, ЖК «Very на Миклухо-Маклая» (Вэри на Миклухо-Маклая)
Университет Дружбы Народов
2 мин.
Сдан
4-комн. квартира 99,50 м2 60 396 500
Этаж 14/19
Москва, ЖК «Very на Миклухо-Маклая» (Вэри на Миклухо-Маклая)
Университет Дружбы Народов
2 мин.
Сдан
4-комн. квартира 99,60 м2 64 441 200
Этаж 17/19
Москва, ЖК «Very на Миклухо-Маклая» (Вэри на Миклухо-Маклая)
Университет Дружбы Народов
2 мин.
Сдан

Скидки и спецпредложения от застройщиков

ЖК «Very на Миклухо-Маклая» (Вэри на Миклухо-Маклая) на карте

Выгодные предложения на новостройки

Отзывы о ЖК «Very на Миклухо-Маклая» (Вэри на Миклухо-Маклая)

Самый полезный отзыв
ГА
28 октября 2022
Оценка:
Большое спасибо!
Ответить
Самый новый отзыв
ДЖ
22 декабря 2025
Оценка:
Выбирали квартиру с учетом, что у нас еще маленький ребенок. Плюс этого комплекса, что будет свой детсад, игровые комнаты внутри, а во дворе целый детский городок под навесом и даже скалодром. Для детского физ.развития это прям то, что надо.
Ответить

Оставить отзыв

Добавьте отзыв, заполнив личные данные, или сначала войдите на сайт, тогда информация будет автоматически взята из личного профиля.
Оценка*