Рейтинг@Mail.ru
Переверните экран
Новостройки Квартиры Ипотека Новостройки Москвы Новостройки Подмосковья Новостройки Новой Москвы Готовые новостройки Новостройки на карте Акции от застройщиков Коммерческие помещения Продавцы и застройщики Панорамы новостроек Видеообзор новостроек Экспертиза новостроек Экология Москвы и Подмосковья Студии 1-комнатные 2-комнатные 3-комнатные Квартиры на карте Ипотечный калькулятор Семейная ипотека Военная ипотека Банки и программы Медиа Новости недвижимости Мнение эксперта Аналитика рынка Покупателю Экспертиза новостроек Эксперты и авторы О проекте Контакты Реклама на сайте Vk Youtube Telegram Дзен Машиноместа Апартаменты #траншевая ипотека #рассрочка ИТ-ипотека Квартиры со скидками до 40% Видео 360° новостроек Субсидированная застройщиком Rutube Поиск дома в Москве Программа реновации в Москве Новостройки премиум-класса Новостройки бизнес-класса Рассрочка Траншевая ипотека Дома и коттеджи Коттеджные поселки в Новой Москве Готовые коттеджные поселки Строящиеся коттеджные поселки Коттеджные поселки в лесу Коттеджные поселки у водоема Коттеджные поселки в ипотеку Бизнес-центры Коттеджи Ипотека со ставкой 0,1%
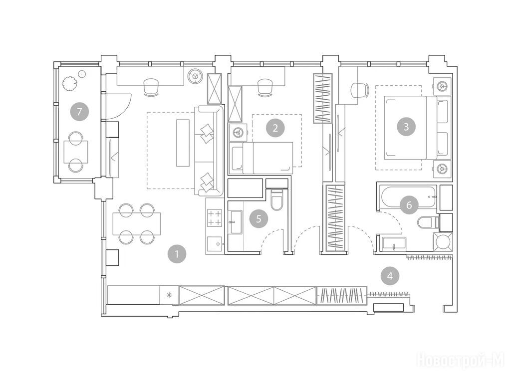
3-комн. квартира, 79.70 м2, 17 этаж
Сдан
50 928 300 
639 000 2
обновлено 3 мая

Описание 3-комн. квартиры

Застройщик
Срок ГК
Дом сдан
Стадия строительства
выдача ключей + заселение
Общая площадь
79.70 м2
Жилая площадь
30.50 м2
Площадь кухни
27.40 м2
Этаж
17 / 19

Расположение 3-комн. квартиры

Локация
Метро
Станция МЦД
Очаково
20 мин.
Дом
2
Адрес
ул. Миклухо-Маклая, д. 23, секция 1

Особенности

Продается трехкомнатная квартира в новостройке ЖК «Very на Миклухо-Маклая» (Вэри на Миклухо-Маклая) по адресу Москва, ЮЗАО, Обручевский, ул. Миклухо-Маклая, д. 23. Общая площадь квартиры - 79.7 кв. м. Тип проекта, по которому построен дом — Монолитно-кирпичный, компания-застройщик — ГК «Основа». Стоимость квартиры — 50 928 300 руб. Способы оплаты можно уточнить у продавца. Более подробная информация по телефону.
Время работы 9:00 — 21:00
Выбирайте квартиру в ЖК «Very на Миклухо-Маклая» (Вэри на Миклухо-Маклая) по ценам от застройщика
студия 23,30 м2 15 913 900
Этаж 7/19
Москва, ЖК «Very на Миклухо-Маклая» (Вэри на Миклухо-Маклая)
Университет Дружбы Народов
2 мин.
Сдан
студия 23,50 м2 16 849 500
Этаж 10/19
Москва, ЖК «Very на Миклухо-Маклая» (Вэри на Миклухо-Маклая)
Университет Дружбы Народов
2 мин.
Сдан
студия 24,10 м2 17 352 000
Этаж 11/19
Москва, ЖК «Very на Миклухо-Маклая» (Вэри на Миклухо-Маклая)
Университет Дружбы Народов
2 мин.
Сдан
студия 24,40 м2 17 787 600
Этаж 14/19
Москва, ЖК «Very на Миклухо-Маклая» (Вэри на Миклухо-Маклая)
Университет Дружбы Народов
2 мин.
Сдан
Посмотреть 6 квартир в ЖК «Very на Миклухо-Маклая» (Вэри на Миклухо-Маклая)
1-комн. квартира 28,30 м2 19 385 500
Этаж 6/19
Москва, ЖК «Very на Миклухо-Маклая» (Вэри на Миклухо-Маклая)
Университет Дружбы Народов
2 мин.
Сдан
1-комн. квартира 31,60 м2 22 404 400
Этаж 13/19
Москва, ЖК «Very на Миклухо-Маклая» (Вэри на Миклухо-Маклая)
Университет Дружбы Народов
2 мин.
Сдан
1-комн. квартира 32,40 м2 23 166 000
Этаж 14/19
Москва, ЖК «Very на Миклухо-Маклая» (Вэри на Миклухо-Маклая)
Университет Дружбы Народов
2 мин.
Сдан
1-комн. квартира 32,60 м2 22 722 200
Этаж 10/19
Москва, ЖК «Very на Миклухо-Маклая» (Вэри на Миклухо-Маклая)
Университет Дружбы Народов
2 мин.
Сдан
Посмотреть 21 квартира в ЖК «Very на Миклухо-Маклая» (Вэри на Миклухо-Маклая)
Этаж 5/19
Москва, ЖК «Very на Миклухо-Маклая» (Вэри на Миклухо-Маклая)
Университет Дружбы Народов
2 мин.
Сдан
Этаж 4/19
Москва, ЖК «Very на Миклухо-Маклая» (Вэри на Миклухо-Маклая)
Университет Дружбы Народов
2 мин.
Сдан
2-комн. квартира 42,10 м2 25 133 700
Этаж 6/19
Москва, ЖК «Very на Миклухо-Маклая» (Вэри на Миклухо-Маклая)
Университет Дружбы Народов
2 мин.
Сдан
2-комн. квартира 42,20 м2 25 362 200
Этаж 3/19
Москва, ЖК «Very на Миклухо-Маклая» (Вэри на Миклухо-Маклая)
Университет Дружбы Народов
2 мин.
Сдан
Посмотреть 48 квартир в ЖК «Very на Миклухо-Маклая» (Вэри на Миклухо-Маклая)
3-комн. квартира 65,00 м2 45 630 000
Этаж 19/19
Москва, ЖК «Very на Миклухо-Маклая» (Вэри на Миклухо-Маклая)
Университет Дружбы Народов
2 мин.
Сдан
3-комн. квартира 65,20 м2 37 685 600
Этаж 5/19
Москва, ЖК «Very на Миклухо-Маклая» (Вэри на Миклухо-Маклая)
Университет Дружбы Народов
2 мин.
Сдан
3-комн. квартира 65,70 м2 37 646 100
Этаж 4/19
Москва, ЖК «Very на Миклухо-Маклая» (Вэри на Миклухо-Маклая)
Университет Дружбы Народов
2 мин.
Сдан
3-комн. квартира 67,30 м2 39 572 400
Этаж 7/19
Москва, ЖК «Very на Миклухо-Маклая» (Вэри на Миклухо-Маклая)
Университет Дружбы Народов
2 мин.
Сдан
Посмотреть 41 квартира в ЖК «Very на Миклухо-Маклая» (Вэри на Миклухо-Маклая)
4-комн. квартира 99,30 м2 58 984 200
Этаж 12/19
Москва, ЖК «Very на Миклухо-Маклая» (Вэри на Миклухо-Маклая)
Университет Дружбы Народов
2 мин.
Сдан
4-комн. квартира 99,50 м2 60 595 500
Этаж 14/19
Москва, ЖК «Very на Миклухо-Маклая» (Вэри на Миклухо-Маклая)
Университет Дружбы Народов
2 мин.
Сдан
4-комн. квартира 99,60 м2 64 640 400
Этаж 17/19
Москва, ЖК «Very на Миклухо-Маклая» (Вэри на Миклухо-Маклая)
Университет Дружбы Народов
2 мин.
Сдан
Этаж 19/19
Москва, ЖК «Very на Миклухо-Маклая» (Вэри на Миклухо-Маклая)
Университет Дружбы Народов
2 мин.
Сдан

Скидки и спецпредложения от застройщиков

ЖК «Very на Миклухо-Маклая» (Вэри на Миклухо-Маклая) на карте

Выгодные предложения на новостройки

Отзывы о ЖК «Very на Миклухо-Маклая» (Вэри на Миклухо-Маклая)

Самый полезный отзыв
ГА
28 октября 2022
Оценка:
Большое спасибо!
Ответить
Самый новый отзыв
ДЖ
22 декабря 2025
Оценка:
Выбирали квартиру с учетом, что у нас еще маленький ребенок. Плюс этого комплекса, что будет свой детсад, игровые комнаты внутри, а во дворе целый детский городок под навесом и даже скалодром. Для детского физ.развития это прям то, что надо.
Ответить

Оставить отзыв

Добавьте отзыв, заполнив личные данные, или сначала войдите на сайт, тогда информация будет автоматически взята из личного профиля.
Оценка*