Рейтинг@Mail.ru
Переверните экран
Новостройки Квартиры Ипотека Новостройки Москвы Новостройки Подмосковья Новостройки Новой Москвы Готовые новостройки Новостройки на карте Акции от застройщиков Коммерческие помещения Продавцы и застройщики Панорамы новостроек Видеообзор новостроек Экспертиза новостроек Экология Москвы и Подмосковья Студии 1-комнатные 2-комнатные 3-комнатные Квартиры на карте Ипотечный калькулятор Семейная ипотека Военная ипотека Банки и программы Медиа Новости недвижимости Мнение эксперта Аналитика рынка Покупателю Экспертиза новостроек Эксперты и авторы О проекте Контакты Реклама на сайте Vk Youtube Telegram Дзен Машиноместа Апартаменты #траншевая ипотека #рассрочка ИТ-ипотека Квартиры со скидками до 40% Видео 360° новостроек Субсидированная застройщиком Rutube Поиск дома в Москве Программа реновации в Москве Новостройки премиум-класса Новостройки бизнес-класса Рассрочка Траншевая ипотека Дома и коттеджи Коттеджные поселки в Новой Москве Готовые коттеджные поселки Строящиеся коттеджные поселки Коттеджные поселки в лесу Коттеджные поселки у водоема Коттеджные поселки в ипотеку Бизнес-центры Коттеджи Ипотека со ставкой 0,1%
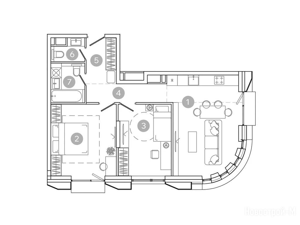
3-комн. квартира, 62.90 м2, 5 этаж
Срок сдачи 2 квартал 2027 года
28 399 350 
451 500 2
обновлено 13 мая

Описание 3-комн. квартиры

Застройщик
Срок ГК
2 квартал 2027 года
Стадия строительства
Тип проекта
Общая площадь
62.90 м2
Жилая площадь
27.00 м2
Площадь кухни
20.60 м2
Этаж
5 / 17

Расположение 3-комн. квартиры

Локация
Станция МЦД
Дом
1
Адрес
8-я улица Соколиной Горы, вл. 26А, секция Б

Способы покупки

Особенности

Продается трехкомнатная квартира в новостройке ЖК «УНО.Соколиная гора» по адресу Москва, ВАО, Соколиная Гора, 8-я улица Соколиной Горы, вл. 26А. Общая площадь квартиры - 62.9 кв. м. Тип проекта, по которому построен дом — Монолит, компания-застройщик — ГК «Основа». Стоимость квартиры — 28 399 350 руб. Способы оплаты можно уточнить у продавца. Срок сдачи — 2 квартал 2027. Более подробная информация по телефону.
Инфоцентр новостроек
Инфоцентр новостроек
+7 (499) 705-91-41
Время работы 9:00 — 21:00

Похожие квартиры в ЖК «УНО.Соколиная гора»

2 этаж
из 17 2 квартал 2027
Москва, ВАО
Соколиная гора
3 мин.
1
Корпус
нет данных
Отделка
2.98 м
Потолки
ЖК «УНО.Соколиная гора»
27 738 900
Альфа-Банк, ВТБ, СберБанк
4.00%
Ставка
30.10%
Первый взнос
от 132 430 /мес.
Все варианты
4 этаж
из 17 2 квартал 2027
Москва, ВАО
Соколиная гора
3 мин.
1
Корпус
нет данных
Отделка
2.98 м
Потолки
ЖК «УНО.Соколиная гора»
28 367 900
Альфа-Банк, ВТБ, СберБанк
4.00%
Ставка
30.10%
Первый взнос
от 135 433 /мес.
Все варианты
9 этаж
из 17 2 квартал 2027
Москва, ВАО
Соколиная гора
3 мин.
1
Корпус
нет данных
Отделка
2.98 м
Потолки
ЖК «УНО.Соколиная гора»
29 625 900
Альфа-Банк, ВТБ, СберБанк
4.00%
Ставка
30.10%
Первый взнос
от 141 439 /мес.
Все варианты
Этаж 11/21
Москва, ЖК «УНО.Соколиная гора»
Соколиная гора
3 мин.
Строится
студия 23,70 м2 14 101 500
Этаж 12/21
Москва, ЖК «УНО.Соколиная гора»
Соколиная гора
3 мин.
Строится
студия 24,00 м2 14 232 000
Этаж 12/21
Москва, ЖК «УНО.Соколиная гора»
Соколиная гора
3 мин.
Строится
студия 28,40 м2 16 188 000
Этаж 8/17
Москва, ЖК «УНО.Соколиная гора»
Соколиная гора
3 мин.
Строится
Посмотреть 5 квартир в ЖК «УНО.Соколиная гора»
2-комн. квартира 41,00 м2 21 443 000
Этаж 15/17
Москва, ЖК «УНО.Соколиная гора»
Соколиная гора
3 мин.
Строится
2-комн. квартира 43,50 м2 20 227 500
Этаж 4/21
Москва, ЖК «УНО.Соколиная гора»
Соколиная гора
3 мин.
Строится
2-комн. квартира 45,20 м2 24 227 200
Этаж 20/21
Москва, ЖК «УНО.Соколиная гора»
Соколиная гора
3 мин.
Строится
2-комн. квартира 45,30 м2 21 381 600
Этаж 8/21
Москва, ЖК «УНО.Соколиная гора»
Соколиная гора
3 мин.
Строится
Посмотреть 37 квартир в ЖК «УНО.Соколиная гора»
3-комн. квартира 61,50 м2 27 121 500
Этаж 3/17
Москва, ЖК «УНО.Соколиная гора»
Соколиная гора
3 мин.
Строится
3-комн. квартира 62,90 м2 27 738 900
Этаж 2/17
Москва, ЖК «УНО.Соколиная гора»
Соколиная гора
3 мин.
Строится
3-комн. квартира 63,50 м2 27 686 000
Этаж 2/17
Москва, ЖК «УНО.Соколиная гора»
Соколиная гора
3 мин.
Строится
3-комн. квартира 66,90 м2 30 038 100
Этаж 4/21
Москва, ЖК «УНО.Соколиная гора»
Соколиная гора
3 мин.
Строится
Посмотреть 38 квартир в ЖК «УНО.Соколиная гора»
4-комн. квартира 93,00 м2 47 802 000
Этаж 20/21
Москва, ЖК «УНО.Соколиная гора»
Соколиная гора
3 мин.
Строится
4-комн. квартира 107,20 м2 53 814 400
Этаж 19/21
Москва, ЖК «УНО.Соколиная гора»
Соколиная гора
3 мин.
Строится

Скидки и спецпредложения от застройщиков

ЖК «УНО.Соколиная гора» на карте

Выгодные предложения на новостройки

Отзывы о ЖК «УНО.Соколиная гора»

Самый полезный отзыв
ЯО
20 ноября 2024
Оценка:
Достоинства
Планировки
Внешний вид фасада
Двор, окружение
Расположение
Глядя на дома, отсылки на фильм "Аватар" сразу всплывают — и по форме, и по архитектуре. Интересное здание, лесопарк у дома - это прям короночка.
Ответить
Самый новый отзыв
А
07 мая
Оценка:
По сути, этот жк будет всего из 2х зданий состоять. Для бизнес-класса это сейчас редкость, хорошо, если 4-5-6 построят. Уно, на мой взгляд, про приватность, соседей будет не так много.
Ответить

Оставить отзыв

Добавьте отзыв, заполнив личные данные, или сначала войдите на сайт, тогда информация будет автоматически взята из личного профиля.
Оценка*