Рейтинг@Mail.ru
Переверните экран
Новостройки Квартиры Ипотека Новостройки Москвы Новостройки Подмосковья Новостройки Новой Москвы Готовые новостройки Новостройки на карте Акции от застройщиков Коммерческие помещения Продавцы и застройщики Панорамы новостроек Видеообзор новостроек Экспертиза новостроек Экология Москвы и Подмосковья Студии 1-комнатные 2-комнатные 3-комнатные Квартиры на карте Ипотечный калькулятор Семейная ипотека Военная ипотека Банки и программы Медиа Новости недвижимости Мнение эксперта Аналитика рынка Покупателю Экспертиза новостроек Эксперты и авторы О проекте Контакты Реклама на сайте Vk Youtube Telegram Дзен Машиноместа Апартаменты #траншевая ипотека #рассрочка IT-ипотека Квартиры со скидками до 40% Видео 360° новостроек Субсидированная застройщиком Rutube Поиск дома в Москве Программа реновации в Москве Новостройки премиум-класса Новостройки бизнес-класса Рассрочка Траншевая ипотека Дома и коттеджи Бизнес-центры Бизнес-центры в Москве Бизнес-центры рядом с метро Строящиеся бизнес-центры Бизнес-центры класса A Бизнес-центры класса B
Данная квартира является лидером продаж среди трехкомнатных квартир в ЖК «Страна. Заречная» по данным Росреестра
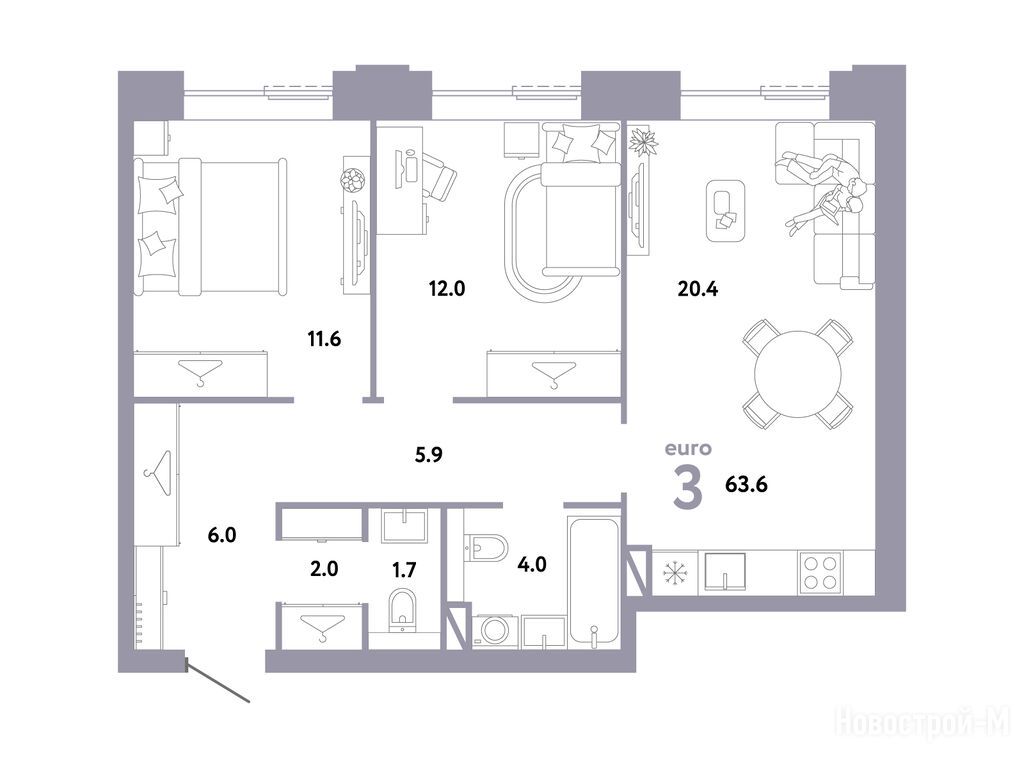
3-комн. квартира, 63.60 м2, 8 этаж
Срок сдачи 1 квартал 2028 года
24 390 000 
383 491 2
обновлено 31 января

Описание 3-комн. квартиры

Срок ГК
1 квартал 2028 года
Стадия строительства
монтаж нижних этажей
Тип проекта
Общая площадь
63.60 м2
Жилая площадь
38.90 м2
Площадь кухни
20.40 м2
Высота потолков
2.70
Этаж
8 / 31
Отделка
под чистовую

Расположение 3-комн. квартиры

Локация
Станция МЦД
Дом
Дом Стремление
Адрес
ул. Иловайская, 3, секция 5

Способы покупки

Особенности

Продается трехкомнатная квартира в новостройке ЖК «Страна. Заречная» по адресу Москва, ЮВАО, Марьино, ул. Иловайская, 3. Общая площадь квартиры - 63.6 кв. м. Тип проекта, по которому построен дом — Монолит, компания-застройщик — Страна Девелопмент. Стоимость квартиры — 24 390 000 руб. Способы оплаты можно уточнить у продавца. Срок сдачи — 1 квартал 2028. Более подробная информация по телефону.
Страна Девелопмент
Страна Девелопмент
Сданных 2
|
Строящихся 7
Время работы 09:00 — 21:00
Выбирайте квартиру в ЖК «Страна. Заречная» по ценам от застройщика
Посмотреть все спецпредложения
Этаж 10/12
Москва, ЖК «Страна. Заречная»
Перерва
10 мин.
Строится
Этаж 34/37
Москва, ЖК «Страна. Заречная»
Перерва
10 мин.
Строится
Этаж 32/37
Москва, ЖК «Страна. Заречная»
Перерва
10 мин.
Строится
Этаж 20/33
Москва, ЖК «Страна. Заречная»
Перерва
10 мин.
Строится
Посмотреть 9 квартир в ЖК «Страна. Заречная»
Этаж 8/12
Москва, ЖК «Страна. Заречная»
Перерва
10 мин.
Строится
Этаж 8/12
Москва, ЖК «Страна. Заречная»
Перерва
10 мин.
Строится
Этаж 6/12
Москва, ЖК «Страна. Заречная»
Перерва
10 мин.
Строится
Этаж 8/12
Москва, ЖК «Страна. Заречная»
Перерва
10 мин.
Строится
Посмотреть 61 квартира в ЖК «Страна. Заречная»
Этаж 2/33
Москва, ЖК «Страна. Заречная»
Перерва
10 мин.
Строится
Этаж 3/33
Москва, ЖК «Страна. Заречная»
Перерва
10 мин.
Строится
Этаж 3/33
Москва, ЖК «Страна. Заречная»
Перерва
10 мин.
Строится
Этаж 12/33
Москва, ЖК «Страна. Заречная»
Перерва
10 мин.
Строится
Посмотреть 100 квартир в ЖК «Страна. Заречная»
Этаж 26/38
Москва, ЖК «Страна. Заречная»
Перерва
10 мин.
Строится
Этаж 17/38
Москва, ЖК «Страна. Заречная»
Перерва
10 мин.
Строится
Этаж 29/38
Москва, ЖК «Страна. Заречная»
Перерва
10 мин.
Строится
Посмотреть 5 квартир в ЖК «Страна. Заречная»

Скидки и спецпредложения от застройщиков

ЖК «Страна. Заречная» на карте

Выгодные предложения на новостройки

Отзывы о ЖК «Страна. Заречная»

Самый полезный отзыв
МС
28 ноября 2024
Оценка:
Социальная инфраструктура
Планировки
Входные группы
Двор, окружение
Транспортная доступность
Понравился жк, смотрим студию для инвестиций
Ответить
Полезный отзыв?
Самый новый отзыв
Ф
23 января
Оценка:
Планировки
Скорость строительства
Искал квартиру сразу с паркингом. И тут у застройщика было просто убойное предложение – комбо-сделка. При 100% оплате паркинга дали скидку 150 000 рублей на все вместе. Посчитал, что это очень выгодно, по сути часть паркинга отбилась сразу. И голова не болит где ставить машину. Рекомендую всем кто с машиной обращать внимание на эту акцию. ????
Ответить
Полезный отзыв?
Добавьте отзыв, заполнив личные данные, или сначала войдите на сайт, тогда информация будет автоматически взята из личного профиля.
Оценка*