Рейтинг@Mail.ru
Переверните экран
Новостройки Квартиры Ипотека Новостройки Москвы Новостройки Подмосковья Новостройки Новой Москвы Готовые новостройки Новостройки на карте Акции от застройщиков Коммерческие помещения Продавцы и застройщики Панорамы новостроек Видеообзор новостроек Экспертиза новостроек Экология Москвы и Подмосковья Студии 1-комнатные 2-комнатные 3-комнатные Квартиры на карте Ипотечный калькулятор Семейная ипотека Военная ипотека Банки и программы Медиа Новости недвижимости Мнение эксперта Аналитика рынка Покупателю Экспертиза новостроек Эксперты и авторы О проекте Контакты Реклама на сайте Vk Youtube Telegram Дзен Машиноместа Апартаменты #траншевая ипотека #рассрочка IT-ипотека Квартиры со скидками до 40% Видео 360° новостроек Субсидированная застройщиком Rutube Поиск дома в Москве Программа реновации в Москве Новостройки премиум-класса Новостройки бизнес-класса Рассрочка Траншевая ипотека ГАЛС Дома и коттеджи Бизнес-центры Бизнес-центры в Москве Бизнес-центры рядом с метро Строящиеся бизнес-центры Бизнес-центры класса A Бизнес-центры класса B ЛСР
Данная квартира является лидером продаж среди трехкомнатных квартир в ЖК «Среда на Кутузовском» по данным Росреестра
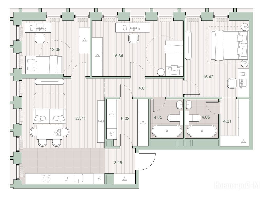
3-комн. квартира, 97.61 м2, 21 этаж
Срок сдачи 4 квартал 2027 года
47 223 718 
483 800 2
обновлено 5 декабря

Описание 3-комн. квартиры

Срок ГК
4 квартал 2027 года
Стадия строительства
монтаж нижних этажей
Тип проекта
монолит, железобетон
Общая площадь
97.61 м2
Жилая площадь
43.81 м2
Площадь кухни
27.71 м2
Высота потолков
2.92
Этаж
21 / 44
Отделка
white box
Грузовой лифт
есть

Расположение 3-комн. квартиры

Локация
Метро
Станция МЦД
Дом
4.1
Адрес
ул. Ивана Франко, корп. 4.1, секция 1

Способы покупки

Особенности

Продается трехкомнатная квартира в новостройке ЖК «Среда на Кутузовском» по адресу Москва, ЗАО, Кунцево, ул. Ивана Франко, корп. 4.1. Общая площадь квартиры - 97.61 кв. м. Тип проекта, по которому построен дом — Монолит,Железобетон, компания-застройщик — «Среда», АО СЗ Монетчик. Стоимость квартиры — 47 223 718 руб. Способы оплаты можно уточнить у продавца. Срок сдачи — 4 квартал 2027. Более подробная информация по телефону.
Инфоцентр новостроек
Инфоцентр новостроек
+7 (499) 705-91-41
Время работы 9:00 — 21:00

Похожие квартиры в ЖК «Среда на Кутузовском»

2 этаж
из 44 4 квартал 2027
Москва, ЗАО
Кунцевская
10 мин.
4.1
Корпус
white box
Отделка
2.92 м
Потолки
ЖК «Среда на Кутузовском»
44 266 135
ВТБ, Промсвязьбанк, СберБанк, Совкомбанк, ДОМ.РФ
6.00%
Ставка
40.10%
Первый взнос
от 265 398 /мес.
Все варианты
6 этаж
из 44 4 квартал 2027
Москва, ЗАО
Кунцевская
10 мин.
4.1
Корпус
white box
Отделка
2.92 м
Потолки
ЖК «Среда на Кутузовском»
45 007 971
ВТБ, Промсвязьбанк, СберБанк, Совкомбанк, ДОМ.РФ
6.00%
Ставка
40.10%
Первый взнос
от 269 846 /мес.
Все варианты
13 этаж
из 44 4 квартал 2027
Москва, ЗАО
Кунцевская
10 мин.
4.1
Корпус
white box
Отделка
2.92 м
Потолки
ЖК «Среда на Кутузовском»
45 749 807
ВТБ, Промсвязьбанк, СберБанк, Совкомбанк, ДОМ.РФ
6.00%
Ставка
40.10%
Первый взнос
от 274 293 /мес.
Все варианты
17 этаж
из 44 4 квартал 2027
Москва, ЗАО
Кунцевская
10 мин.
4.1
Корпус
white box
Отделка
2.92 м
Потолки
ЖК «Среда на Кутузовском»
46 569 731
ВТБ, Промсвязьбанк, СберБанк, Совкомбанк, ДОМ.РФ
6.00%
Ставка
40.10%
Первый взнос
от 279 209 /мес.
Все варианты
Посмотреть все спецпредложения
студия 22,93 м2 18 953 938
Этаж 20/44
Москва, ЖК «Среда на Кутузовском»
Кунцевская
10 мин.
Строится
студия 25,28 м2 19 045 952
Этаж 27/30
Москва, ЖК «Среда на Кутузовском»
Кунцевская
10 мин.
Строится
1-комн. квартира 31,00 м2 23 364 700
Этаж 33/44
Москва, ЖК «Среда на Кутузовском»
Кунцевская
10 мин.
Строится
1-комн. квартира 31,61 м2 23 334 502
Этаж 21/44
Москва, ЖК «Среда на Кутузовском»
Кунцевская
10 мин.
Строится
1-комн. квартира 33,86 м2 24 236 988
Этаж 27/30
Москва, ЖК «Среда на Кутузовском»
Кунцевская
10 мин.
Строится
1-комн. квартира 33,98 м2 23 752 020
Этаж 20/30
Москва, ЖК «Среда на Кутузовском»
Кунцевская
10 мин.
Строится
Посмотреть 19 квартир в ЖК «Среда на Кутузовском»
2-комн. квартира 53,42 м2 29 519 892
Этаж 16/44
Москва, ЖК «Среда на Кутузовском»
Кунцевская
10 мин.
Строится
2-комн. квартира 54,43 м2 27 040 824
Этаж 2/12
Москва, ЖК «Среда на Кутузовском»
Кунцевская
10 мин.
Строится
Этаж 9/12
Москва, ЖК «Среда на Кутузовском»
Кунцевская
10 мин.
Строится
2-комн. квартира 55,47 м2 27 801 564
Этаж 2/12
Москва, ЖК «Среда на Кутузовском»
Кунцевская
10 мин.
Строится
Посмотреть 28 квартир в ЖК «Среда на Кутузовском»
3-комн. квартира 72,41 м2 37 826 984
Этаж 27/30
Москва, ЖК «Среда на Кутузовском»
Кунцевская
10 мин.
Строится
3-комн. квартира 72,48 м2 37 001 040
Этаж 20/30
Москва, ЖК «Среда на Кутузовском»
Кунцевская
10 мин.
Строится
3-комн. квартира 75,21 м2 37 883 277
Этаж 16/30
Москва, ЖК «Среда на Кутузовском»
Кунцевская
10 мин.
Строится
3-комн. квартира 78,22 м2 40 314 588
Этаж 5/30
Москва, ЖК «Среда на Кутузовском»
Кунцевская
10 мин.
Строится
Посмотреть 25 квартир в ЖК «Среда на Кутузовском»

Скидки и спецпредложения от застройщиков

ЖК «Среда на Кутузовском» на карте

Выгодные предложения на новостройки

Отзывы о ЖК «Среда на Кутузовском»

Самый полезный отзыв
А
24 июля 2024
Оценка:
ЖК на Кутузовском заинтересовал подходящим расположением, мы как раз ищем +/- в этом районе. На следующем неделе планируем доехать до офиса продаж, потому что в интернете не особо много информации по квартирам. Думаю, при личной встрече с менеджером попонятнее будет, что и в каком виде предлагается в Среде.
Ответить
Полезный отзыв?
Самый новый отзыв
А
04 декабря
Оценка:
Привязки к одному виду отделки нет, можно выбрать либо черновой вариант, либо же предчистовая. С предчистовой, мне кажется, попроще будет, тем более по информации, которую нам менеджер озвучил (что будет входит в вайт бокс от застройщика) выгоднее такую квартиру брать.
Ответить
Полезный отзыв?
Добавьте отзыв, заполнив личные данные, или сначала войдите на сайт, тогда информация будет автоматически взята из личного профиля.
Оценка*