Рейтинг@Mail.ru
Переверните экран
Новостройки Квартиры Ипотека Новостройки Москвы Новостройки Подмосковья Новостройки Новой Москвы Готовые новостройки Новостройки на карте Акции от застройщиков Коммерческие помещения Продавцы и застройщики Панорамы новостроек Видеообзор новостроек Экспертиза новостроек Экология Москвы и Подмосковья Студии 1-комнатные 2-комнатные 3-комнатные Квартиры на карте Ипотечный калькулятор Семейная ипотека Военная ипотека Банки и программы Медиа Новости недвижимости Мнение эксперта Аналитика рынка Покупателю Экспертиза новостроек Эксперты и авторы О проекте Контакты Реклама на сайте Vk Youtube Telegram Дзен Машиноместа Апартаменты #траншевая ипотека #рассрочка IT-ипотека Квартиры со скидками до 40% Видео 360° новостроек Субсидированная застройщиком Rutube Поиск дома в Москве Программа реновации в Москве Новостройки премиум-класса Новостройки бизнес-класса Рассрочка Траншевая ипотека Дома и коттеджи Бизнес-центры Бизнес-центры в Москве Бизнес-центры рядом с метро Строящиеся бизнес-центры Бизнес-центры класса A Бизнес-центры класса B
Данная квартира является лидером продаж среди трехкомнатных квартир в ЖК STONE Rise (Стоун Райс) по данным Росреестра
3-комн. квартира, 105.90 м2, 8 этаж
Срок сдачи 4 квартал 2028 года
55 470 420 
523 800 2
обновлено 31 января

Описание 3-комн. квартиры

Новостройка
Срок ГК
4 квартал 2028 года
Стадия строительства
котлован/фундамент
Общая площадь
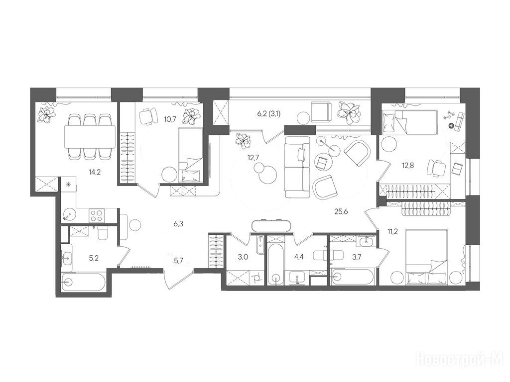
105.90 м2
Жилая площадь
34.70 м2
Площадь кухни
14.20 м2
Этаж
8 / 14

Расположение 3-комн. квартиры

Локация
Метро
Станция МЦД
Дом
C
Адрес
ул. Золоторожский вал, вл. 11, корп. C, секция 2

Особенности

Продается трехкомнатная квартира в новостройке ЖК STONE Rise (Стоун Райс) по адресу Москва, ЮВАО, Лефортово, ул. Золоторожский вал, вл. 11, корп. C. Общая площадь квартиры - 105.9 кв. м. Тип проекта, по которому построен дом — Монолитно-кирпичный, компания-застройщик — АО «СЗ «Золоторожский 11», Stone. Стоимость квартиры — 55 470 420 руб. Способы оплаты можно уточнить у продавца. Срок сдачи — 4 квартал 2028. Более подробная информация по телефону.
Инфоцентр новостроек
Инфоцентр новостроек
Время работы 9:00 — 21:00
Выбирайте квартиру в ЖК STONE Rise (Стоун Райс) по ценам от застройщика
Посмотреть все спецпредложения
студия 30,20 м2 20 561 459
Этаж 23/28
Москва, ЖК STONE Rise (Стоун Райс)
Римская
3 мин.
Строится
студия 32,60 м2 20 873 682
Этаж 23/28
Москва, ЖК STONE Rise (Стоун Райс)
Римская
3 мин.
Строится
студия 38,40 м2 23 853 619
Этаж 7/16
Москва, ЖК STONE Rise (Стоун Райс)
Римская
3 мин.
Строится
студия 43,80 м2 26 392 303
Этаж 4/14
Москва, ЖК STONE Rise (Стоун Райс)
Римская
3 мин.
Строится
Посмотреть 10 квартир в ЖК STONE Rise (Стоун Райс)
1-комн. квартира 38,00 м2 23 653 062
Этаж 2/16
Москва, ЖК STONE Rise (Стоун Райс)
Римская
3 мин.
Строится
1-комн. квартира 39,20 м2 24 863 894
Этаж 23/28
Москва, ЖК STONE Rise (Стоун Райс)
Римская
3 мин.
Строится
1-комн. квартира 40,70 м2 24 705 958
Этаж 4/28
Москва, ЖК STONE Rise (Стоун Райс)
Римская
3 мин.
Строится
1-комн. квартира 42,30 м2 25 221 756
Этаж 2/16
Москва, ЖК STONE Rise (Стоун Райс)
Римская
3 мин.
Строится
Посмотреть 41 квартира в ЖК STONE Rise (Стоун Райс)
2-комн. квартира 60,00 м2 33 942 240
Этаж 10/16
Москва, ЖК STONE Rise (Стоун Райс)
Римская
3 мин.
Строится
2-комн. квартира 63,50 м2 32 793 178
Этаж 2/28
Москва, ЖК STONE Rise (Стоун Райс)
Римская
3 мин.
Строится
2-комн. квартира 65,20 м2 37 079 957
Этаж 13/16
Москва, ЖК STONE Rise (Стоун Райс)
Римская
3 мин.
Строится
2-комн. квартира 65,30 м2 34 710 868
Этаж 2/16
Москва, ЖК STONE Rise (Стоун Райс)
Римская
3 мин.
Строится
Посмотреть 34 квартиры в ЖК STONE Rise (Стоун Райс)
3-комн. квартира 81,70 м2 42 754 836
Этаж 6/16
Москва, ЖК STONE Rise (Стоун Райс)
Римская
3 мин.
Строится
3-комн. квартира 95,40 м2 48 369 613
Этаж 8/14
Москва, ЖК STONE Rise (Стоун Райс)
Римская
3 мин.
Строится
3-комн. квартира 96,70 м2 49 206 955
Этаж 8/14
Москва, ЖК STONE Rise (Стоун Райс)
Римская
3 мин.
Строится
3-комн. квартира 101,00 м2 51 228 513
Этаж 4/28
Москва, ЖК STONE Rise (Стоун Райс)
Римская
3 мин.
Строится
Посмотреть 19 квартир в ЖК STONE Rise (Стоун Райс)
4-комн. квартира 106,30 м2 54 102 342
Этаж 11/14
Москва, ЖК STONE Rise (Стоун Райс)
Римская
3 мин.
Строится
5-комн. квартира 137,10 м2 69 671 889
Этаж 4/14
Москва, ЖК STONE Rise (Стоун Райс)
Римская
3 мин.
Строится
5-комн. квартира 140,70 м2 71 514 996
Этаж 8/14
Москва, ЖК STONE Rise (Стоун Райс)
Римская
3 мин.
Строится
5-комн. квартира 142,90 м2 71 843 118
Этаж 5/14
Москва, ЖК STONE Rise (Стоун Райс)
Римская
3 мин.
Строится
5-комн. квартира 144,20 м2 72 049 097
Этаж 7/14
Москва, ЖК STONE Rise (Стоун Райс)
Римская
3 мин.
Строится

Скидки и спецпредложения от застройщиков

ЖК STONE Rise (Стоун Райс) на карте

Выгодные предложения на новостройки

Отзывы о ЖК STONE Rise (Стоун Райс)

Самый полезный отзыв
Д
10 августа 2025
Оценка:
Планировки
Способы покупки
Внешний вид фасада
Двор, окружение
Расположение
Хороший вариант за "хорошую" цену. В 3 минутах от метро, в 2 км ТТК, квартиры от небольших однушек до просторных двухуровневых, архитектура уникальная - смотрится круто, конечно
Ответить
Полезный отзыв?
Самый новый отзыв
РШ
22 декабря 2025
Оценка:
Проект сразу произвёл впечатление атмосферой «город будущего»: чистые линии, современные решения. Квартира просторная, продуманные технические решения. Цена выше среднего, что чувствуется. Инфраструктура заявлена, но часть ещё в работе, это нужно учитывать. Есть какое-то ощущение, что покупаешь не просто квартиру, а концептуальное пространство.
Ответить
Полезный отзыв?
Добавьте отзыв, заполнив личные данные, или сначала войдите на сайт, тогда информация будет автоматически взята из личного профиля.
Оценка*