Рейтинг@Mail.ru
Переверните экран
Новостройки Квартиры Ипотека Новостройки Москвы Новостройки Подмосковья Новостройки Новой Москвы Готовые новостройки Новостройки на карте Акции от застройщиков Коммерческие помещения Продавцы и застройщики Панорамы новостроек Видеообзор новостроек Экспертиза новостроек Экология Москвы и Подмосковья Студии 1-комнатные 2-комнатные 3-комнатные Квартиры на карте Ипотечный калькулятор Семейная ипотека Военная ипотека Банки и программы Медиа Новости недвижимости Мнение эксперта Аналитика рынка Покупателю Экспертиза новостроек Эксперты и авторы О проекте Контакты Реклама на сайте Vk Youtube Telegram Дзен Машиноместа Апартаменты #траншевая ипотека #рассрочка IT-ипотека Квартиры со скидками до 40% Видео 360° новостроек Субсидированная застройщиком Rutube Поиск дома в Москве Программа реновации в Москве Новостройки премиум-класса Новостройки бизнес-класса Рассрочка Траншевая ипотека ГАЛС Дома и коттеджи Бизнес-центры Бизнес-центры в Москве Бизнес-центры рядом с метро Строящиеся бизнес-центры Бизнес-центры класса A Бизнес-центры класса B ЛСР
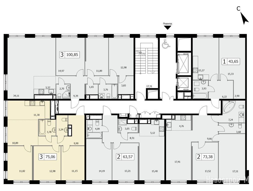
3-комн. квартира, 75.06 м2, 18 этаж
Сдан
26 415 881 
351 930 2
обновлено 18 декабря

Описание 3-комн. квартиры

Срок ГК
Дом сдан
Стадия строительства
выдача ключей + заселение
Общая площадь
75.06 м2
Этаж
18 / 19
Отделка
нет

Расположение 3-комн. квартиры

Локация
Станция МЦД
Станция МЦК
Дом
2
Адрес
3-я Гражданская ул., вл. 21, секция 1

Способы покупки

Особенности

Продается трехкомнатная квартира в новостройке ЖК Парковый квартал Self (Селф) по адресу Москва, ВАО, Богородское, 3-я Гражданская ул., вл. 21. Общая площадь квартиры - 75.06 кв. м. Тип проекта, по которому построен дом — Монолитно-кирпичный, компания-застройщик — ООО СЗ «Энергостройинвест». Стоимость квартиры — 26 415 881 руб. Способы оплаты можно уточнить у продавца. Более подробная информация по телефону.
Инфоцентр новостроек
Инфоцентр новостроек
+7 (499) 705-91-41
Время работы 9:00 — 21:00
Посмотреть все спецпредложения
1-комн. квартира 37,50 м2 19 489 241
Этаж 19/19
Москва, ЖК Парковый квартал Self (Селф)
Бульвар Рокоссовского
21 мин.
Сдан
1-комн. квартира 41,80 м2 20 084 340
Этаж 17/19
Москва, ЖК Парковый квартал Self (Селф)
Бульвар Рокоссовского
21 мин.
Сдан
1-комн. квартира 50,70 м2 19 184 681
Этаж 7/19
Москва, ЖК Парковый квартал Self (Селф)
Бульвар Рокоссовского
21 мин.
Сдан
Этаж 19/19
Москва, ЖК Парковый квартал Self (Селф)
Бульвар Рокоссовского
21 мин.
Сдан
Посмотреть 5 квартир в ЖК Парковый квартал Self
2-комн. квартира 54,70 м2 23 993 677
Этаж 7/19
Москва, ЖК Парковый квартал Self (Селф)
Бульвар Рокоссовского
21 мин.
Сдан
2-комн. квартира 54,80 м2 22 300 809
Этаж 6/19
Москва, ЖК Парковый квартал Self (Селф)
Бульвар Рокоссовского
21 мин.
Сдан
Этаж 19/19
Москва, ЖК Парковый квартал Self (Селф)
Бульвар Рокоссовского
21 мин.
Сдан
Этаж 14/19
Москва, ЖК Парковый квартал Self (Селф)
Бульвар Рокоссовского
21 мин.
Сдан
Посмотреть 44 квартиры в ЖК Парковый квартал Self
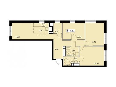
3-комн. квартира 81,50 м2 28 782 010
Этаж 14/19
Москва, ЖК Парковый квартал Self (Селф)
Бульвар Рокоссовского
21 мин.
Сдан
Этаж 18/19
Москва, ЖК Парковый квартал Self (Селф)
Бульвар Рокоссовского
21 мин.
Сдан
3-комн. квартира 81,80 м2 28 631 474
Этаж 11/19
Москва, ЖК Парковый квартал Self (Селф)
Бульвар Рокоссовского
21 мин.
Сдан
3-комн. квартира 82,00 м2 28 958 587
Этаж 13/19
Москва, ЖК Парковый квартал Self (Селф)
Бульвар Рокоссовского
21 мин.
Сдан
Посмотреть 22 квартиры в ЖК Парковый квартал Self
Этаж 19/19
Москва, ЖК Парковый квартал Self (Селф)
Бульвар Рокоссовского
21 мин.
Сдан
Этаж 19/19
Москва, ЖК Парковый квартал Self (Селф)
Бульвар Рокоссовского
21 мин.
Сдан

Скидки и спецпредложения от застройщиков

ЖК Парковый квартал Self (Селф) на карте

Выгодные предложения на новостройки

Отзывы о ЖК Парковый квартал Self

Самый полезный отзыв
МП
16 сентября 2024
Оценка:
Планировки
Внешний вид фасада
Расположение
Впечатляет своими характеристиками: высота потолков 3 метра, большие окна на расстоянии 60 см от пола, закрытая территория с парковкой и кладовыми помещениями. К сожалению, хороших планировок осталось немного, но они есть.
Ответить
Полезный отзыв?
Самый новый отзыв
Д
10 ноября
Оценка:
Транспортная доступность
Социальная инфраструктура
Готовность
Способы покупки
Двор, окружение
Расположение
Отдельное спасибо менеджерам по ипотеке - всё подробно объяснили, помогли собрать пакет документов и быстро отправили в банк. Одобрили с первой же попытки
Ответить
Полезный отзыв?
Добавьте отзыв, заполнив личные данные, или сначала войдите на сайт, тогда информация будет автоматически взята из личного профиля.
Оценка*