Рейтинг@Mail.ru
Переверните экран
Новостройки Квартиры Ипотека Новостройки Москвы Новостройки Подмосковья Новостройки Новой Москвы Готовые новостройки Новостройки на карте Акции от застройщиков Коммерческие помещения Продавцы и застройщики Панорамы новостроек Видеообзор новостроек Экспертиза новостроек Экология Москвы и Подмосковья Студии 1-комнатные 2-комнатные 3-комнатные Квартиры на карте Ипотечный калькулятор Семейная ипотека Военная ипотека Банки и программы Медиа Новости недвижимости Мнение эксперта Аналитика рынка Покупателю Экспертиза новостроек Эксперты и авторы О проекте Контакты Реклама на сайте Vk Youtube Telegram Дзен Машиноместа Апартаменты #траншевая ипотека #рассрочка ИТ-ипотека Квартиры со скидками до 40% Видео 360° новостроек Субсидированная застройщиком Rutube Поиск дома в Москве Программа реновации в Москве Новостройки премиум-класса Новостройки бизнес-класса Рассрочка Траншевая ипотека Дома и коттеджи Бизнес-центры Бизнес-центры в Москве Бизнес-центры рядом с метро Строящиеся бизнес-центры Бизнес-центры класса A Бизнес-центры класса B Ипотека со ставкой 0,1%
Данная квартира является лидером продаж среди трехкомнатных квартир в ЖК «Павелецкая от Гранель» по данным Росреестра
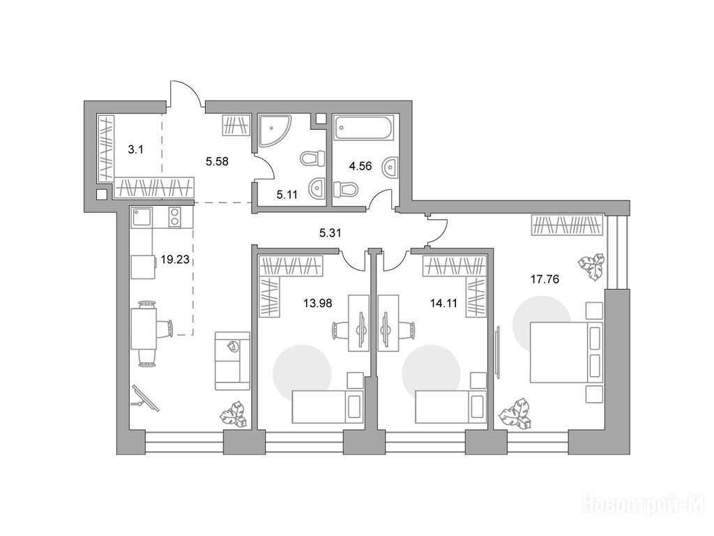
3-комн. квартира, 88.74 м2, 20 этаж
Срок сдачи 3 квартал 2028 года
56 510 382 
62 224 916
636 808 2
обновлено 18 марта

Описание 3-комн. квартиры

Застройщик
Срок ГК
3 квартал 2028 года
Стадия строительства
котлован/фундамент
Общая площадь
88.74 м2
Этаж
20 / 24
Отделка
нет

Расположение 3-комн. квартиры

Локация
Ж/Д-станция
Дом
2
Адрес
Дубининская, вл.17, корп. 2, секция 5

Способы покупки

Особенности

Продается трехкомнатная квартира в новостройке ЖК «Павелецкая от Гранель» по адресу Москва, ЦАО, Замоскворечье, Дубининская, вл.17, корп. 2. Общая площадь квартиры - 88.74 кв. м. Тип проекта, по которому построен дом — Монолит, компания-застройщик — ГК «Гранель». Стоимость квартиры — 56 510 382 руб. Способы оплаты можно уточнить у продавца. Срок сдачи — 3 квартал 2028. Более подробная информация по телефону.

Правовые документы

Инфоцентр новостроек
Инфоцентр новостроек
+7 (499) 705-91-41
Время работы 9:00 — 21:00
студия 30,23 м2 26 623 821
Этаж 15/28
Москва, ЖК «Павелецкая от Гранель»
Павелецкая
7 мин.
Строится
студия 34,03 м2 27 095 143
Этаж 6/11
Москва, ЖК «Павелецкая от Гранель»
Павелецкая
7 мин.
Строится
студия 35,85 м2 25 064 148
Этаж 4/24
Москва, ЖК «Павелецкая от Гранель»
Павелецкая
7 мин.
Строится
Посмотреть 6 квартир в ЖК «Павелецкая от Гранель»
1-комн. квартира 38,02 м2 28 725 106
Этаж 3/11
Москва, ЖК «Павелецкая от Гранель»
Павелецкая
7 мин.
Строится
1-комн. квартира 40,38 м2 29 889 590
Этаж 15/24
Москва, ЖК «Павелецкая от Гранель»
Павелецкая
7 мин.
Строится
1-комн. квартира 40,59 м2 30 888 870
Этаж 14/24
Москва, ЖК «Павелецкая от Гранель»
Павелецкая
7 мин.
Строится
Этаж 14/24
Москва, ЖК «Павелецкая от Гранель»
Павелецкая
7 мин.
Строится
Посмотреть 102 квартиры в ЖК «Павелецкая от Гранель»
2-комн. квартира 62,26 м2 38 796 155
Этаж 6/11
Москва, ЖК «Павелецкая от Гранель»
Павелецкая
7 мин.
Строится
2-комн. квартира 66,15 м2 40 134 443
Этаж 2/24
Москва, ЖК «Павелецкая от Гранель»
Павелецкая
7 мин.
Строится
2-комн. квартира 66,43 м2 41 103 869
Этаж 9/24
Москва, ЖК «Павелецкая от Гранель»
Павелецкая
7 мин.
Строится
2-комн. квартира 67,24 м2 43 150 076
Этаж 19/24
Москва, ЖК «Павелецкая от Гранель»
Павелецкая
7 мин.
Строится
Посмотреть 46 квартир в ЖК «Павелецкая от Гранель»
3-комн. квартира 70,23 м2 43 690 087
Этаж 3/28
Москва, ЖК «Павелецкая от Гранель»
Павелецкая
7 мин.
Строится
3-комн. квартира 79,39 м2 49 429 341
Этаж 22/28
Москва, ЖК «Павелецкая от Гранель»
Павелецкая
7 мин.
Строится
3-комн. квартира 83,59 м2 48 557 014
Этаж 21/24
Москва, ЖК «Павелецкая от Гранель»
Павелецкая
7 мин.
Строится
3-комн. квартира 85,01 м2 49 530 814
Этаж 4/24
Москва, ЖК «Павелецкая от Гранель»
Павелецкая
7 мин.
Строится
Посмотреть 25 квартир в ЖК «Павелецкая от Гранель»
4-комн. квартира 103,30 м2 56 592 754
Этаж 2/24
Москва, ЖК «Павелецкая от Гранель»
Павелецкая
7 мин.
Строится

Скидки и спецпредложения от застройщиков

ЖК «Павелецкая от Гранель» на карте

Выгодные предложения на новостройки

Отзывы о ЖК «Павелецкая от Гранель»

Самый полезный отзыв
СА
11 января 2024
Оценка:
Достоинства
Транспортная доступность
Двор, окружение
Расположение
Пал выбор именно на этот жилой комплекс, в офисе продаж нам все рассказали, после беседы с менеджером, решили с семьей лично проехать и посмотреть по инфраструктуре. Мой супруг часто ездит в командировке, поэтому наличие вокзала была неотъемлемая часть. От жилого комплекса в шаговой доступности Павелецкий вокзал, можно сказать практически рядом с домом.
Ответить
Самый новый отзыв
АХ
16 июня 2025
Оценка:
Достоинства
Планировки
Способы покупки
Внешний вид фасада
Двор, окружение
Расположение
Дома переменной этажности от 9 до 19 этажей словно создают динамичный городской ландшафт. Такой разброс высот наполняет пространство живостью и разнообразием, словно картины художника, каждая из которых играет в своей высоте. Мне кажется тут не просто здания — это гармония в движении, которая превращает привычный городской пейзаж в интересное множество уровней и объемов
Ответить

Оставить отзыв

Добавьте отзыв, заполнив личные данные, или сначала войдите на сайт, тогда информация будет автоматически взята из личного профиля.
Оценка*