Рейтинг@Mail.ru
Переверните экран
Новостройки Квартиры Ипотека Новостройки Москвы Новостройки Подмосковья Новостройки Новой Москвы Готовые новостройки Новостройки на карте Акции от застройщиков Коммерческие помещения Продавцы и застройщики Панорамы новостроек Видеообзор новостроек Экспертиза новостроек Экология Москвы и Подмосковья Студии 1-комнатные 2-комнатные 3-комнатные Квартиры на карте Ипотечный калькулятор Семейная ипотека Военная ипотека Банки и программы Медиа Новости недвижимости Мнение эксперта Аналитика рынка Покупателю Экспертиза новостроек Эксперты и авторы О проекте Контакты Реклама на сайте Vk Youtube Telegram Дзен Машиноместа Апартаменты #траншевая ипотека #рассрочка ИТ-ипотека Квартиры со скидками до 40% Видео 360° новостроек Субсидированная застройщиком Rutube Поиск дома в Москве Программа реновации в Москве Новостройки премиум-класса Новостройки бизнес-класса Рассрочка Траншевая ипотека Дома и коттеджи Бизнес-центры Бизнес-центры в Москве Бизнес-центры рядом с метро Строящиеся бизнес-центры Бизнес-центры класса A Бизнес-центры класса B Ипотека со ставкой 0,1%
3-комн. квартира, 116.20 м2, 13 этаж
Срок сдачи 4 квартал 2029 года
82 629 820 
711 100 2
обновлено 5 апреля

Описание 3-комн. квартиры

Новостройка
Застройщик
Срок ГК
4 квартал 2029 года
Стадия строительства
котлован/фундамент
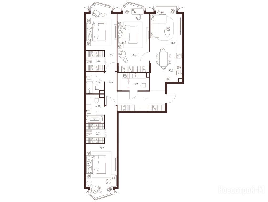
Общая площадь
116.20 м2
Этаж
13 / 25
Отделка
нет

Расположение 3-комн. квартиры

Локация
Метро
ЦСКА
20 мин.
Станция МЦК
Зорге
20 мин.
Дом
1
Адрес
ул. Викторенко, з/у 18/3А

Особенности

Продается трехкомнатная квартира в новостройке ЖК «Мастерс» по адресу Москва, САО, Хорошевский, ул. Викторенко, з/у 18/3А. Общая площадь квартиры - 116.2 кв. м. Тип проекта, по которому построен дом — Монолитно-кирпичный, компания-застройщик — Capital Group, АО «СЗ «Мастерс». Стоимость квартиры — 82 629 820 руб. Способы оплаты можно уточнить у продавца. Срок сдачи — 4 квартал 2029. Более подробная информация по телефону.
Инфоцентр новостроек
Инфоцентр новостроек
Время работы 9:00 — 21:00
Выбирайте квартиру в ЖК «Мастерс» по ценам от застройщика
Этаж 14/25
Москва, ЖК «Мастерс»
Аэропорт
12 мин.
Строится
Этаж 12/25
Москва, ЖК «Мастерс»
Аэропорт
12 мин.
Строится
Этаж 12/25
Москва, ЖК «Мастерс»
Аэропорт
12 мин.
Строится
Этаж 11/25
Москва, ЖК «Мастерс»
Аэропорт
12 мин.
Строится
Посмотреть 36 квартир в ЖК «Мастерс»
Этаж 14/25
Москва, ЖК «Мастерс»
Аэропорт
12 мин.
Строится
Этаж 11/25
Москва, ЖК «Мастерс»
Аэропорт
12 мин.
Строится
Этаж 11/25
Москва, ЖК «Мастерс»
Аэропорт
12 мин.
Строится
Этаж 10/25
Москва, ЖК «Мастерс»
Аэропорт
12 мин.
Строится
Посмотреть 61 квартира в ЖК «Мастерс»
Этаж 17/25
Москва, ЖК «Мастерс»
Аэропорт
12 мин.
Строится
Этаж 4/25
Москва, ЖК «Мастерс»
Аэропорт
12 мин.
Строится
Этаж 5/25
Москва, ЖК «Мастерс»
Аэропорт
12 мин.
Строится
Этаж 11/25
Москва, ЖК «Мастерс»
Аэропорт
12 мин.
Строится
Посмотреть 38 квартир в ЖК «Мастерс»

Скидки и спецпредложения от застройщиков

ЖК «Мастерс» на карте

Выгодные предложения на новостройки

Отзывы о ЖК «Мастерс»

Самый полезный отзыв
P
20 марта
Оценка:
Capital Group в очередной раз подтвердила статус лидера. Чувствуется колоссальный опыт и внимание к деталям, как в их знаковых проектах. Проект выглядит уникальным и продуманным до мелочей.
Ответить
Самый новый отзыв
ЕЕ
25 марта
Оценка:
Всегда мечтала о квартире с видом на Москва-Сити, в Мастерс это как раз можно реализовать. Район более чем устраивает, один из самых комфортных для жизни. Да и в целом дом реально Премиум класса, проект и дизайнерские решения впечатляют.
Ответить

Оставить отзыв

Добавьте отзыв, заполнив личные данные, или сначала войдите на сайт, тогда информация будет автоматически взята из личного профиля.
Оценка*