Рейтинг@Mail.ru
Переверните экран
Новостройки Квартиры Ипотека Новостройки Москвы Новостройки Подмосковья Новостройки Новой Москвы Готовые новостройки Новостройки на карте Акции от застройщиков Коммерческие помещения Продавцы и застройщики Панорамы новостроек Видеообзор новостроек Экспертиза новостроек Экология Москвы и Подмосковья Студии 1-комнатные 2-комнатные 3-комнатные Квартиры на карте Ипотечный калькулятор Семейная ипотека Военная ипотека Банки и программы Медиа Новости недвижимости Мнение эксперта Аналитика рынка Покупателю Экспертиза новостроек Эксперты и авторы О проекте Контакты Реклама на сайте Vk Youtube Telegram Дзен Машиноместа Апартаменты #траншевая ипотека #рассрочка ИТ-ипотека Квартиры со скидками до 40% Видео 360° новостроек Субсидированная застройщиком Rutube Поиск дома в Москве Программа реновации в Москве Новостройки премиум-класса Новостройки бизнес-класса Рассрочка Траншевая ипотека Дома и коттеджи Коттеджные поселки в Новой Москве Готовые коттеджные поселки Строящиеся коттеджные поселки Коттеджные поселки в лесу Коттеджные поселки у водоема Коттеджные поселки в ипотеку Бизнес-центры Коттеджи Ипотека со ставкой 0,1%
Данная квартира является лидером продаж среди трехкомнатных квартир в ЖК «Киноквартал» по данным Росреестра
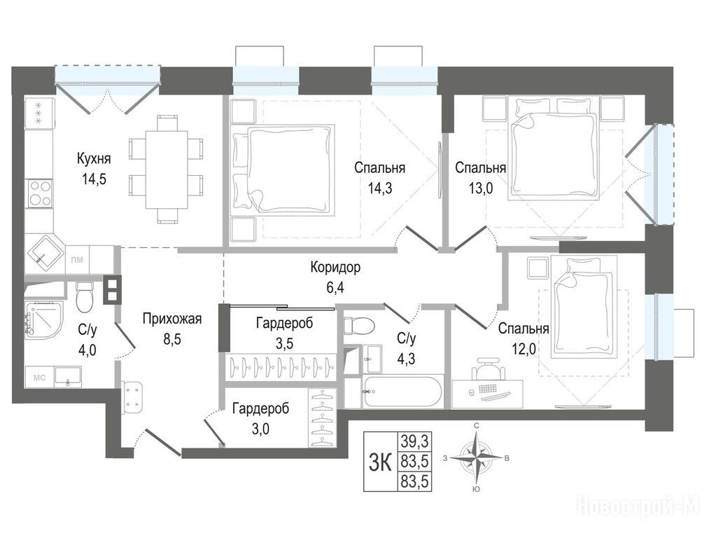
3-комн. квартира, 83.50 м2, 2 этаж
Срок сдачи 2 квартал 2028 года
17 284 500 
207 000 2
обновлено 4 мая

Описание 3-комн. квартиры

Новостройка
Застройщик
Срок ГК
2 квартал 2028 года
Стадия строительства
Общая площадь
83.50 м2
Жилая площадь
39.30 м2
Площадь кухни
14.50 м2
Этаж
2 / 4
Отделка
нет

Расположение 3-комн. квартиры

Ж/Д-станция
Дом
3
Адрес
мкрн. Первомайский, ул. Кирова / ул. Солнечная, секция 12

Способы покупки

Особенности

Продается трехкомнатная квартира в новостройке ЖК «Киноквартал» по адресу Московская область, Королев городской округ, Королев, мкрн. Первомайский, ул. Кирова / ул. Солнечная. Общая площадь квартиры - 83.5 кв. м. Тип проекта, по которому построен дом — Монолитно-кирпичный, компания-застройщик — Монолит ГК. Стоимость квартиры — 17 284 500 руб. Способы оплаты можно уточнить у продавца. Срок сдачи — 2 квартал 2028. Более подробная информация по телефону.
Инфоцентр новостроек
Инфоцентр новостроек
+7 (499) 705-91-41
Время работы 9:00 — 21:00
Этаж 7/8
МО, ЖК «Киноквартал»
Фабрика 1 Мая (ж/д)
15 мин.
Строится
студия 22,70 м2 5 300 000
Этаж 2/8
МО, ЖК «Киноквартал»
Фабрика 1 Мая (ж/д)
15 мин.
Строится
студия 23,10 м2 5 900 000
Этаж 5/6
МО, ЖК «Киноквартал»
Фабрика 1 Мая (ж/д)
15 мин.
Строится
студия 24,20 м2 5 929 000
Этаж 6/8
МО, ЖК «Киноквартал»
Фабрика 1 Мая (ж/д)
15 мин.
Строится
Посмотреть 44 квартиры в ЖК «Киноквартал»
Этаж 2/4
МО, ЖК «Киноквартал»
Фабрика 1 Мая (ж/д)
15 мин.
Строится
Этаж 2/8
МО, ЖК «Киноквартал»
Фабрика 1 Мая (ж/д)
15 мин.
Строится
1-комн. квартира 37,20 м2 7 729 050
Этаж 6/8
МО, ЖК «Киноквартал»
Фабрика 1 Мая (ж/д)
15 мин.
Строится
Этаж 2/4
МО, ЖК «Киноквартал»
Фабрика 1 Мая (ж/д)
15 мин.
Строится
Посмотреть 96 квартир в ЖК «Киноквартал»
2-комн. квартира 39,60 м2 8 514 000
Этаж 1/8
МО, ЖК «Киноквартал»
Фабрика 1 Мая (ж/д)
15 мин.
Строится
2-комн. квартира 43,10 м2 9 017 813
Этаж 1/8
МО, ЖК «Киноквартал»
Фабрика 1 Мая (ж/д)
15 мин.
Строится
Этаж 3/8
МО, ЖК «Киноквартал»
Фабрика 1 Мая (ж/д)
15 мин.
Строится
2-комн. квартира 43,90 м2 8 648 300
Этаж 2/8
МО, ЖК «Киноквартал»
Фабрика 1 Мая (ж/д)
15 мин.
Строится
Посмотреть 122 квартиры в ЖК «Киноквартал»
3-комн. квартира 66,40 м2 12 990 000
Этаж 3/4
МО, ЖК «Киноквартал»
Фабрика 1 Мая (ж/д)
15 мин.
Строится
3-комн. квартира 67,70 м2 12 330 000
Этаж 2/4
МО, ЖК «Киноквартал»
Фабрика 1 Мая (ж/д)
15 мин.
Строится
3-комн. квартира 70,30 м2 12 513 400
Этаж 6/8
МО, ЖК «Киноквартал»
Фабрика 1 Мая (ж/д)
15 мин.
Строится
3-комн. квартира 71,10 м2 12 675 200
Этаж 5/8
МО, ЖК «Киноквартал»
Фабрика 1 Мая (ж/д)
15 мин.
Строится
Посмотреть 42 квартиры в ЖК «Киноквартал»
4-комн. квартира 86,20 м2 17 605 389
Этаж 3/8
МО, ЖК «Киноквартал»
Фабрика 1 Мая (ж/д)
15 мин.
Строится
Этаж 3/8
МО, ЖК «Киноквартал»
Фабрика 1 Мая (ж/д)
15 мин.
Строится
Этаж 2/8
МО, ЖК «Киноквартал»
Фабрика 1 Мая (ж/д)
15 мин.
Строится
4-комн. квартира 87,40 м2 17 654 800
Этаж 2/8
МО, ЖК «Киноквартал»
Фабрика 1 Мая (ж/д)
15 мин.
Строится
Посмотреть 9 квартир в ЖК «Киноквартал»

Скидки и спецпредложения от застройщиков

ЖК «Киноквартал» на карте

Выгодные предложения на новостройки

Отзывы о ЖК «Киноквартал»

Самый полезный отзыв
ВД
20 ноября 2024
Оценка:
Достоинства
Социальная инфраструктура
Планировки
Двор, окружение
Расположение
Мне лично очень нравится концепция Киноквартала. Уютно, застройка не плотная будет, к тому же обещают социальные объекты вроде музея кино, летней площадки для просмотра фильмов и променад на набережной. Вроде и территория санатория, который рядом, на реконструкции еще. По мне так супер!
Ответить
Самый новый отзыв
СН
10 марта
Оценка:
Достоинства
Планировки
Квартиры без отделки, но с продуманными планировками, которые позволяют сделать ремонт под себя.
Ответить

Оставить отзыв

Добавьте отзыв, заполнив личные данные, или сначала войдите на сайт, тогда информация будет автоматически взята из личного профиля.
Оценка*