Рейтинг@Mail.ru
Переверните экран
Новостройки Квартиры Ипотека Новостройки Москвы Новостройки Подмосковья Новостройки Новой Москвы Готовые новостройки Новостройки на карте Акции от застройщиков Коммерческие помещения Продавцы и застройщики Панорамы новостроек Видеообзор новостроек Экспертиза новостроек Экология Москвы и Подмосковья Студии 1-комнатные 2-комнатные 3-комнатные Квартиры на карте Ипотечный калькулятор Семейная ипотека Военная ипотека Банки и программы Медиа Новости недвижимости Мнение эксперта Аналитика рынка Покупателю Экспертиза новостроек Эксперты и авторы О проекте Контакты Реклама на сайте Vk Youtube Telegram Дзен Машиноместа Апартаменты #траншевая ипотека #рассрочка IT-ипотека Квартиры со скидками до 40% Видео 360° новостроек Субсидированная застройщиком Rutube Поиск дома в Москве Программа реновации в Москве Новостройки премиум-класса Новостройки бизнес-класса Рассрочка Траншевая ипотека Дома и коттеджи Бизнес-центры Бизнес-центры в Москве Бизнес-центры рядом с метро Строящиеся бизнес-центры Бизнес-центры класса A Бизнес-центры класса B
Данная квартира является лидером продаж среди трехкомнатных квартир в Жилом районе «Скандинавия» по данным Росреестра
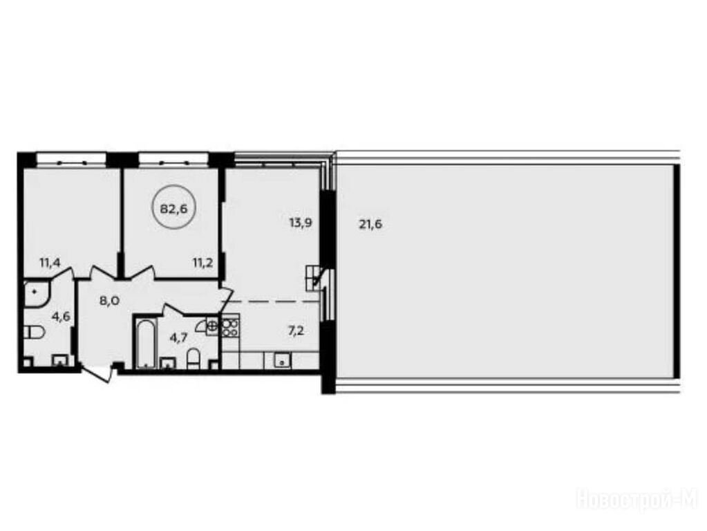
3-комн. квартира, 84.40 м2, 2 этаж
Сдан
26 548 940 
314 561 2
обновлено 1 февраля

Описание 3-комн. квартиры

Застройщик
Срок ГК
Дом сдан
Стадия строительства
Общая площадь
84.40 м2
Жилая площадь
22.60 м2
Площадь кухни
21.10 м2
Высота потолков
2.99
Этаж
2 / 16
Отделка
дизайнерская
Стоимость эксплуатации
~ 37 руб./м2

Расположение 3-комн. квартиры

Локация
Метро
Дом
22.4 (Центр)
Адрес
жилой комплекс Скандинавия, к22.4, секция 2

Способы покупки

Особенности

Продается трехкомнатная квартира в новостройке Жилой район «Скандинавия» по адресу Москва, ТиНАО, Новомосковский АО, Сосенское С/П, Коммунарка пос., жилой комплекс Скандинавия, к22.4. Общая площадь квартиры - 84.4 кв. м. Тип проекта, по которому построен дом — Монолитно-кирпичный, компания-застройщик — ООО «А101». Стоимость квартиры — 26 548 940 руб. Способы оплаты можно уточнить у продавца. Более подробная информация по телефону.

Правовые документы

Инфоцентр новостроек
Инфоцентр новостроек
+7 (499) 705-91-41
Время работы 9:00 — 21:00
Посмотреть все спецпредложения
студия 25,30 м2 11 607 640
Этаж 12/12 балкон
НМ, Жилой район «Скандинавия»
Потапово
8 мин.
Строится
1-комн. квартира 36,90 м2 14 486 571
Этаж 11/12 балкон
НМ, Жилой район «Скандинавия»
Потапово
8 мин.
Строится
2-комн. квартира 38,10 м2 17 539 335
Этаж 14/17 балкон
НМ, Жилой район «Скандинавия»
Потапово
8 мин.
Строится
3-комн. квартира 64,10 м2 26 536 118
Этаж 14/14 балкон
НМ, Жилой район «Скандинавия»
Потапово
8 мин.
Строится
студия 20,40 м2 10 480 092
Этаж 11/13 балкон
НМ, Жилой район «Скандинавия»
Потапово
8 мин.
Строится
студия 20,50 м2 10 509 530
Этаж 11/14 балкон
НМ, Жилой район «Скандинавия»
Потапово
8 мин.
Строится
студия 20,60 м2 10 556 470
Этаж 13/18 балкон
НМ, Жилой район «Скандинавия»
Потапово
8 мин.
Строится
студия 21,30 м2 10 483 434
Этаж 16/19 балкон
НМ, Жилой район «Скандинавия»
Потапово
8 мин.
Строится
Посмотреть 25 квартир в Жилом районе «Скандинавия»
1-комн. квартира 29,70 м2 18 656 649
Этаж 13/14 балкон
НМ, Жилой район «Скандинавия»
Потапово
8 мин.
Строится
1-комн. квартира 31,60 м2 17 608 152
Этаж 11/11 балкон
НМ, Жилой район «Скандинавия»
Потапово
8 мин.
Сдан
1-комн. квартира 33,30 м2 18 150 165
Этаж 11/11 балкон
НМ, Жилой район «Скандинавия»
Потапово
8 мин.
Сдан
1-комн. квартира 33,40 м2 19 477 210
Этаж 17/17 балкон
НМ, Жилой район «Скандинавия»
Потапово
8 мин.
Строится
Посмотреть 19 квартир в Жилом районе «Скандинавия»
2-комн. квартира 35,80 м2 20 551 706
Этаж 17/17 балкон
НМ, Жилой район «Скандинавия»
Потапово
8 мин.
Строится
2-комн. квартира 35,90 м2 20 305 758
Этаж 13/17 балкон
НМ, Жилой район «Скандинавия»
Потапово
8 мин.
Строится
2-комн. квартира 37,30 м2 19 362 803
Этаж 16/16 балкон
НМ, Жилой район «Скандинавия»
Потапово
8 мин.
Сдан
2-комн. квартира 37,90 м2 18 420 537
Этаж 16/17 балкон
НМ, Жилой район «Скандинавия»
Потапово
8 мин.
Строится
Посмотреть 72 квартиры в Жилом районе «Скандинавия»
3-комн. квартира 54,90 м2 29 432 439
Этаж 13/14 балкон
НМ, Жилой район «Скандинавия»
Потапово
8 мин.
Строится
3-комн. квартира 55,60 м2 25 322 464
Этаж 16/17 балкон
НМ, Жилой район «Скандинавия»
Потапово
8 мин.
Строится
3-комн. квартира 58,00 м2 29 348 580
Этаж 13/14 балкон
НМ, Жилой район «Скандинавия»
Потапово
8 мин.
Строится
3-комн. квартира 58,60 м2 23 219 078
Этаж 15/15 балкон
НМ, Жилой район «Скандинавия»
Потапово
8 мин.
Строится
Посмотреть 61 квартира в Жилом районе «Скандинавия»
4-комн. квартира 65,00 м2 30 377 750
Этаж 13/17 балкон
НМ, Жилой район «Скандинавия»
Потапово
8 мин.
Строится
4-комн. квартира 65,10 м2 29 648 493
Этаж 7/17 балкон
НМ, Жилой район «Скандинавия»
Потапово
8 мин.
Строится
4-комн. квартира 65,50 м2 25 802 415
Этаж 14/14 балкон
НМ, Жилой район «Скандинавия»
Потапово
8 мин.
Строится
4-комн. квартира 65,70 м2 25 151 274
Этаж 11/13 балкон
НМ, Жилой район «Скандинавия»
Потапово
8 мин.
Строится
Посмотреть 73 квартиры в Жилом районе «Скандинавия»
Этаж 15/17 балкон
НМ, Жилой район «Скандинавия»
Потапово
8 мин.
Строится

Скидки и спецпредложения от застройщиков

Жилой район «Скандинавия» на карте

Выгодные предложения на новостройки

Отзывы о Жилом районе «Скандинавия»

Самый полезный отзыв
П
29 мая 2018
Оценка:
Как мне кажется, застройщик надежный - а это очень и очень важно в покупке квартиры. Я бы безызвестной компании просто не доверилась бы. Мы квартиру купили пару месяцев назад здесь, успели до весомого повышения цен, еще и на скидку попали. Правда ухватили только одну акцию, т.к. предложения не суммируются. Пока что довольны всем.
Ответить
Полезный отзыв?
Самый новый отзыв
М
27 ноября 2025
Оценка:
Муж тут записал нас на экскурсию в этот ЖК, хотя мы и покупать-то ничего не планировали, в принципе, у нас была достаточно просторная двушка, которой нам хватало. Но мы съездили и прям как-то загорелись и стали подумывать в эту сторону. Ипотеку брать на всю сумму точно не было нормальным вариантом, но узнали, что можно оформить так называемый трейд ин. Воспользовались этой возможностью и приобрели здесь просторную полноценную двушку.
Ответить
Полезный отзыв?
Добавьте отзыв, заполнив личные данные, или сначала войдите на сайт, тогда информация будет автоматически взята из личного профиля.
Оценка*