Рейтинг@Mail.ru
Переверните экран
Новостройки Квартиры Ипотека Новостройки Москвы Новостройки Подмосковья Новостройки Новой Москвы Готовые новостройки Новостройки на карте Акции от застройщиков Коммерческие помещения Продавцы и застройщики Панорамы новостроек Видеообзор новостроек Экспертиза новостроек Экология Москвы и Подмосковья Студии 1-комнатные 2-комнатные 3-комнатные Квартиры на карте Ипотечный калькулятор Семейная ипотека Военная ипотека Банки и программы Медиа Новости недвижимости Мнение эксперта Аналитика рынка Покупателю Экспертиза новостроек Эксперты и авторы О проекте Контакты Реклама на сайте Vk Youtube Telegram Дзен Машиноместа Апартаменты #траншевая ипотека #рассрочка IT-ипотека Квартиры со скидками до 40% Видео 360° новостроек Субсидированная застройщиком Rutube Поиск дома в Москве Программа реновации в Москве Новостройки премиум-класса Новостройки бизнес-класса Рассрочка Траншевая ипотека ГАЛС Дома и коттеджи Бизнес-центры Бизнес-центры в Москве Бизнес-центры рядом с метро Строящиеся бизнес-центры Бизнес-центры класса A Бизнес-центры класса B ЛСР
Данная квартира является лидером продаж среди трехкомнатных квартир в Stories на Мосфильмовской по данным Росреестра
3-комн. квартира, 92.20 м2, 3 этаж
Срок сдачи 1 квартал 2026 года
56 495 953 
612 754 2
обновлено 5 декабря

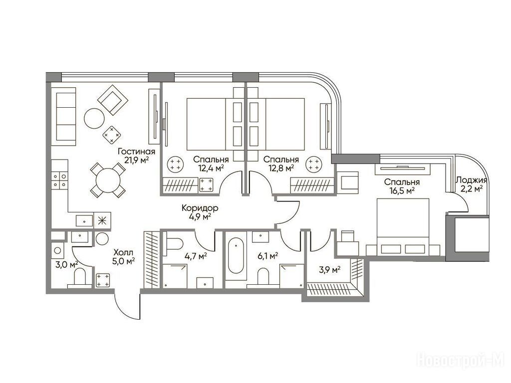
Описание 3-комн. квартиры

Срок ГК
1 квартал 2026 года
Общая площадь
92.20 м2
Жилая площадь
45.10 м2
Площадь кухни
21.90 м2
Этаж
3 / 29
Балкон
лоджия
Отделка
нет
Тип санузла
2
Вид из окна
во двор

Расположение 3-комн. квартиры

Локация
Станция МЦД
Дом
1
Адрес
ул. Мосфильмовская, д. 100, секция 1

Особенности

Продается трехкомнатная квартира в новостройке Stories на Мосфильмовской по адресу Москва, ЗАО, Раменки, ул. Мосфильмовская, д. 100. Общая площадь квартиры - 92.2 кв. м. Тип проекта, по которому построен дом — Монолитно-кирпичный, компания-застройщик — October Group (Октобер Групп). Стоимость квартиры — 56 495 953 руб. Способы оплаты можно уточнить у продавца. Срок сдачи — 1 квартал 2026. Более подробная информация по телефону.

Правовые документы

October Group (Октобер Групп)
October Group (Октобер Групп)
Сданных 0
|
Строящихся 3
Время работы 09:00 — 21:00
Выбирайте квартиру в Stories на Мосфильмовской по ценам от застройщика
Посмотреть все спецпредложения
студия 22,70 м2 19 542 877
Этаж 6/11
Москва, Stories на Мосфильмовской
Аминьевская
2 мин.
Строится
студия 22,90 м2 19 574 341
Этаж 5/11
Москва, Stories на Мосфильмовской
Аминьевская
2 мин.
Строится
студия 30,00 м2 22 840 238
Этаж 23/29
Москва, Stories на Мосфильмовской
Аминьевская
2 мин.
Строится
студия 34,60 м2 28 291 760
Этаж 7/11
Москва, Stories на Мосфильмовской
Аминьевская
2 мин.
Строится
Посмотреть 6 квартир в Stories на Мосфильмовской
1-комн. квартира 38,80 м2 31 506 380
Этаж 10/11
Москва, Stories на Мосфильмовской
Аминьевская
2 мин.
Строится
1-комн. квартира 39,60 м2 30 652 247
Этаж 8/11
Москва, Stories на Мосфильмовской
Аминьевская
2 мин.
Строится
1-комн. квартира 40,10 м2 34 037 664
Этаж 10/11
Москва, Stories на Мосфильмовской
Аминьевская
2 мин.
Строится
1-комн. квартира 40,70 м2 31 615 882
Этаж 5/11
Москва, Stories на Мосфильмовской
Аминьевская
2 мин.
Строится
Посмотреть 10 квартир в Stories на Мосфильмовской
2-комн. квартира 67,10 м2 46 177 920
Этаж 11/11 балкон
Москва, Stories на Мосфильмовской
Аминьевская
2 мин.
Строится
2-комн. квартира 70,00 м2 45 013 470
Этаж 25/29
Москва, Stories на Мосфильмовской
Аминьевская
2 мин.
Строится
2-комн. квартира 70,10 м2 45 955 989
Этаж 27/29
Москва, Stories на Мосфильмовской
Аминьевская
2 мин.
Строится
2-комн. квартира 70,30 м2 43 379 257
Этаж 13/29
Москва, Stories на Мосфильмовской
Аминьевская
2 мин.
Строится
Посмотреть 23 квартиры в Stories на Мосфильмовской
3-комн. квартира 82,10 м2 51 543 458
Этаж 5/11 балкон
Москва, Stories на Мосфильмовской
Аминьевская
2 мин.
Строится
3-комн. квартира 82,90 м2 49 675 500
Этаж 4/11
Москва, Stories на Мосфильмовской
Аминьевская
2 мин.
Строится
3-комн. квартира 83,60 м2 51 660 593
Этаж 5/11 балкон
Москва, Stories на Мосфильмовской
Аминьевская
2 мин.
Строится
3-комн. квартира 83,70 м2 51 280 634
Этаж 4/11 балкон
Москва, Stories на Мосфильмовской
Аминьевская
2 мин.
Строится
Посмотреть 12 квартир в Stories на Мосфильмовской

Скидки и спецпредложения от застройщиков

Stories на Мосфильмовской на карте

Выгодные предложения на новостройки

Отзывы о Stories на Мосфильмовской

Самый полезный отзыв
ВП
08 декабря 2022
Оценка:
Транспортная доступность
Социальная инфраструктура
Расположение
Мы выбрали этот ЖК, т.к. очень понравилась идея детского клуба, не нужно будет далеко возить ребенка на занятия, а если ребенок уже более-менее самостоятельный,то сам сможет ходить в клуб, без сопровождения родителя. Да и что уж таить, родителям тоже будет более спокойно,зная что их ребенок совсем недалеко. Еще прильщает само расположение комплекса - очень удачное. Все находится в шаговой доступности,даже в другой район не придется ездить.
Ответить
Полезный отзыв?
Самый новый отзыв
А
15 августа
Оценка:
Живу в этом районе с детства, и он всегда был спокойным. Мосфильмовская не меняется в худшую сторону, наоборот, стало чище, больше зелени, новые дома
Ответить
Полезный отзыв?
Добавьте отзыв, заполнив личные данные, или сначала войдите на сайт, тогда информация будет автоматически взята из личного профиля.
Оценка*