Рейтинг@Mail.ru
Переверните экран
Новостройки Квартиры Ипотека Новостройки Москвы Новостройки Подмосковья Новостройки Новой Москвы Готовые новостройки Новостройки на карте Акции от застройщиков Коммерческие помещения Продавцы и застройщики Панорамы новостроек Видеообзор новостроек Экспертиза новостроек Экология Москвы и Подмосковья Студии 1-комнатные 2-комнатные 3-комнатные Квартиры на карте Ипотечный калькулятор Семейная ипотека Военная ипотека Банки и программы Медиа Новости недвижимости Мнение эксперта Аналитика рынка Покупателю Экспертиза новостроек Эксперты и авторы О проекте Контакты Реклама на сайте Vk Youtube Telegram Дзен Машиноместа Апартаменты #траншевая ипотека #рассрочка IT-ипотека Квартиры со скидками до 40% Видео 360° новостроек Субсидированная застройщиком Rutube Поиск дома в Москве Программа реновации в Москве Новостройки премиум-класса Новостройки бизнес-класса Рассрочка Траншевая ипотека Дома и коттеджи Бизнес-центры Бизнес-центры в Москве Бизнес-центры рядом с метро Строящиеся бизнес-центры Бизнес-центры класса A Бизнес-центры класса B
Данная квартира является лидером продаж среди трехкомнатных квартир в Stories на Мосфильмовской по данным Росреестра
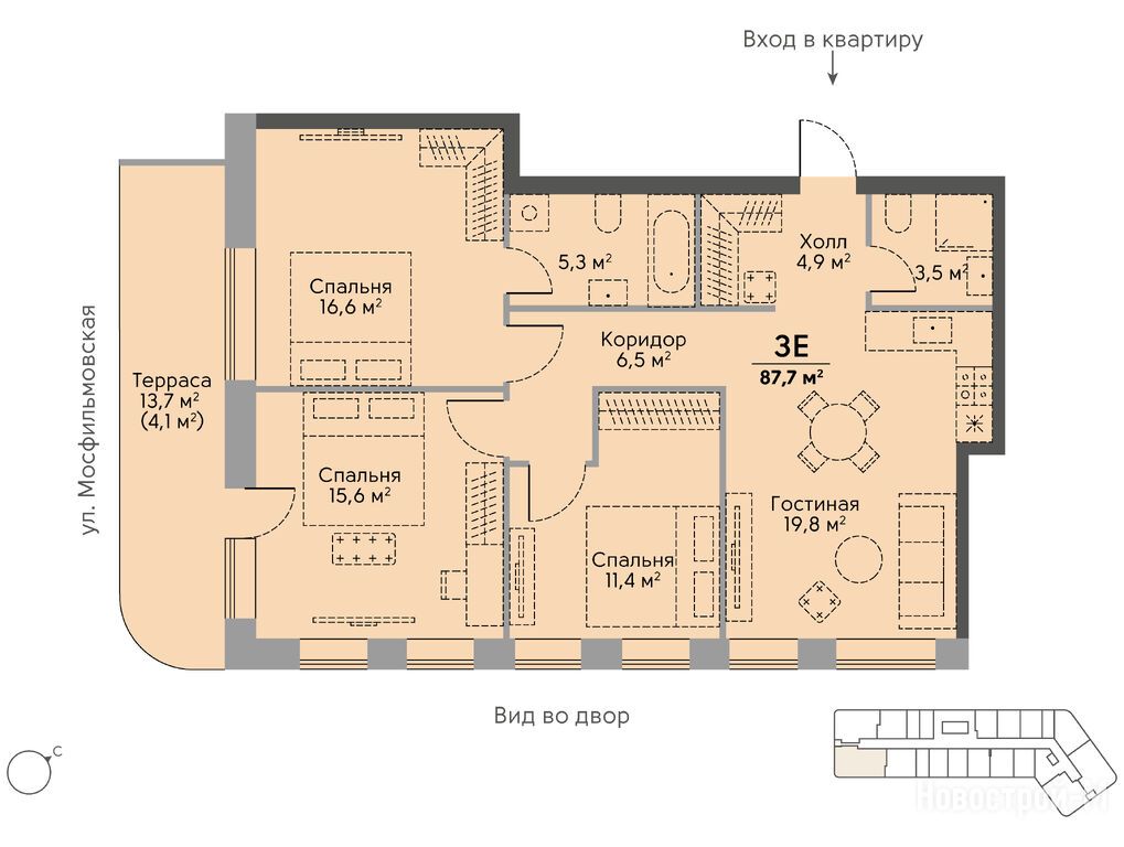
3-комн. квартира, 91.50 м2, 10 этаж
Срок сдачи 1 квартал 2026 года
67 368 294 
736 266 2
обновлено 3 февраля

Описание 3-комн. квартиры

Срок ГК
1 квартал 2026 года
Стадия строительства
отделка фасада и внутренние работы
Общая площадь
91.50 м2
Жилая площадь
61.60 м2
Площадь кухни
22.30 м2
Этаж
10 / 11
Балкон
балкон
Отделка
нет

Расположение 3-комн. квартиры

Локация
Станция МЦД
Дом
2
Адрес
ул. Мосфильмовская, д. 100, секция 1

Особенности

Продается трехкомнатная квартира в новостройке Stories на Мосфильмовской по адресу Москва, ЗАО, Раменки, ул. Мосфильмовская, д. 100. Общая площадь квартиры - 91.5 кв. м. Тип проекта, по которому построен дом — Монолитно-кирпичный, компания-застройщик — October Group (Октобер Групп). Стоимость квартиры — 67 368 294 руб. Способы оплаты можно уточнить у продавца. Срок сдачи — 1 квартал 2026. Более подробная информация по телефону.

Правовые документы

Инфоцентр новостроек
Инфоцентр новостроек
+7 (499) 705-91-41
Время работы 9:00 — 21:00

Похожие квартиры в Stories на Мосфильмовской

6 этаж
из 11 1 квартал 2026
Москва, ЗАО
Аминьевская
2 мин.
2
Корпус
нет
Отделка
3.10 м
Потолки
Stories на Мосфильмовской
66 427 460
Посмотреть все спецпредложения
студия 22,70 м2 21 242 258
Этаж 6/11
Москва, Stories на Мосфильмовской
Аминьевская
2 мин.
Строится
студия 22,90 м2 21 276 458
Этаж 5/11
Москва, Stories на Мосфильмовской
Аминьевская
2 мин.
Строится
студия 30,00 м2 26 486 681
Этаж 27/29
Москва, Stories на Мосфильмовской
Аминьевская
2 мин.
Строится
студия 34,60 м2 30 751 913
Этаж 7/11
Москва, Stories на Мосфильмовской
Аминьевская
2 мин.
Строится
Посмотреть 5 квартир в Stories на Мосфильмовской
1-комн. квартира 38,80 м2 34 246 065
Этаж 10/11
Москва, Stories на Мосфильмовской
Аминьевская
2 мин.
Строится
1-комн. квартира 39,60 м2 33 317 660
Этаж 8/11
Москва, Stories на Мосфильмовской
Аминьевская
2 мин.
Строится
1-комн. квартира 40,10 м2 36 997 461
Этаж 10/11
Москва, Stories на Мосфильмовской
Аминьевская
2 мин.
Строится
1-комн. квартира 42,40 м2 32 901 552
Этаж 18/29 лоджия
Москва, Stories на Мосфильмовской
Аминьевская
2 мин.
Строится
Посмотреть 10 квартир в Stories на Мосфильмовской
2-комн. квартира 67,10 м2 53 695 256
Этаж 11/11 балкон
Москва, Stories на Мосфильмовской
Аминьевская
2 мин.
Строится
2-комн. квартира 70,00 м2 52 341 244
Этаж 25/29
Москва, Stories на Мосфильмовской
Аминьевская
2 мин.
Строится
2-комн. квартира 70,10 м2 53 437 197
Этаж 27/29
Москва, Stories на Мосфильмовской
Аминьевская
2 мин.
Строится
2-комн. квартира 70,30 м2 50 945 406
Этаж 13/29
Москва, Stories на Мосфильмовской
Аминьевская
2 мин.
Строится
Посмотреть 24 квартиры в Stories на Мосфильмовской
3-комн. квартира 82,10 м2 59 934 253
Этаж 5/11 балкон
Москва, Stories на Мосфильмовской
Аминьевская
2 мин.
Строится
3-комн. квартира 83,60 м2 62 473 275
Этаж 5/11 балкон
Москва, Stories на Мосфильмовской
Аминьевская
2 мин.
Строится
3-комн. квартира 90,70 м2 66 938 172
Этаж 8/11 балкон
Москва, Stories на Мосфильмовской
Аминьевская
2 мин.
Строится
3-комн. квартира 91,30 м2 68 451 379
Этаж 15/29 лоджия
Москва, Stories на Мосфильмовской
Аминьевская
2 мин.
Строится
Посмотреть 10 квартир в Stories на Мосфильмовской

Скидки и спецпредложения от застройщиков

Stories на Мосфильмовской на карте

Выгодные предложения на новостройки

Отзывы о Stories на Мосфильмовской

Самый полезный отзыв
ВП
08 декабря 2022
Оценка:
Транспортная доступность
Социальная инфраструктура
Расположение
Мы выбрали этот ЖК, т.к. очень понравилась идея детского клуба, не нужно будет далеко возить ребенка на занятия, а если ребенок уже более-менее самостоятельный,то сам сможет ходить в клуб, без сопровождения родителя. Да и что уж таить, родителям тоже будет более спокойно,зная что их ребенок совсем недалеко. Еще прильщает само расположение комплекса - очень удачное. Все находится в шаговой доступности,даже в другой район не придется ездить.
Ответить
Полезный отзыв?
Самый новый отзыв
Е
13 января
Оценка:
Переезжаем в Stories из более старого дома в этом же округе. В приоритете дом с современными системами безопасности. В Stories понравилась идея камерного комплекса и охраняемого периметра. Район знаком, знаем, где школы, кружки и спорт это тоже плюс, не придётся заново всё искать. Да, цена чуть выше, чем в соседних домах, но мы воспринимаем это как инвестицию в комфорт и безопасность на ближайшие годы)
Ответить
Полезный отзыв?
Добавьте отзыв, заполнив личные данные, или сначала войдите на сайт, тогда информация будет автоматически взята из личного профиля.
Оценка*