Рейтинг@Mail.ru
Переверните экран
Новостройки Квартиры Ипотека Новостройки Москвы Новостройки Подмосковья Новостройки Новой Москвы Готовые новостройки Новостройки на карте Акции от застройщиков Коммерческие помещения Продавцы и застройщики Панорамы новостроек Видеообзор новостроек Экспертиза новостроек Экология Москвы и Подмосковья Студии 1-комнатные 2-комнатные 3-комнатные Квартиры на карте Ипотечный калькулятор Семейная ипотека Военная ипотека Банки и программы Медиа Новости недвижимости Мнение эксперта Аналитика рынка Покупателю Экспертиза новостроек Эксперты и авторы О проекте Контакты Реклама на сайте Vk Youtube Telegram Дзен Машиноместа Апартаменты #траншевая ипотека #рассрочка ИТ-ипотека Квартиры со скидками до 40% Видео 360° новостроек Субсидированная застройщиком Rutube Поиск дома в Москве Программа реновации в Москве Новостройки премиум-класса Новостройки бизнес-класса Рассрочка Траншевая ипотека Дома и коттеджи Бизнес-центры Бизнес-центры в Москве Бизнес-центры рядом с метро Строящиеся бизнес-центры Бизнес-центры класса A Бизнес-центры класса B Ипотека со ставкой 0,1%
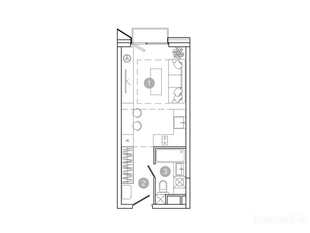
студия, 23.60 м2, 9 этаж
Срок сдачи 2 квартал 2027 года
13 640 800 
578 000 2
обновлено 29 марта

Описание студии

Застройщик
Срок ГК
2 квартал 2027 года
Стадия строительства
Тип проекта
Общая площадь
23.60 м2
Жилая площадь
10.90 м2
Площадь кухни
5.00 м2
Этаж
9 / 21

Расположение студии

Локация
Станция МЦД
Дом
1
Адрес
8-я улица Соколиной Горы, вл. 26А, секция А

Способы покупки

Особенности

Продается студия в новостройке ЖК «УНО.Соколиная гора» по адресу Москва, ВАО, Соколиная Гора, 8-я улица Соколиной Горы, вл. 26А. Общая площадь квартиры - 23.6 кв. м. Тип проекта, по которому построен дом — Монолит, компания-застройщик — ГК «Основа». Стоимость квартиры — 13 640 800 руб. Способы оплаты можно уточнить у продавца. Срок сдачи — 2 квартал 2027. Более подробная информация по телефону.
Инфоцентр новостроек
Инфоцентр новостроек
+7 (499) 705-91-41
Время работы 9:00 — 21:00
Этаж 12/21
Москва, ЖК «УНО.Соколиная гора»
Соколиная гора
3 мин.
Строится
Этаж 12/21
Москва, ЖК «УНО.Соколиная гора»
Соколиная гора
3 мин.
Строится
студия 28,40 м2 16 046 000
Этаж 8/17
Москва, ЖК «УНО.Соколиная гора»
Соколиная гора
3 мин.
Строится
Посмотреть 5 квартир в ЖК «УНО.Соколиная гора»
2-комн. квартира 41,00 м2 21 238 000
Этаж 15/17
Москва, ЖК «УНО.Соколиная гора»
Соколиная гора
3 мин.
Строится
2-комн. квартира 43,50 м2 20 010 000
Этаж 4/21
Москва, ЖК «УНО.Соколиная гора»
Соколиная гора
3 мин.
Строится
2-комн. квартира 45,20 м2 24 001 200
Этаж 20/21
Москва, ЖК «УНО.Соколиная гора»
Соколиная гора
3 мин.
Строится
2-комн. квартира 45,30 м2 21 155 100
Этаж 8/21
Москва, ЖК «УНО.Соколиная гора»
Соколиная гора
3 мин.
Строится
Посмотреть 35 квартир в ЖК «УНО.Соколиная гора»
3-комн. квартира 61,50 м2 26 752 500
Этаж 3/17
Москва, ЖК «УНО.Соколиная гора»
Соколиная гора
3 мин.
Строится
3-комн. квартира 62,90 м2 27 361 500
Этаж 2/17
Москва, ЖК «УНО.Соколиная гора»
Соколиная гора
3 мин.
Строится
3-комн. квартира 63,50 м2 27 305 000
Этаж 2/17
Москва, ЖК «УНО.Соколиная гора»
Соколиная гора
3 мин.
Строится
3-комн. квартира 66,90 м2 29 636 700
Этаж 4/21
Москва, ЖК «УНО.Соколиная гора»
Соколиная гора
3 мин.
Строится
Посмотреть 30 квартир в ЖК «УНО.Соколиная гора»
4-комн. квартира 107,20 м2 53 171 200
Этаж 19/21
Москва, ЖК «УНО.Соколиная гора»
Соколиная гора
3 мин.
Строится

Скидки и спецпредложения от застройщиков

ЖК «УНО.Соколиная гора» на карте

Выгодные предложения на новостройки

Отзывы о ЖК «УНО.Соколиная гора»

Самый полезный отзыв
ЯО
20 ноября 2024
Оценка:
Достоинства
Планировки
Внешний вид фасада
Двор, окружение
Расположение
Глядя на дома, отсылки на фильм "Аватар" сразу всплывают — и по форме, и по архитектуре. Интересное здание, лесопарк у дома - это прям короночка.
Ответить
Самый новый отзыв
Е
12 марта
Оценка:
Через дорогу от Uno большой парк. Кому как, я когда выбирала, больше интересовалась домами рядом с парками или водоемом. Это в дальнейшем моя возможность гулять на свежем воздухе. От Uno очень близко до Измайловского парка.
Ответить

Оставить отзыв

Добавьте отзыв, заполнив личные данные, или сначала войдите на сайт, тогда информация будет автоматически взята из личного профиля.
Оценка*