Рейтинг@Mail.ru
Переверните экран
Новостройки Квартиры Ипотека Новостройки Москвы Новостройки Подмосковья Новостройки Новой Москвы Готовые новостройки Новостройки на карте Акции от застройщиков Коммерческие помещения Продавцы и застройщики Панорамы новостроек Видеообзор новостроек Экспертиза новостроек Экология Москвы и Подмосковья Студии 1-комнатные 2-комнатные 3-комнатные Квартиры на карте Ипотечный калькулятор Семейная ипотека Военная ипотека Банки и программы Медиа Новости недвижимости Мнение эксперта Аналитика рынка Покупателю Экспертиза новостроек Эксперты и авторы О проекте Контакты Реклама на сайте Vk Youtube Telegram Дзен Машиноместа Апартаменты #траншевая ипотека #рассрочка IT-ипотека Квартиры со скидками до 40% Видео 360° новостроек Субсидированная застройщиком Rutube Поиск дома в Москве Программа реновации в Москве Новостройки премиум-класса Новостройки бизнес-класса Рассрочка Траншевая ипотека ГАЛС Дома и коттеджи Бизнес-центры Бизнес-центры в Москве Бизнес-центры рядом с метро Строящиеся бизнес-центры Бизнес-центры класса A Бизнес-центры класса B ЛСР
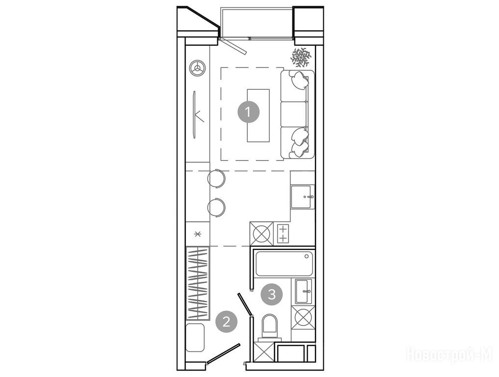
студия, 23.70 м2, 10 этаж
Срок сдачи 2 квартал 2027 года
12 205 500 
515 000 2
обновлено 5 декабря

Описание студии

Застройщик
Срок ГК
2 квартал 2027 года
Стадия строительства
Тип проекта
Общая площадь
23.70 м2
Этаж
10 / 21

Расположение студии

Локация
Станция МЦД
Дом
1
Адрес
8-я улица Соколиной Горы, вл. 26А, секция А

Особенности

Продается студия в новостройке ЖК «UNO. Соколиная гора» по адресу Москва, ВАО, Соколиная Гора, 8-я улица Соколиной Горы, вл. 26А. Общая площадь квартиры - 23.7 кв. м. Тип проекта, по которому построен дом — Монолит, компания-застройщик — ГК «Основа». Стоимость квартиры — 12 205 500 руб. Способы оплаты можно уточнить у продавца. Срок сдачи — 2 квартал 2027. Более подробная информация по телефону.
Инфоцентр новостроек
Инфоцентр новостроек
+7 (499) 705-91-41
Время работы 9:00 — 21:00
Посмотреть все спецпредложения
Этаж 8/21
Москва, ЖК «UNO. Соколиная гора»
Соколиная гора
3 мин.
Строится
Этаж 11/21
Москва, ЖК «UNO. Соколиная гора»
Соколиная гора
3 мин.
Строится
Этаж 10/21
Москва, ЖК «UNO. Соколиная гора»
Соколиная гора
3 мин.
Строится
студия 27,90 м2 13 810 500
Этаж 2/21
Москва, ЖК «UNO. Соколиная гора»
Соколиная гора
3 мин.
Строится
Посмотреть 6 квартир в ЖК «UNO. Соколиная гора»
Этаж 10/17
Москва, ЖК «UNO. Соколиная гора»
Соколиная гора
3 мин.
Строится
2-комн. квартира 41,00 м2 18 327 000
Этаж 13/17
Москва, ЖК «UNO. Соколиная гора»
Соколиная гора
3 мин.
Строится
2-комн. квартира 43,50 м2 18 531 000
Этаж 4/21
Москва, ЖК «UNO. Соколиная гора»
Соколиная гора
3 мин.
Строится
2-комн. квартира 44,60 м2 18 821 200
Этаж 2/17
Москва, ЖК «UNO. Соколиная гора»
Соколиная гора
3 мин.
Строится
Посмотреть 56 квартир в ЖК «UNO. Соколиная гора»
3-комн. квартира 61,50 м2 24 507 750
Этаж 3/17
Москва, ЖК «UNO. Соколиная гора»
Соколиная гора
3 мин.
Строится
3-комн. квартира 62,90 м2 25 789 000
Этаж 2/17
Москва, ЖК «UNO. Соколиная гора»
Соколиная гора
3 мин.
Строится
3-комн. квартира 63,50 м2 26 035 000
Этаж 2/17
Москва, ЖК «UNO. Соколиная гора»
Соколиная гора
3 мин.
Строится
3-комн. квартира 66,90 м2 27 362 100
Этаж 4/21
Москва, ЖК «UNO. Соколиная гора»
Соколиная гора
3 мин.
Строится
Посмотреть 29 квартир в ЖК «UNO. Соколиная гора»
4-комн. квартира 107,20 м2 47 382 400
Этаж 19/21
Москва, ЖК «UNO. Соколиная гора»
Соколиная гора
3 мин.
Строится

Скидки и спецпредложения от застройщиков

ЖК «UNO. Соколиная гора» на карте

Выгодные предложения на новостройки

Отзывы о ЖК «UNO. Соколиная гора»

Самый полезный отзыв
ЯО
20 ноября 2024
Оценка:
Планировки
Внешний вид фасада
Двор, окружение
Расположение
Глядя на дома, отсылки на фильм "Аватар" сразу всплывают — и по форме, и по архитектуре. Интересное здание, лесопарк у дома - это прям короночка.
Ответить
Полезный отзыв?
Самый новый отзыв
К
17 ноября
Оценка:
Для детей обещают сделать разнообразный в плане активностей двор. Детские площадки, спортивные. Каждый найдет, чем заняться. Ну а для более долгих прогулок, надо будет, конечно, идти в парк. Измайловский парк аккурат недалеко от нашего будущего дома.
Ответить
Полезный отзыв?
Добавьте отзыв, заполнив личные данные, или сначала войдите на сайт, тогда информация будет автоматически взята из личного профиля.
Оценка*