Рейтинг@Mail.ru
Переверните экран
Новостройки Квартиры Ипотека Новостройки Москвы Новостройки Подмосковья Новостройки Новой Москвы Готовые новостройки Новостройки на карте Акции от застройщиков Коммерческие помещения Продавцы и застройщики Панорамы новостроек Видеообзор новостроек Экспертиза новостроек Экология Москвы и Подмосковья Студии 1-комнатные 2-комнатные 3-комнатные Квартиры на карте Ипотечный калькулятор Семейная ипотека Военная ипотека Банки и программы Медиа Новости недвижимости Мнение эксперта Аналитика рынка Покупателю Экспертиза новостроек Эксперты и авторы О проекте Контакты Реклама на сайте Vk Youtube Telegram Дзен Машиноместа Апартаменты #траншевая ипотека #рассрочка IT-ипотека Квартиры со скидками до 40% Видео 360° новостроек Субсидированная застройщиком Rutube Поиск дома в Москве Программа реновации в Москве Новостройки премиум-класса Новостройки бизнес-класса Рассрочка Траншевая ипотека ГАЛС Дома и коттеджи Бизнес-центры Бизнес-центры в Москве Бизнес-центры рядом с метро Строящиеся бизнес-центры Бизнес-центры класса A Бизнес-центры класса B ЛСР
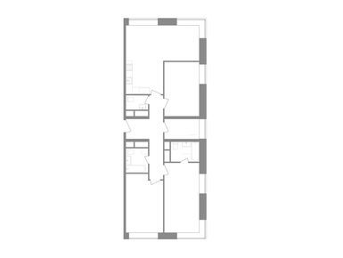
студия, 29.10 м2, 9 этаж
Срок сдачи 4 квартал 2026 года
11 116 200 
382 000 2
обновлено 17 декабря

Описание студии

Застройщик
Ташир ГК ООО СЗ БАСТИОН
Срок ГК
4 квартал 2026 года
Стадия строительства
Тип проекта
Общая площадь
29.10 м2
Жилая площадь
16.20 м2
Площадь кухни
5.00 м2
Этаж
9 / 19
Грузовой лифт
есть

Расположение студии

Локация
Метро
Станция МЦД
Сетунь
16 мин.
Станция МЦК
Лужники
25 мин.
Дом
4
Адрес
Сколковское ш., корп. 4, секция 4

Способы покупки

Особенности

Продается студия в новостройке ЖК Stellar City (Стеллар Сити) по адресу Москва, ЗАО, Можайский, Сколковское ш., корп. 4. Общая площадь квартиры - 29.1 кв. м. Тип проекта, по которому построен дом — Монолит, компания-застройщик — ООО СЗ БАСТИОН, Ташир ГК. Стоимость квартиры — 11 116 200 руб. Способы оплаты можно уточнить у продавца. Срок сдачи — 4 квартал 2026. Более подробная информация по телефону.
Инфоцентр новостроек
Инфоцентр новостроек
+7 (499) 705-91-41
Время работы 9:00 — 21:00

Похожие квартиры в ЖК Stellar City (Стеллар Сити)

1 этаж
из 19 4 квартал 2026
Москва, ЗАО
Славянский Бульвар
22 мин.
4
Корпус
нет данных
Отделка
2.90 м
Потолки
ЖК Stellar City (Стеллар Сити)
9 899 995
Московский Кредитный Банк, ВТБ, Альфа-Банк, СберБанк, Совкомбанк, Абсолют Банк, ДОМ.РФ, Уралсиб, Промсвязьбанк, Банк Акцепт
6.00%
Ставка
50.01%
Первый взнос
от 59 355 /мес.
Все варианты
Посмотреть все спецпредложения
Этаж 8/19
Москва, ЖК Stellar City (Стеллар Сити)
Славянский Бульвар
22 мин.
Строится
студия 29,10 м2 9 899 995
Этаж 1/19
Москва, ЖК Stellar City (Стеллар Сити)
Славянский Бульвар
22 мин.
Строится
студия 29,30 м2 11 998 350
Этаж 14/19
Москва, ЖК Stellar City (Стеллар Сити)
Славянский Бульвар
22 мин.
Строится
студия 29,50 м2 12 183 500
Этаж 15/19
Москва, ЖК Stellar City (Стеллар Сити)
Славянский Бульвар
22 мин.
Строится
Посмотреть 176 квартир в ЖК Stellar City (Стеллар Сити)
2-комн. квартира 46,10 м2 17 598 675
Этаж 17/19
Москва, ЖК Stellar City (Стеллар Сити)
Славянский Бульвар
22 мин.
Строится
2-комн. квартира 46,30 м2 17 594 000
Этаж 17/19
Москва, ЖК Stellar City (Стеллар Сити)
Славянский Бульвар
22 мин.
Строится
2-комн. квартира 46,70 м2 17 419 100
Этаж 15/19
Москва, ЖК Stellar City (Стеллар Сити)
Славянский Бульвар
22 мин.
Строится
2-комн. квартира 46,80 м2 17 784 000
Этаж 17/19
Москва, ЖК Stellar City (Стеллар Сити)
Славянский Бульвар
22 мин.
Строится
Посмотреть 149 квартир в ЖК Stellar City (Стеллар Сити)
3-комн. квартира 71,70 м2 21 510 000
Этаж 1/19
Москва, ЖК Stellar City (Стеллар Сити)
Славянский Бульвар
22 мин.
Строится
3-комн. квартира 72,60 м2 27 079 800
Этаж 15/19
Москва, ЖК Stellar City (Стеллар Сити)
Славянский Бульвар
22 мин.
Строится
3-комн. квартира 78,20 м2 23 694 600
Этаж 1/19
Москва, ЖК Stellar City (Стеллар Сити)
Славянский Бульвар
22 мин.
Строится
3-комн. квартира 79,20 м2 23 997 600
Этаж 1/19
Москва, ЖК Stellar City (Стеллар Сити)
Славянский Бульвар
22 мин.
Строится
Посмотреть 96 квартир в ЖК Stellar City (Стеллар Сити)
4-комн. квартира 114,00 м2 41 154 000
Этаж 3/19
Москва, ЖК Stellar City (Стеллар Сити)
Славянский Бульвар
22 мин.
Строится
4-комн. квартира 114,70 м2 46 969 650
Этаж 14/19
Москва, ЖК Stellar City (Стеллар Сити)
Славянский Бульвар
22 мин.
Строится
4-комн. квартира 114,80 м2 41 557 600
Этаж 13/14
Москва, ЖК Stellar City (Стеллар Сити)
Славянский Бульвар
22 мин.
Сдан
Посмотреть 10 квартир в ЖК Stellar City (Стеллар Сити)

Скидки и спецпредложения от застройщиков

ЖК Stellar City (Стеллар Сити) на карте

Выгодные предложения на новостройки

Отзывы о ЖК Stellar City (Стеллар Сити)

Самый полезный отзыв
Д
11 января 2019
Оценка:
Хорошо, что это не просто дома, а с социальной инфраструктурой. До мкада меньше километра. Интересно.
Ответить
Полезный отзыв?
Самый новый отзыв
ОФ
17 ноября
Оценка:
Жаль, что места хранения в Стеллар Сити не предусмотрены. Было бы удобно для спортинвентаря и коробок. Отдельный плюс жк - внимание к парковке: чувствую, что вопрос с машиной решён, цена от 1.8 млн была.
Ответить
Полезный отзыв?
Добавьте отзыв, заполнив личные данные, или сначала войдите на сайт, тогда информация будет автоматически взята из личного профиля.
Оценка*