Рейтинг@Mail.ru
Переверните экран
Новостройки Квартиры Ипотека Новостройки Москвы Новостройки Подмосковья Новостройки Новой Москвы Готовые новостройки Новостройки на карте Акции от застройщиков Коммерческие помещения Продавцы и застройщики Панорамы новостроек Видеообзор новостроек Экспертиза новостроек Экология Москвы и Подмосковья Студии 1-комнатные 2-комнатные 3-комнатные Квартиры на карте Ипотечный калькулятор Семейная ипотека Военная ипотека Банки и программы Медиа Новости недвижимости Мнение эксперта Аналитика рынка Покупателю Экспертиза новостроек Эксперты и авторы О проекте Контакты Реклама на сайте Vk Youtube Telegram Дзен Машиноместа Апартаменты #траншевая ипотека #рассрочка IT-ипотека Квартиры со скидками до 40% Видео 360° новостроек Субсидированная застройщиком Rutube Поиск дома в Москве Программа реновации в Москве Новостройки премиум-класса Новостройки бизнес-класса Рассрочка Траншевая ипотека Дома и коттеджи Бизнес-центры Бизнес-центры в Москве Бизнес-центры рядом с метро Строящиеся бизнес-центры Бизнес-центры класса A Бизнес-центры класса B
студия, 28.59 м2, 7 этаж
Срок сдачи 3 квартал 2028 года
7 470 912 
8 821 077
261 312 2
обновлено 29 января

Описание студии

Застройщик
Срок ГК
3 квартал 2028 года
Стадия строительства
Тип проекта
Общая площадь
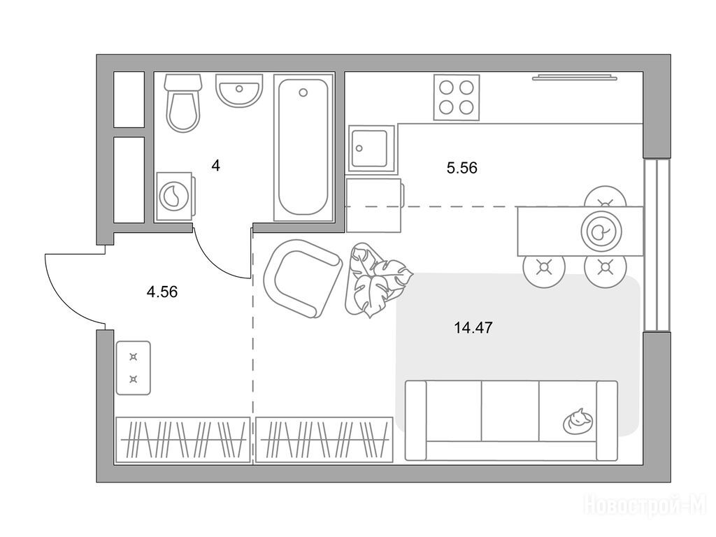
28.59 м2
Жилая площадь
14.47 м2
Площадь кухни
5.56 м2
Этаж
7 / 14
Отделка
нет

Расположение студии

Метро
Ж/Д-станция
Дом
8
Адрес
ЖК «Притяжение Сити», секция 3

Способы покупки

Особенности

Продается студия в новостройке ЖК «Притяжение Сити» по адресу Московская область, Одинцовский район, Одинцово, ЖК «Притяжение Сити». Общая площадь квартиры - 28.59 кв. м. Тип проекта, по которому построен дом — Монолит, компания-застройщик — ГК «Гранель». Стоимость квартиры — 7 470 912 руб. Способы оплаты можно уточнить у продавца. Срок сдачи — 3 квартал 2028. Более подробная информация по телефону.
ГК «Гранель»
ГК «Гранель»
Сданных 16
|
Строящихся 16
Выбирайте квартиру в ЖК «Притяжение Сити» по ценам от застройщика

Похожие квартиры в ЖК «Притяжение Сити»

8 этаж
из 14 3 квартал 2028
Московская область, Одинцовский район
Молодежная
17 мин.
8
Корпус
нет
Отделка
2.95 м
Потолки
ЖК «Притяжение Сити»
7 470 912 8 821 077
ВТБ
23.20%
Ставка
20.10%
Первый взнос
от 144 584 /мес.
Все варианты
14 этаж
из 14 3 квартал 2028
Московская область, Одинцовский район
Молодежная
17 мин.
8
Корпус
нет
Отделка
2.95 м
Потолки
ЖК «Притяжение Сити»
7 827 322 9 241 899
ВТБ
23.20%
Ставка
20.10%
Первый взнос
от 151 482 /мес.
Все варианты
Посмотреть все спецпредложения
студия 28,10 м2 8 097 366
Этаж 14/14
МО, ЖК «Притяжение Сити»
Молодежная
17 мин.
Строится
студия 28,59 м2 7 827 322
Этаж 14/14
МО, ЖК «Притяжение Сити»
Молодежная
17 мин.
Строится
студия 28,66 м2 7 846 487
Этаж 12/12
МО, ЖК «Притяжение Сити»
Молодежная
17 мин.
Строится
студия 29,51 м2 8 022 602
Этаж 4/14
МО, ЖК «Притяжение Сити»
Молодежная
17 мин.
Строится
Посмотреть 27 квартир в ЖК «Притяжение Сити»
1-комн. квартира 32,26 м2 8 816 621
Этаж 14/14
МО, ЖК «Притяжение Сити»
Молодежная
17 мин.
Строится
1-комн. квартира 32,32 м2 8 833 019
Этаж 13/14
МО, ЖК «Притяжение Сити»
Молодежная
17 мин.
Строится
1-комн. квартира 32,53 м2 8 578 468
Этаж 13/14
МО, ЖК «Притяжение Сити»
Молодежная
17 мин.
Строится
1-комн. квартира 32,96 м2 8 407 402
Этаж 2/14
МО, ЖК «Притяжение Сити»
Молодежная
17 мин.
Строится
Посмотреть 49 квартир в ЖК «Притяжение Сити»
2-комн. квартира 48,41 м2 12 075 430
Этаж 14/14
МО, ЖК «Притяжение Сити»
Молодежная
17 мин.
Строится
2-комн. квартира 48,53 м2 12 105 363
Этаж 13/14
МО, ЖК «Притяжение Сити»
Молодежная
17 мин.
Строится
2-комн. квартира 48,76 м2 12 162 734
Этаж 12/12
МО, ЖК «Притяжение Сити»
Молодежная
17 мин.
Строится
2-комн. квартира 49,38 м2 12 317 387
Этаж 14/14
МО, ЖК «Притяжение Сити»
Молодежная
17 мин.
Строится
Посмотреть 27 квартир в ЖК «Притяжение Сити»
3-комн. квартира 66,40 м2 15 552 144
Этаж 10/12
МО, ЖК «Притяжение Сити»
Молодежная
17 мин.
Строится
3-комн. квартира 67,52 м2 14 687 232
Этаж 3/12
МО, ЖК «Притяжение Сити»
Молодежная
17 мин.
Строится
3-комн. квартира 69,79 м2 15 181 012
Этаж 3/12
МО, ЖК «Притяжение Сити»
Молодежная
17 мин.
Строится
Посмотреть 5 квартир в ЖК «Притяжение Сити»

Скидки и спецпредложения от застройщиков

ЖК «Притяжение Сити» на карте

Выгодные предложения на новостройки

Отзывы о ЖК «Притяжение Сити»

Самый новый отзыв
ПМ
09 января
Оценка:
Планировки
Внешний вид фасада
Двор, окружение
Расположение
Если получится просто плотная застройка без сценариев для жителей, будет обидно. Я бы выбирал корпус и окна так, чтобы не жить в витрине на шумный двор
Ответить
Полезный отзыв?
Добавьте отзыв, заполнив личные данные, или сначала войдите на сайт, тогда информация будет автоматически взята из личного профиля.
Оценка*