Рейтинг@Mail.ru
Переверните экран
Новостройки Квартиры Ипотека Новостройки Москвы Новостройки Подмосковья Новостройки Новой Москвы Готовые новостройки Новостройки на карте Акции от застройщиков Коммерческие помещения Продавцы и застройщики Панорамы новостроек Видеообзор новостроек Экспертиза новостроек Экология Москвы и Подмосковья Студии 1-комнатные 2-комнатные 3-комнатные Квартиры на карте Ипотечный калькулятор Семейная ипотека Военная ипотека Банки и программы Медиа Новости недвижимости Мнение эксперта Аналитика рынка Покупателю Экспертиза новостроек Эксперты и авторы О проекте Контакты Реклама на сайте Vk Youtube Telegram Дзен Машиноместа Апартаменты #траншевая ипотека #рассрочка ИТ-ипотека Квартиры со скидками до 40% Видео 360° новостроек Субсидированная застройщиком Rutube Поиск дома в Москве Программа реновации в Москве Новостройки премиум-класса Новостройки бизнес-класса Рассрочка Траншевая ипотека Дома и коттеджи Бизнес-центры Бизнес-центры в Москве Бизнес-центры рядом с метро Строящиеся бизнес-центры Бизнес-центры класса A Бизнес-центры класса B Ипотека со ставкой 0,1%
студия, 30.10 м2, 8 этаж
Срок сдачи 4 квартал 2026 года
4 972 974 
165 215 2
обновлено 29 марта

Описание студии

Срок ГК
4 квартал 2026 года
Стадия строительства
монтаж верхних этажей
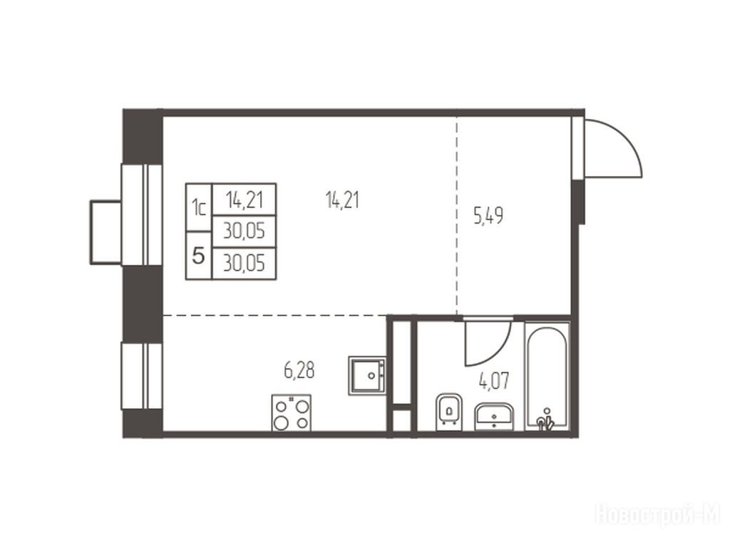
Общая площадь
30.10 м2
Жилая площадь
14.21 м2
Площадь кухни
6.28 м2
Этаж
8 / 12
Грузовой лифт
есть

Расположение студии

Станция МЦК
Ж/Д-станция
Дом
2 очередь Секция 2,3 подъезд 2
Адрес
ул. Заводская, 2 очередь, секция 2, 3, подъезд 2, секция 2

Способы покупки

Особенности

Продается студия в новостройке ЖК «Новая Ивантеевка» по адресу Московская область, Ивантеевка городской округ, Ивантеевка, ул. Заводская, 2 очередь, секция 2, 3, подъезд 2. Общая площадь квартиры - 30.1 кв. м. Тип проекта, по которому построен дом — Монолитно-кирпичный, компания-застройщик — Профи-Инвест, ООО СЗ Заводская-1. Стоимость квартиры — 4 972 974 руб. Способы оплаты можно уточнить у продавца. Срок сдачи — 4 квартал 2026. Более подробная информация по телефону.

Правовые документы

Профи-Инвест
Профи-Инвест
Сданных 9
|
Строящихся 7
Выбирайте квартиру в ЖК «Новая Ивантеевка» по ценам от застройщика

Похожие квартиры в ЖК«Новая Ивантеевка»

7 этаж
из 12 4 квартал 2026
Московская область, Ивантеевка городской округ
Ростокино
33 мин.
2 очередь Секция 2,3 подъезд 2
Корпус
нет данных
Отделка
2.74 м
Потолки
ЖК «Новая Ивантеевка»
4 972 974
СберБанк
9.90%
Ставка
20.10%
Первый взнос
от 229 248 /мес.
Все варианты
9 этаж
из 12 4 квартал 2026
Московская область, Ивантеевка городской округ
Ростокино
33 мин.
2 очередь Секция 2,3 подъезд 2
Корпус
нет данных
Отделка
2.74 м
Потолки
ЖК «Новая Ивантеевка»
5 004 376
СберБанк
9.90%
Ставка
20.10%
Первый взнос
от 230 696 /мес.
Все варианты
11 этаж
из 12 4 квартал 2026
Московская область, Ивантеевка городской округ
Ростокино
33 мин.
2 очередь Секция 2,3 подъезд 2
Корпус
нет данных
Отделка
2.74 м
Потолки
ЖК «Новая Ивантеевка»
5 035 779
СберБанк
9.90%
Ставка
20.10%
Первый взнос
от 232 143 /мес.
Все варианты
12 этаж
из 12 4 квартал 2026
Московская область, Ивантеевка городской округ
Ростокино
33 мин.
2 очередь Секция 2,3 подъезд 2
Корпус
нет данных
Отделка
2.74 м
Потолки
ЖК «Новая Ивантеевка»
5 067 181
СберБанк
9.90%
Ставка
20.10%
Первый взнос
от 233 591 /мес.
Все варианты
студия 28,60 м2 4 796 139
Этаж 9/12
МО, ЖК «Новая Ивантеевка»
Ростокино
33 мин.
Строится
студия 29,50 м2 4 865 238
Этаж 10/25
МО, ЖК «Новая Ивантеевка»
Ростокино
33 мин.
Строится
студия 29,60 м2 5 054 760
Этаж 9/25
МО, ЖК «Новая Ивантеевка»
Ростокино
33 мин.
Строится
студия 30,10 м2 5 004 376
Этаж 9/12
МО, ЖК «Новая Ивантеевка»
Ростокино
33 мин.
Строится
Посмотреть 234 квартиры в ЖК«Новая Ивантеевка»
1-комн. квартира 34,70 м2 5 772 103
Этаж 6/20
МО, ЖК «Новая Ивантеевка»
Ростокино
33 мин.
Строится
1-комн. квартира 35,00 м2 5 971 610
Этаж 11/12
МО, ЖК «Новая Ивантеевка»
Ростокино
33 мин.
Строится
1-комн. квартира 35,50 м2 5 987 873
Этаж 10/12
МО, ЖК «Новая Ивантеевка»
Ростокино
33 мин.
Строится
1-комн. квартира 35,70 м2 5 828 478
Этаж 4/20
МО, ЖК «Новая Ивантеевка»
Ростокино
33 мин.
Строится
Посмотреть 380 квартир в ЖК«Новая Ивантеевка»
2-комн. квартира 55,40 м2 8 986 349
Этаж 8/20
МО, ЖК «Новая Ивантеевка»
Ростокино
33 мин.
Строится
2-комн. квартира 56,30 м2 9 134 092
Этаж 8/20
МО, ЖК «Новая Ивантеевка»
Ростокино
33 мин.
Строится
2-комн. квартира 58,00 м2 9 131 850
Этаж 2/25
МО, ЖК «Новая Ивантеевка»
Ростокино
33 мин.
Строится
2-комн. квартира 65,70 м2 10 602 906
Этаж 2/12
МО, ЖК «Новая Ивантеевка»
Ростокино
33 мин.
Строится
Посмотреть 220 квартир в ЖК«Новая Ивантеевка»
3-комн. квартира 70,90 м2 10 850 760
Этаж 8/25
МО, ЖК «Новая Ивантеевка»
Ростокино
33 мин.
Строится
3-комн. квартира 75,60 м2 12 322 800
Этаж 20/25
МО, ЖК «Новая Ивантеевка»
Ростокино
33 мин.
Строится
Посмотреть 38 квартир в ЖК«Новая Ивантеевка»

Скидки и спецпредложения от застройщиков

ЖК «Новая Ивантеевка» на карте

Выгодные предложения на новостройки

Отзывы о ЖК«Новая Ивантеевка»

Самый полезный отзыв
ОК
20 ноября 2024
Оценка:
Достоинства
Транспортная доступность
Социальная инфраструктура
Планировки
Двор, окружение
Расположение
Проект комфорт-класса в 25 км от МКАД, рядом парки и заповедники. Хорошая транспортная развязка - до станции «Зеленый Бор» можно пешком дойти. Рядом есть съезд к Ярославскому шоссе. Всего в комплексе будет 13 домов, к ним анонсировали три детских сада, две школы и физкультурный комплекс с бассейном.
Ответить
Самый новый отзыв
ИД
17 марта
Оценка:
Сдача в 2026 году, но несколько этапов. Это добавляет определённую гибкость для покупателей, но хочется, чтобы всё было сделано вовремя.
Ответить

Оставить отзыв

Добавьте отзыв, заполнив личные данные, или сначала войдите на сайт, тогда информация будет автоматически взята из личного профиля.
Оценка*