Рейтинг@Mail.ru
Переверните экран
Новостройки Квартиры Ипотека Новостройки Москвы Новостройки Подмосковья Новостройки Новой Москвы Готовые новостройки Новостройки на карте Акции от застройщиков Коммерческие помещения Продавцы и застройщики Панорамы новостроек Видеообзор новостроек Экспертиза новостроек Экология Москвы и Подмосковья Студии 1-комнатные 2-комнатные 3-комнатные Квартиры на карте Ипотечный калькулятор Семейная ипотека Военная ипотека Банки и программы Медиа Новости недвижимости Мнение эксперта Аналитика рынка Покупателю Экспертиза новостроек Эксперты и авторы О проекте Контакты Реклама на сайте Vk Youtube Telegram Дзен Машиноместа Апартаменты #траншевая ипотека #рассрочка IT-ипотека Квартиры со скидками до 35% Видео 360° новостроек Субсидированная застройщиком Rutube Поиск дома в Москве Программа реновации в Москве Новостройки премиум-класса Новостройки бизнес-класса Рассрочка Траншевая ипотека Дома и коттеджи Бизнес-центры Бизнес-центры в Москве Бизнес-центры рядом с метро Строящиеся бизнес-центры Бизнес-центры класса A Бизнес-центры класса B
студия, 30.14 м2, 4 этаж
Срок сдачи 3 квартал 2027 года
22 134 816 
24 594 240
734 400 2
обновлено 5 февраля

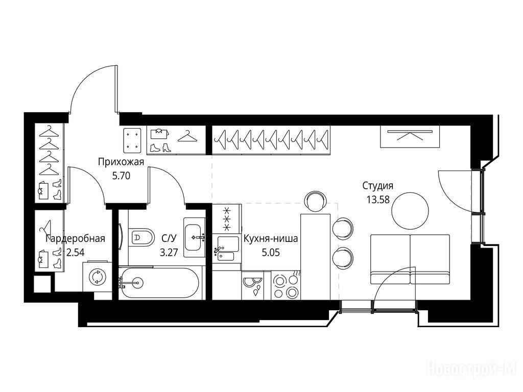
Описание студии

Новостройка
Застройщик
Срок ГК
3 квартал 2027 года
Стадия строительства
монтаж нижних этажей
Общая площадь
30.14 м2
Жилая площадь
13.58 м2
Площадь кухни
5.05 м2
Этаж
4 / 22
Отделка
нет

Расположение студии

Локация
Метро
ВДНХ
15 мин.
Станция МЦК
Дом
2
Адрес
пр-т Мира, вл. 186А, корп. 2, секция 2

Особенности

Продается студия в новостройке ЖК МИRA (МИРА) по адресу Москва, СВАО, Алексеевский, пр-т Мира, вл. 186А, корп. 2. Общая площадь квартиры - 30.14 кв. м. Тип проекта, по которому построен дом — Монолитно-кирпичный, компания-застройщик — MR Group (МР Групп). Стоимость квартиры — 22 134 816 руб. Способы оплаты можно уточнить у продавца. Срок сдачи — 3 квартал 2027. Более подробная информация по телефону.
Инфоцентр новостроек
Инфоцентр новостроек
+7 (499) 705-91-41
Время работы 9:00 — 21:00
Посмотреть все спецпредложения
студия 28,01 м2 20 678 943
Этаж 3/17
Москва, ЖК МИRA (МИРА)
ВДНХ
15 мин.
Строится
студия 28,14 м2 22 018 424
Этаж 6/17
Москва, ЖК МИRA (МИРА)
ВДНХ
15 мин.
Строится
студия 28,20 м2 21 809 034
Этаж 9/17
Москва, ЖК МИRA (МИРА)
ВДНХ
15 мин.
Строится
студия 28,22 м2 22 075 942
Этаж 11/17
Москва, ЖК МИRA (МИРА)
ВДНХ
15 мин.
Строится
Посмотреть 19 квартир в ЖК МИRA (МИРА)
1-комн. квартира 33,26 м2 23 740 655
Этаж 3/17
Москва, ЖК МИRA (МИРА)
ВДНХ
15 мин.
Строится
1-комн. квартира 33,47 м2 24 029 117
Этаж 4/17
Москва, ЖК МИRA (МИРА)
ВДНХ
15 мин.
Строится
1-комн. квартира 33,58 м2 24 670 219
Этаж 9/17
Москва, ЖК МИRA (МИРА)
ВДНХ
15 мин.
Строится
1-комн. квартира 33,87 м2 24 938 142
Этаж 6/17
Москва, ЖК МИRA (МИРА)
ВДНХ
15 мин.
Строится
Посмотреть 150 квартир в ЖК МИRA (МИРА)
2-комн. квартира 53,93 м2 32 437 277
Этаж 3/24
Москва, ЖК МИRA (МИРА)
ВДНХ
15 мин.
Строится
2-комн. квартира 54,24 м2 32 775 062
Этаж 5/24
Москва, ЖК МИRA (МИРА)
ВДНХ
15 мин.
Строится
2-комн. квартира 54,79 м2 35 000 948
Этаж 12/24
Москва, ЖК МИRA (МИРА)
ВДНХ
15 мин.
Строится
2-комн. квартира 55,73 м2 49 219 064
Этаж 22/22
Москва, ЖК МИRA (МИРА)
ВДНХ
15 мин.
Строится
Посмотреть 162 квартиры в ЖК МИRA (МИРА)
3-комн. квартира 75,66 м2 51 608 443
Этаж 21/24
Москва, ЖК МИRA (МИРА)
ВДНХ
15 мин.
Строится
3-комн. квартира 76,46 м2 50 598 934
Этаж 14/24
Москва, ЖК МИRA (МИРА)
ВДНХ
15 мин.
Строится
3-комн. квартира 78,09 м2 54 861 349
Этаж 17/17
Москва, ЖК МИRA (МИРА)
ВДНХ
15 мин.
Строится
3-комн. квартира 79,29 м2 62 076 934
Этаж 21/22
Москва, ЖК МИRA (МИРА)
ВДНХ
15 мин.
Строится
Посмотреть 52 квартиры в ЖК МИRA (МИРА)
4-комн. квартира 94,30 м2 73 361 628
Этаж 16/17
Москва, ЖК МИRA (МИРА)
ВДНХ
15 мин.
Строится
4-комн. квартира 103,79 м2 73 804 031
Этаж 17/17
Москва, ЖК МИRA (МИРА)
ВДНХ
15 мин.
Строится
4-комн. квартира 105,41 м2 64 805 014
Этаж 14/22
Москва, ЖК МИRA (МИРА)
ВДНХ
15 мин.
Строится
4-комн. квартира 105,46 м2 64 987 616
Этаж 15/22
Москва, ЖК МИRA (МИРА)
ВДНХ
15 мин.
Строится
Посмотреть 18 квартир в ЖК МИRA (МИРА)

Скидки и спецпредложения от застройщиков

ЖК МИRA (МИРА) на карте

Выгодные предложения на новостройки

Отзывы о ЖК МИRA (МИРА)

Самый полезный отзыв
ДС
19 ноября 2024
Оценка:
Планировки
Способы покупки
Внешний вид фасада
Двор, окружение
Расположение
Хороший объект, только ждать долго, поэтому не всем подойдет. Из плюсов - спокойный район с богатой инфраструктурой, авторская архитектура, парк Акведук у ЖК. Панорамные виды на Яузу, парки, ВДНХ. Удобные сервисы и безопасность для каждого жителя в будущем. Понаблюдаю за ростом цен
Ответить
Полезный отзыв?
Самый новый отзыв
ВП
11 января
Оценка:
Транспортная доступность
Социальная инфраструктура
Двор, окружение
Расположение
Плюс - это городская локация, где все рядом и не нужно строить жизнь вокруг машины. Люблю такие места за темп и выбор сервисов
Ответить
Полезный отзыв?
Добавьте отзыв, заполнив личные данные, или сначала войдите на сайт, тогда информация будет автоматически взята из личного профиля.
Оценка*