Рейтинг@Mail.ru
Переверните экран
Новостройки Квартиры Ипотека Новостройки Москвы Новостройки Подмосковья Новостройки Новой Москвы Готовые новостройки Новостройки на карте Акции от застройщиков Коммерческие помещения Продавцы и застройщики Панорамы новостроек Видеообзор новостроек Экспертиза новостроек Экология Москвы и Подмосковья Студии 1-комнатные 2-комнатные 3-комнатные Квартиры на карте Ипотечный калькулятор Семейная ипотека Военная ипотека Банки и программы Медиа Новости недвижимости Мнение эксперта Аналитика рынка Покупателю Экспертиза новостроек Эксперты и авторы О проекте Контакты Реклама на сайте Vk Youtube Telegram Дзен Машиноместа Апартаменты #траншевая ипотека #рассрочка IT-ипотека Квартиры со скидками до 40% Видео 360° новостроек Субсидированная застройщиком Rutube Поиск дома в Москве Программа реновации в Москве Новостройки премиум-класса Новостройки бизнес-класса Рассрочка Траншевая ипотека ГАЛС Дома и коттеджи Бизнес-центры Бизнес-центры в Москве Бизнес-центры рядом с метро Строящиеся бизнес-центры Бизнес-центры класса A Бизнес-центры класса B ЛСР
Данная квартира является лидером продаж среди студий в ЖК «1-й Ясеневский» (Первом Ясеневском) по данным Росреестра
Данное предложение на 18.12.2025 неактуально. Пожалуйста, ознакомьтесь с другими похожими предложениями в ЖК «1-й Ясеневский» (Первый Ясеневский) .
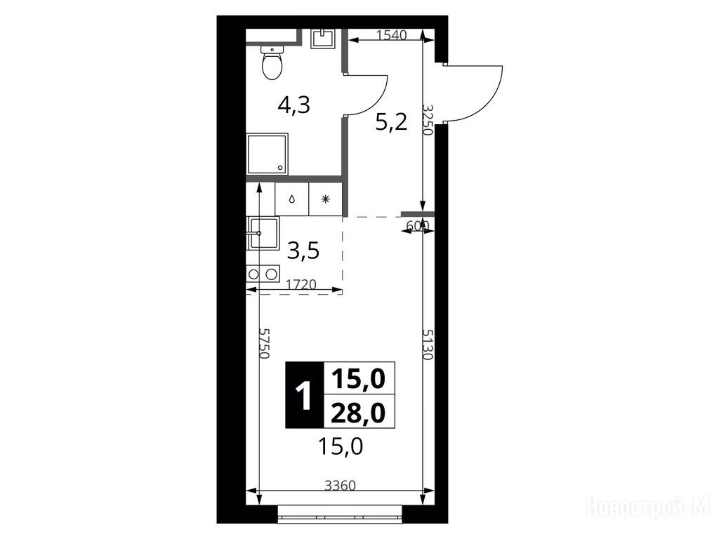
студия, 28.00 м2, 3 этаж
Срок сдачи 3 квартал 2026 года
10 175 312 
10 824 800
363 404 2
обновлено 22 октября

Описание студии

Застройщик
Срок ГК
3 квартал 2026 года
Стадия строительства
отделка фасада и внутренние работы
Тип проекта
монолитно-панельный
Общая площадь
28.00 м2
Жилая площадь
15.00 м2
Площадь кухни
3.50 м2
Этаж
3 / 18
Отделка
нет

Расположение студии

Локация
Станция МЦД
Станция МЦК
Дом
2
Адрес
ЖК «1-й Ясеневский», корп. 2, секция 3

Способы покупки

Особенности

Продается студия в новостройке ЖК «1-й Ясеневский» (Первый Ясеневский) по адресу Москва, ТиНАО, Новомосковский АО, Мосрентген С/П, Мосрентген пос., ЖК «1-й Ясеневский», корп. 2. Общая площадь квартиры - 28 кв. м. Тип проекта, по которому построен дом — Монолитно-панельный, компания-застройщик — ГК ФСК, ДСК-1. Стоимость квартиры — 10 175 312 руб. Способы оплаты можно уточнить у продавца. Срок сдачи — 1 квартал 2026. Более подробная информация по телефону.
+7 (499) 705-91-41
Время работы 9:00 — 21:00

Похожие квартиры в ЖК «1-й Ясеневский» (Первом Ясеневском)

7 этаж
из 18 3 квартал 2026
Москва, Мосрентген С/П
Корниловская
16 мин.
2
Корпус
нет
Отделка
2.72 м
Потолки
ЖК «1-й Ясеневский» (Первый Ясеневский)
12 774 384 13 885 200
Россельхозбанк, Примсоцбанк, Банк Санкт-Петербург, Уралсиб, СберБанк, Металлинвестбанк, ДОМ.РФ, Московский Кредитный Банк, Совкомбанк, Абсолют Банк, МТС Банк, Сургутнефтегазбанк
6.00%
Ставка
20.01%
Первый взнос
от 76 589 /мес.
Все варианты
12 этаж
из 18 3 квартал 2026
Москва, Мосрентген С/П
Корниловская
16 мин.
2
Корпус
нет
Отделка
2.72 м
Потолки
ЖК «1-й Ясеневский» (Первый Ясеневский)
12 787 264 13 899 200
Россельхозбанк, Примсоцбанк, Банк Санкт-Петербург, Уралсиб, СберБанк, Металлинвестбанк, ДОМ.РФ, Московский Кредитный Банк, Совкомбанк, Абсолют Банк, МТС Банк, Сургутнефтегазбанк
6.00%
Ставка
20.01%
Первый взнос
от 76 666 /мес.
Все варианты
Посмотреть все спецпредложения
студия 20,90 м2 12 027 114
Этаж 8/9
НМ, ЖК «1-й Ясеневский» (Первый Ясеневский)
Корниловская
16 мин.
Строится
студия 21,00 м2 13 139 532
Этаж 9/18
НМ, ЖК «1-й Ясеневский» (Первый Ясеневский)
Корниловская
16 мин.
Строится
студия 21,80 м2 13 154 730
Этаж 6/16
НМ, ЖК «1-й Ясеневский» (Первый Ясеневский)
Корниловская
16 мин.
Строится
студия 25,40 м2 13 417 906
Этаж 2/16
НМ, ЖК «1-й Ясеневский» (Первый Ясеневский)
Корниловская
16 мин.
Строится
Посмотреть 36 квартир в ЖК «1-й Ясеневский» (Первом Ясеневском)
1-комн. квартира 32,00 м2 13 836 800
Этаж 2/18
НМ, ЖК «1-й Ясеневский» (Первый Ясеневский)
Корниловская
16 мин.
Строится
1-комн. квартира 32,40 м2 14 278 032
Этаж 18/18
НМ, ЖК «1-й Ясеневский» (Первый Ясеневский)
Корниловская
16 мин.
Строится
1-комн. квартира 32,60 м2 13 349 439
Этаж 2/18
НМ, ЖК «1-й Ясеневский» (Первый Ясеневский)
Корниловская
16 мин.
Строится
1-комн. квартира 32,70 м2 13 974 018
Этаж 2/18
НМ, ЖК «1-й Ясеневский» (Первый Ясеневский)
Корниловская
16 мин.
Строится
Посмотреть 149 квартир в ЖК «1-й Ясеневский» (Первом Ясеневском)
2-комн. квартира 41,70 м2 15 142 271
Этаж 6/16
НМ, ЖК «1-й Ясеневский» (Первый Ясеневский)
Корниловская
16 мин.
Строится
2-комн. квартира 44,20 м2 16 684 439
Этаж 14/16
НМ, ЖК «1-й Ясеневский» (Первый Ясеневский)
Корниловская
16 мин.
Строится
2-комн. квартира 44,70 м2 15 479 074
Этаж 12/18
НМ, ЖК «1-й Ясеневский» (Первый Ясеневский)
Корниловская
16 мин.
Строится
2-комн. квартира 46,80 м2 17 386 013
Этаж 14/16
НМ, ЖК «1-й Ясеневский» (Первый Ясеневский)
Корниловская
16 мин.
Строится
Посмотреть 91 квартира в ЖК «1-й Ясеневский» (Первом Ясеневском)
Этаж 18/18
НМ, ЖК «1-й Ясеневский» (Первый Ясеневский)
Корниловская
16 мин.
Строится
Этаж 6/18
НМ, ЖК «1-й Ясеневский» (Первый Ясеневский)
Корниловская
16 мин.
Строится
3-комн. квартира 67,10 м2 23 637 183
Этаж 6/6
НМ, ЖК «1-й Ясеневский» (Первый Ясеневский)
Корниловская
16 мин.
Строится
3-комн. квартира 73,60 м2 23 821 082
Этаж 4/6
НМ, ЖК «1-й Ясеневский» (Первый Ясеневский)
Корниловская
16 мин.
Строится
Посмотреть 11 квартир в ЖК «1-й Ясеневский» (Первом Ясеневском)

Скидки и спецпредложения от застройщиков

ЖК «1-й Ясеневский» (Первый Ясеневский) на карте

Выгодные предложения на новостройки

Отзывы о ЖК «1-й Ясеневский» (Первом Ясеневском)

Самый полезный отзыв
П
04 декабря 2023
Оценка:
Экология
Готовность
В 1-м Ясеневском есть своя территория с зелеными бульварами, велодорожками, и, кстати, фруктовыми деревьями. Дворы без машин – это наверное самый важный плюс. И лесопарк рядом.
Ответить
Полезный отзыв?
Самый новый отзыв
Л
04 ноября
Оценка:
Транспортная доступность
Экология
Двор, окружение
Рядом с ЖК "1-Й Ясеневский" построил Первый ДСК нам школу с робототехникой и медиатекой -ну это круть крутая, конечно! У дочки появился интерес к учебе, учителя постоянно проводят какие-то мини-проекты. Короче невероятно рада, что купили квартиру мы именно здесь, что тут такая инфраструктура, а то родители переживали что будет жить на задворках столицы и не попятно, куда ребенка в школу отдавать, а школа у дома!!
Ответить
Полезный отзыв?
Добавьте отзыв, заполнив личные данные, или сначала войдите на сайт, тогда информация будет автоматически взята из личного профиля.
Оценка*