Рейтинг@Mail.ru
Переверните экран
Новостройки Квартиры Ипотека Новостройки Москвы Новостройки Подмосковья Новостройки Новой Москвы Готовые новостройки Новостройки на карте Акции от застройщиков Коммерческие помещения Продавцы и застройщики Панорамы новостроек Видеообзор новостроек Экспертиза новостроек Экология Москвы и Подмосковья Студии 1-комнатные 2-комнатные 3-комнатные Квартиры на карте Ипотечный калькулятор Семейная ипотека Военная ипотека Банки и программы Медиа Новости недвижимости Мнение эксперта Аналитика рынка Покупателю Экспертиза новостроек Эксперты и авторы О проекте Контакты Реклама на сайте Vk Youtube Telegram Дзен Машиноместа Апартаменты #траншевая ипотека #рассрочка IT-ипотека Квартиры со скидками до 40% Видео 360° новостроек Субсидированная застройщиком Rutube Поиск дома в Москве Программа реновации в Москве Новостройки премиум-класса Новостройки бизнес-класса Рассрочка Траншевая ипотека ГАЛС Дома и коттеджи Бизнес-центры Бизнес-центры в Москве Бизнес-центры рядом с метро Строящиеся бизнес-центры Бизнес-центры класса A Бизнес-центры класса B ЛСР
Данное помещение является лидером продаж среди студий в «EVOPARK Сокольники» (ЭВОПАРК Сокольники) по данным Росреестра
помещение-студия, 29.41 м2, 13 этаж
Срок сдачи 2 квартал 2026 года
12 440 430 
423 000 2
обновлено 5 декабря

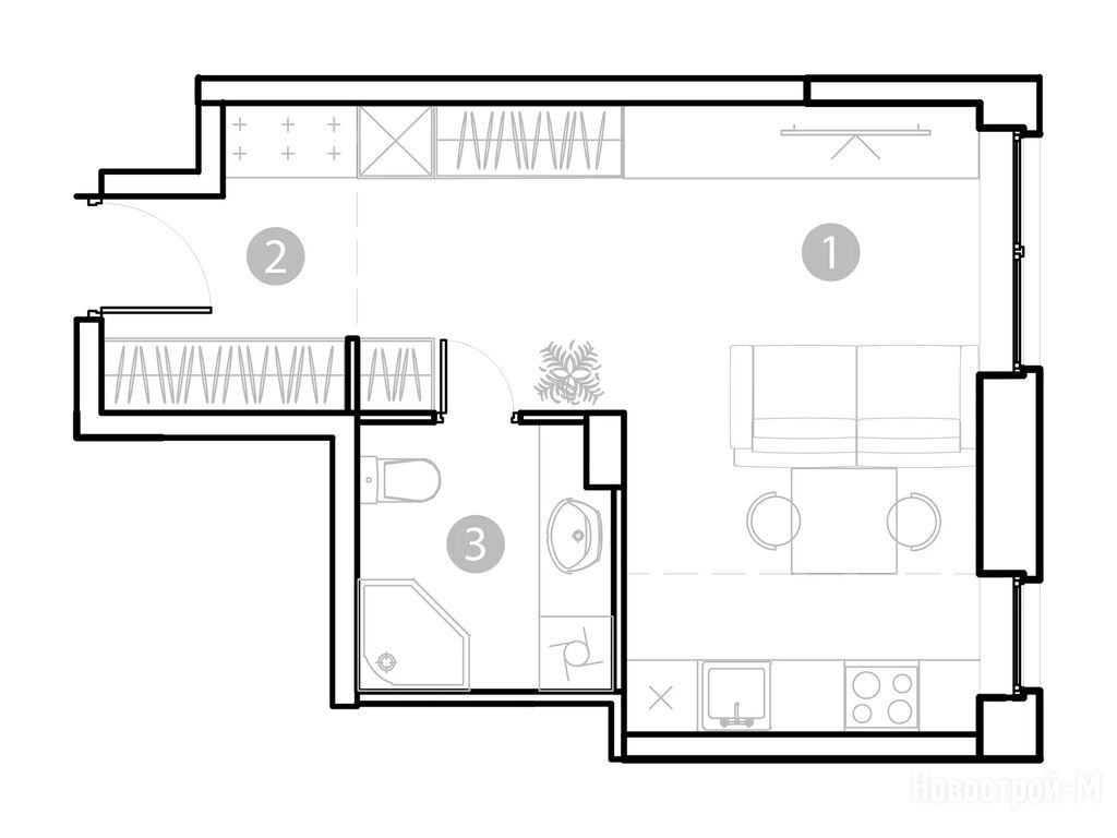
Описание помещения-студии

Срок ГК
2 квартал 2026 года
Стадия строительства
Общая площадь
29.41 м2
Жилая площадь
15.64 м2
Площадь кухни
5.00 м2
Этаж
13 / 20

Расположение помещения-студии

Локация
Станция МЦД
Дом
1
Адрес
ул. Потешная, вл. 5, корп. стр. 1, 2, секция 1

Особенности

Продается помещение-студия в новостройке «EVOPARK Сокольники» (ЭВОПАРК Сокольники) по адресу Москва, ВАО, Преображенское, ул. Потешная, вл. 5, корп. стр. 1, 2. Общая площадь помещения - 29.41 кв. м. Тип проекта, по которому построен дом — Монолитно-кирпичный, компания-застройщик — ГК «Основа», СПЕЦИАЛИЗИРОВАННЫЙ ЗАСТРОЙЩИК «АК БАРС НЕДВИЖИМОСТЬ». Стоимость помещения — 12 440 430 руб. Способы оплаты можно уточнить у продавца. Срок сдачи — 2 квартал 2026. Более подробная информация по телефону.
+7 (499) 705-91-41
Время работы 9:00 — 21:00

Похожие помещения в «EVOPARK Сокольники» (ЭВОПАРК Сокольники)

6 этаж
из 20 2 квартал 2026
Москва, ВАО
Преображенская площадь
15 мин.
1
Корпус
нет данных
Отделка
3.10 м
Потолки
«EVOPARK Сокольники» (ЭВОПАРК Сокольники)
12 146 330
Посмотреть все спецпредложения
помещение-студия 23,80 м2 11 186 000
Этаж 12/20
Москва, «EVOPARK Сокольники» (ЭВОПАРК Сокольники)
Преображенская площадь
15 мин.
Строится
помещение-студия 24,65 м2 10 106 500
Этаж 2/20
Москва, «EVOPARK Сокольники» (ЭВОПАРК Сокольники)
Преображенская площадь
15 мин.
Строится
Этаж 6/20
Москва, «EVOPARK Сокольники» (ЭВОПАРК Сокольники)
Преображенская площадь
15 мин.
Строится
помещение-студия 25,82 м2 11 877 200
Этаж 11/20
Москва, «EVOPARK Сокольники» (ЭВОПАРК Сокольники)
Преображенская площадь
15 мин.
Строится
Посмотреть 15 помещений в «EVOPARK Сокольники» (ЭВОПАРК Сокольники)
1-комн. помещение 37,52 м2 14 070 000
Этаж 2/20
Москва, «EVOPARK Сокольники» (ЭВОПАРК Сокольники)
Преображенская площадь
15 мин.
Строится
Этаж 14/20
Москва, «EVOPARK Сокольники» (ЭВОПАРК Сокольники)
Преображенская площадь
15 мин.
Строится
1-комн. помещение 38,15 м2 14 687 750
Этаж 4/20
Москва, «EVOPARK Сокольники» (ЭВОПАРК Сокольники)
Преображенская площадь
15 мин.
Строится
Посмотреть 6 помещений в «EVOPARK Сокольники» (ЭВОПАРК Сокольники)
2-комн. помещение 37,86 м2 14 197 500
Этаж 2/20
Москва, «EVOPARK Сокольники» (ЭВОПАРК Сокольники)
Преображенская площадь
15 мин.
Строится
2-комн. помещение 39,20 м2 14 896 000
Этаж 3/20
Москва, «EVOPARK Сокольники» (ЭВОПАРК Сокольники)
Преображенская площадь
15 мин.
Строится
2-комн. помещение 39,47 м2 14 801 250
Этаж 2/20
Москва, «EVOPARK Сокольники» (ЭВОПАРК Сокольники)
Преображенская площадь
15 мин.
Строится
2-комн. помещение 39,64 м2 15 142 480
Этаж 8/20
Москва, «EVOPARK Сокольники» (ЭВОПАРК Сокольники)
Преображенская площадь
15 мин.
Строится
Посмотреть 73 помещения в «EVOPARK Сокольники» (ЭВОПАРК Сокольники)
3-комн. помещение 48,22 м2 18 333 244
Этаж 3/20
Москва, «EVOPARK Сокольники» (ЭВОПАРК Сокольники)
Преображенская площадь
15 мин.
Строится
3-комн. помещение 55,07 м2 20 541 110
Этаж 3/20
Москва, «EVOPARK Сокольники» (ЭВОПАРК Сокольники)
Преображенская площадь
15 мин.
Строится
3-комн. помещение 56,23 м2 20 748 870
Этаж 2/20
Москва, «EVOPARK Сокольники» (ЭВОПАРК Сокольники)
Преображенская площадь
15 мин.
Строится
3-комн. помещение 56,27 м2 22 114 110
Этаж 15/20
Москва, «EVOPARK Сокольники» (ЭВОПАРК Сокольники)
Преображенская площадь
15 мин.
Строится
Посмотреть 24 помещения в «EVOPARK Сокольники» (ЭВОПАРК Сокольники)
4-комн. помещение 96,96 м2 35 972 160
Этаж 9/20
Москва, «EVOPARK Сокольники» (ЭВОПАРК Сокольники)
Преображенская площадь
15 мин.
Строится
4-комн. помещение 97,13 м2 36 326 620
Этаж 12/20
Москва, «EVOPARK Сокольники» (ЭВОПАРК Сокольники)
Преображенская площадь
15 мин.
Строится
4-комн. помещение 99,13 м2 36 737 578
Этаж 13/20
Москва, «EVOPARK Сокольники» (ЭВОПАРК Сокольники)
Преображенская площадь
15 мин.
Строится
Этаж 6/20
Москва, «EVOPARK Сокольники» (ЭВОПАРК Сокольники)
Преображенская площадь
15 мин.
Строится
Посмотреть 5 помещений в «EVOPARK Сокольники» (ЭВОПАРК Сокольники)

Скидки и спецпредложения от застройщиков

«EVOPARK Сокольники» (ЭВОПАРК Сокольники) на карте

Выгодные предложения на новостройки

Отзывы о «EVOPARK Сокольники» (ЭВОПАРК Сокольники)

Самый полезный отзыв
НС
09 августа 2024
Оценка:
Социальная инфраструктура
Планировки
Двор, окружение
Расположение
Виды на парк Сокольники, Оленьи пруды и Яузу открываются из наших окон! Всего пара шагов, и вы оказываетесь в парке Сокольники, где дети могут посещать футбольную школу Спартака. Как по мне так идеальное место для тех, кто хочет наслаждаться природой и активно проводить время рядом с домом.
Ответить
Полезный отзыв?
Самый новый отзыв
И
13 ноября
Оценка:
Камерный формат дома, небольшой, но очень насыщенный по благоустройству сделают двор. Менеджер подробно рассказала про комплекс, когда приезжала на встречу. После прошлась по окрестностям, хотелось осмотреться. Мне окружение Эвопарка понравилось.
Ответить
Полезный отзыв?
Добавьте отзыв, заполнив личные данные, или сначала войдите на сайт, тогда информация будет автоматически взята из личного профиля.
Оценка*