Рейтинг@Mail.ru
Переверните экран
Новостройки Квартиры Ипотека Новостройки Москвы Новостройки Подмосковья Новостройки Новой Москвы Готовые новостройки Новостройки на карте Акции от застройщиков Коммерческие помещения Продавцы и застройщики Панорамы новостроек Видеообзор новостроек Экспертиза новостроек Экология Москвы и Подмосковья Студии 1-комнатные 2-комнатные 3-комнатные Квартиры на карте Ипотечный калькулятор Семейная ипотека Военная ипотека Банки и программы Медиа Новости недвижимости Мнение эксперта Аналитика рынка Покупателю Экспертиза новостроек Эксперты и авторы О проекте Контакты Реклама на сайте Vk Youtube Telegram Дзен Машиноместа Апартаменты #траншевая ипотека #рассрочка ИТ-ипотека Квартиры со скидками до 40% Видео 360° новостроек Субсидированная застройщиком Rutube Поиск дома в Москве Программа реновации в Москве Новостройки премиум-класса Новостройки бизнес-класса Рассрочка Траншевая ипотека Дома и коттеджи Бизнес-центры Бизнес-центры в Москве Бизнес-центры рядом с метро Строящиеся бизнес-центры Бизнес-центры класса A Бизнес-центры класса B Ипотека со ставкой 0,1%
Данное предложение на 04.04.2026 неактуально. Пожалуйста, ознакомьтесь с другими похожими предложениями в ЖК «Парк Победы» (Краснодар) .
1-комн. квартира, 48.50 м2, 12 этаж
Сдан
8 434 150 
173 900 2
обновлено 20 января

Описание 1-комн. квартиры

Срок ГК
Дом сдан
Стадия строительства
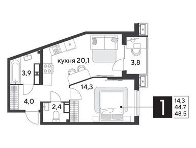
Общая площадь
48.50 м2
Жилая площадь
14.30 м2
Площадь кухни
20.10 м2
Высота потолков
2.72
Этаж
12 / 18
Балкон
лоджия
Отделка
предчистовая

Расположение 1-комн. квартиры

Локация
Дом
28
Адрес
ул. им. Героя Дангиреева, д. 4 корп. 2, секция 1

Особенности

Продается однокомнатная квартира в новостройке ЖК «Парк Победы» (Краснодар) по адресу Краснодарский край, Краснодар, ул. им. Героя Дангиреева, д. 4 корп. 2. Общая площадь квартиры - 48.5 кв. м. Тип проекта, по которому построен дом — Монолитно-кирпичный, компания-застройщик — DOGMA, ООО СЗ ДОГМА-ВОСТОК. Стоимость квартиры — 8 434 150 руб. Способы оплаты можно уточнить у продавца. Более подробная информация по телефону.
Инфоцентр новостроек
Инфоцентр новостроек
+7 (499) 705-91-41
Время работы 9:00 — 21:00

Похожие квартиры в ЖК «Парк Победы» (Краснодар)

12 этаж
из 18 Дом сдан
Краснодарский край, Краснодарский край
28
Корпус
предчистовая
Отделка
2.72 м
Потолки
ЖК «Парк Победы» (Краснодар)
8 506 900
13 этаж
из 18 Дом сдан
Краснодарский край, Краснодарский край
28
Корпус
предчистовая
Отделка
2.72 м
Потолки
ЖК «Парк Победы» (Краснодар)
8 511 750
студия 22,00 м2 4 787 200
Этаж 3/9
МО, ЖК «Парк Победы» (Краснодар)
Строится
студия 22,30 м2 4 843 560
Этаж 2/9
МО, ЖК «Парк Победы» (Краснодар)
Строится
студия 22,40 м2 4 910 080
Этаж 2/9 лоджия
МО, ЖК «Парк Победы» (Краснодар)
Строится
студия 23,50 м2 4 902 100
Этаж 12/18
МО, ЖК «Парк Победы» (Краснодар)
Строится
Посмотреть 298 квартир в ЖК «Парк Победы» (Краснодар)
1-комн. квартира 36,90 м2 6 981 480
Этаж 8/9
МО, ЖК «Парк Победы» (Краснодар)
Строится
1-комн. квартира 37,30 м2 7 109 380
Этаж 2/9
МО, ЖК «Парк Победы» (Краснодар)
Строится
1-комн. квартира 37,60 м2 7 106 400
Этаж 10/18
МО, ЖК «Парк Победы» (Краснодар)
Строится
1-комн. квартира 37,70 м2 7 283 640
Этаж 11/18 лоджия
МО, ЖК «Парк Победы» (Краснодар)
Строится
Посмотреть 417 квартир в ЖК «Парк Победы» (Краснодар)
2-комн. квартира 55,60 м2 9 579 880
Этаж 16/18 лоджия
МО, ЖК «Парк Победы» (Краснодар)
Строится
2-комн. квартира 55,90 м2 8 776 300
Этаж 10/18 лоджия
МО, ЖК «Парк Победы» (Краснодар)
Строится
2-комн. квартира 56,20 м2 8 767 200
Этаж 3/18 лоджия
МО, ЖК «Парк Победы» (Краснодар)
Строится
2-комн. квартира 56,50 м2 8 802 700
Этаж 2/18 лоджия
МО, ЖК «Парк Победы» (Краснодар)
Строится
Посмотреть 864 квартиры в ЖК «Парк Победы» (Краснодар)
3-комн. квартира 77,20 м2 11 966 000
Этаж 10/18 лоджия
МО, ЖК «Парк Победы» (Краснодар)
Строится
3-комн. квартира 77,50 м2 11 826 500
Этаж 3/18 лоджия
МО, ЖК «Парк Победы» (Краснодар)
Строится
3-комн. квартира 77,80 м2 11 872 280
Этаж 3/18 лоджия
МО, ЖК «Парк Победы» (Краснодар)
Строится
3-комн. квартира 78,10 м2 12 058 640
Этаж 5/18 лоджия
МО, ЖК «Парк Победы» (Краснодар)
Строится
Посмотреть 489 квартир в ЖК «Парк Победы» (Краснодар)

Скидки и спецпредложения от застройщиков

ЖК «Парк Победы» (Краснодар) на карте

Выгодные предложения на новостройки

Отзывы о ЖК «Парк Победы» (Краснодар)

Самый полезный отзыв
АМ
22 декабря 2025
Оценка:
Достоинства
Двор, окружение
Расположение
Понравилась атмосфера двора и наличие парковочных решений. Дом смотрится аккуратно, без лишнего пафоса. В квартире простор, хорошие виды. Район частично ещё в стадии развития. Но в Краснодаре это обычная история
Ответить
Самый новый отзыв
Р
12 марта
Оценка:
Полгода тут, и нравится! Есть площадки, зоны тихие, вечером приятно гулять
Ответить

Оставить отзыв

Добавьте отзыв, заполнив личные данные, или сначала войдите на сайт, тогда информация будет автоматически взята из личного профиля.
Оценка*