Рейтинг@Mail.ru
Переверните экран
Новостройки Квартиры Ипотека Новостройки Москвы Новостройки Подмосковья Новостройки Новой Москвы Готовые новостройки Новостройки на карте Акции от застройщиков Коммерческие помещения Продавцы и застройщики Панорамы новостроек Видеообзор новостроек Экспертиза новостроек Экология Москвы и Подмосковья Студии 1-комнатные 2-комнатные 3-комнатные Квартиры на карте Ипотечный калькулятор Семейная ипотека Военная ипотека Банки и программы Медиа Новости недвижимости Мнение эксперта Аналитика рынка Покупателю Экспертиза новостроек Эксперты и авторы О проекте Контакты Реклама на сайте Vk Youtube Telegram Дзен Машиноместа Апартаменты #траншевая ипотека #рассрочка IT-ипотека Квартиры со скидками до 40% Видео 360° новостроек Субсидированная застройщиком Rutube Поиск дома в Москве Программа реновации в Москве Новостройки премиум-класса Новостройки бизнес-класса Рассрочка Траншевая ипотека ГАЛС Дома и коттеджи Бизнес-центры Бизнес-центры в Москве Бизнес-центры рядом с метро Строящиеся бизнес-центры Бизнес-центры класса A Бизнес-центры класса B ЛСР
Данная квартира является лидером продаж среди однокомнатных квартир в ЖК MYPRIORITY Мневники (Май Приорити Мневники) по данным Росреестра
Данное предложение на 13.12.2025 неактуально. Пожалуйста, ознакомьтесь с другими похожими предложениями в ЖК MYPRIORITY Мневники (Май Приорити Мневники) .
1-комн. квартира, 43.29 м2, 18 этаж
Срок сдачи 2 квартал 2028 года
21 190 296 
23 333 135
489 496 2
обновлено 25 сентября

Описание 1-комн. квартиры

Срок ГК
2 квартал 2028 года
Стадия строительства
котлован/фундамент
Тип проекта
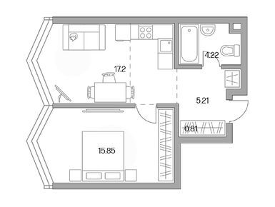
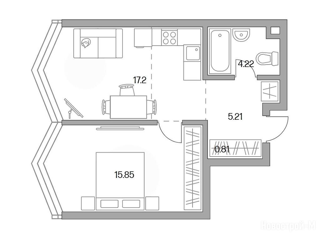
Общая площадь
43.29 м2
Жилая площадь
15.85 м2
Площадь кухни
17.20 м2
Этаж
18 / 27
Отделка
нет

Расположение 1-комн. квартиры

Локация
Станция МЦК
Зорге
13 мин.
Дом
1
Адрес
ул. Народного Ополчения, вл. 34, корп. 1, секция 1

Способы покупки

Особенности

Продается однокомнатная квартира в новостройке ЖК MYPRIORITY Мневники (Май Приорити Мневники) по адресу Москва, СЗАО, Хорошево-Мневники, ул. Народного Ополчения, вл. 34, корп. 1. Общая площадь квартиры - 43.29 кв. м. Тип проекта, по которому построен дом — Монолит, компания-застройщик — ГК «Гранель», ООО СЗ ГРАНЕЛЬ АЛЬФА. Стоимость квартиры — 21 190 296 руб. Способы оплаты можно уточнить у продавца. Срок сдачи — 2 квартал 2028. Более подробная информация по телефону.
ГК «Гранель»
ГК «Гранель»
Сданных 16
|
Строящихся 16
Время работы 09:00 — 21:00
Выбирайте квартиру в ЖК MYPRIORITY Мневники (Май Приорити Мневники) по ценам от застройщика

Похожие квартиры в ЖК MYPRIORITY Мневники (Май Приорити Мневники)

13 этаж
из 27 2 квартал 2028
Москва, СЗАО
Октябрьское Поле
13 мин.
1
Корпус
нет
Отделка
3.20 м
Потолки
ЖК MYPRIORITY Мневники (Май Приорити Мневники)
24 402 441 28 134 579
Всероссийский банк развития регионов, Азиатско-Тихоокеанский Банк, СберБанк, Совкомбанк, Банк Санкт-Петербург, Примсоцбанк, Металлинвестбанк, Абсолют Банк, Россельхозбанк, Уралсиб, ДОМ.РФ, Промсвязьбанк, Севергазбанк, Московский Кредитный Банк, МТС Банк, Альфа-Банк, Сургутнефтегазбанк, ВТБ
5.80%
Ставка
20.10%
Первый взнос
от 143 182 /мес.
Все варианты
19 этаж
из 27 2 квартал 2028
Москва, СЗАО
Октябрьское Поле
13 мин.
1
Корпус
нет
Отделка
3.20 м
Потолки
ЖК MYPRIORITY Мневники (Май Приорити Мневники)
24 572 493 28 330 639
Всероссийский банк развития регионов, Азиатско-Тихоокеанский Банк, СберБанк, Совкомбанк, Банк Санкт-Петербург, Примсоцбанк, Металлинвестбанк, Абсолют Банк, Россельхозбанк, Уралсиб, ДОМ.РФ, Промсвязьбанк, Севергазбанк, Московский Кредитный Банк, МТС Банк, Альфа-Банк, Сургутнефтегазбанк, ВТБ
5.80%
Ставка
20.10%
Первый взнос
от 144 180 /мес.
Все варианты
Посмотреть все спецпредложения
студия 28,02 м2 18 161 255
Этаж 3/9
Москва, ЖК MYPRIORITY Мневники (Май Приорити Мневники)
Октябрьское Поле
13 мин.
Строится
студия 28,03 м2 16 488 597
Этаж 3/39
Москва, ЖК MYPRIORITY Мневники (Май Приорити Мневники)
Октябрьское Поле
13 мин.
Строится
студия 28,05 м2 17 464 490
Этаж 6/9
Москва, ЖК MYPRIORITY Мневники (Май Приорити Мневники)
Октябрьское Поле
13 мин.
Строится
студия 28,06 м2 17 608 498
Этаж 7/27
Москва, ЖК MYPRIORITY Мневники (Май Приорити Мневники)
Октябрьское Поле
13 мин.
Строится
Посмотреть 62 квартиры в ЖК MYPRIORITY Мневники (Май Приорити Мневники)
1-комн. квартира 31,47 м2 18 419 456
Этаж 2/39
Москва, ЖК MYPRIORITY Мневники (Май Приорити Мневники)
Октябрьское Поле
13 мин.
Строится
1-комн. квартира 31,50 м2 18 437 015
Этаж 2/39
Москва, ЖК MYPRIORITY Мневники (Май Приорити Мневники)
Октябрьское Поле
13 мин.
Строится
1-комн. квартира 32,82 м2 19 467 461
Этаж 8/39
Москва, ЖК MYPRIORITY Мневники (Май Приорити Мневники)
Октябрьское Поле
13 мин.
Строится
1-комн. квартира 32,87 м2 18 109 079
Этаж 11/27
Москва, ЖК MYPRIORITY Мневники (Май Приорити Мневники)
Октябрьское Поле
13 мин.
Строится
Посмотреть 141 квартира в ЖК MYPRIORITY Мневники (Май Приорити Мневники)
2-комн. квартира 55,49 м2 29 862 700
Этаж 2/9
Москва, ЖК MYPRIORITY Мневники (Май Приорити Мневники)
Октябрьское Поле
13 мин.
Строится
Этаж 3/9
Москва, ЖК MYPRIORITY Мневники (Май Приорити Мневники)
Октябрьское Поле
13 мин.
Строится
Этаж 5/9
Москва, ЖК MYPRIORITY Мневники (Май Приорити Мневники)
Октябрьское Поле
13 мин.
Строится
2-комн. квартира 56,37 м2 30 336 284
Этаж 2/9
Москва, ЖК MYPRIORITY Мневники (Май Приорити Мневники)
Октябрьское Поле
13 мин.
Строится
Посмотреть 35 квартир в ЖК MYPRIORITY Мневники (Май Приорити Мневники)
Этаж 10/39
Москва, ЖК MYPRIORITY Мневники (Май Приорити Мневники)
Октябрьское Поле
13 мин.
Строится
Этаж 11/27
Москва, ЖК MYPRIORITY Мневники (Май Приорити Мневники)
Октябрьское Поле
13 мин.
Строится
3-комн. квартира 59,37 м2 28 744 037
Этаж 4/39
Москва, ЖК MYPRIORITY Мневники (Май Приорити Мневники)
Октябрьское Поле
13 мин.
Строится
3-комн. квартира 59,49 м2 29 269 512
Этаж 7/27
Москва, ЖК MYPRIORITY Мневники (Май Приорити Мневники)
Октябрьское Поле
13 мин.
Строится
Посмотреть 42 квартиры в ЖК MYPRIORITY Мневники (Май Приорити Мневники)
Этаж 27/39
Москва, ЖК MYPRIORITY Мневники (Май Приорити Мневники)
Октябрьское Поле
13 мин.
Строится
Этаж 24/27
Москва, ЖК MYPRIORITY Мневники (Май Приорити Мневники)
Октябрьское Поле
13 мин.
Строится

Скидки и спецпредложения от застройщиков

ЖК MYPRIORITY Мневники (Май Приорити Мневники) на карте

Выгодные предложения на новостройки

Отзывы о ЖК MYPRIORITY Мневники (Май Приорити Мневники)

Самый полезный отзыв
АО
20 января
Оценка:
Социальная инфраструктура
Планировки
Способы покупки
Внешний вид фасада
Двор, окружение
Недавно купил квартиру в Mypriority Мневники. Первое, что меня порадовало — это отличная инфраструктура. В шаговой доступности находятся магазины, аптеки и развлекательные заведения. В комплексе будут все условия для активного отдыха: уютные парки, спортивные площадки и зоны для детей. Квартиры просторные, с современными планировками и хорошей звукоизоляцией. На территории видеонаблюдение, круглосуточно работает охрана. В целом, доволен своим выбором!
Ответить
Полезный отзыв?
Самый новый отзыв
ИЮ
08 июля
Оценка:
Транспортная доступность
Двор, окружение
Расположение
Главным плюсом для меня является пешая доступность – всего 10 минут до метро Октябрьское поле. Объективно удобно, особенно учитывая московские пробки. С утра можно спокойно прогуляться, выпить кофе
Ответить
Полезный отзыв?
Добавьте отзыв, заполнив личные данные, или сначала войдите на сайт, тогда информация будет автоматически взята из личного профиля.
Оценка*