Рейтинг@Mail.ru
Переверните экран
Новостройки Квартиры Ипотека Новостройки Москвы Новостройки Подмосковья Новостройки Новой Москвы Готовые новостройки Новостройки на карте Акции от застройщиков Коммерческие помещения Продавцы и застройщики Панорамы новостроек Видеообзор новостроек Экспертиза новостроек Экология Москвы и Подмосковья Студии 1-комнатные 2-комнатные 3-комнатные Квартиры на карте Ипотечный калькулятор Семейная ипотека Военная ипотека Банки и программы Медиа Новости недвижимости Мнение эксперта Аналитика рынка Покупателю Экспертиза новостроек Эксперты и авторы О проекте Контакты Реклама на сайте Vk Youtube Telegram Дзен Машиноместа Апартаменты #траншевая ипотека #рассрочка IT-ипотека Квартиры со скидками до 40% Видео 360° новостроек Субсидированная застройщиком Rutube Поиск дома в Москве Программа реновации в Москве Новостройки премиум-класса Новостройки бизнес-класса Рассрочка Траншевая ипотека ГАЛС Дома и коттеджи Бизнес-центры Бизнес-центры в Москве Бизнес-центры рядом с метро Строящиеся бизнес-центры Бизнес-центры класса A Бизнес-центры класса B ЛСР
Данная квартира является лидером продаж среди однокомнатных квартир в ЖК «Малиново» по данным Росреестра
1-комн. квартира, 33.70 м2, 2 этаж
Срок сдачи 4 квартал 2026 года
4 600 050 
136 500 2
обновлено 5 декабря

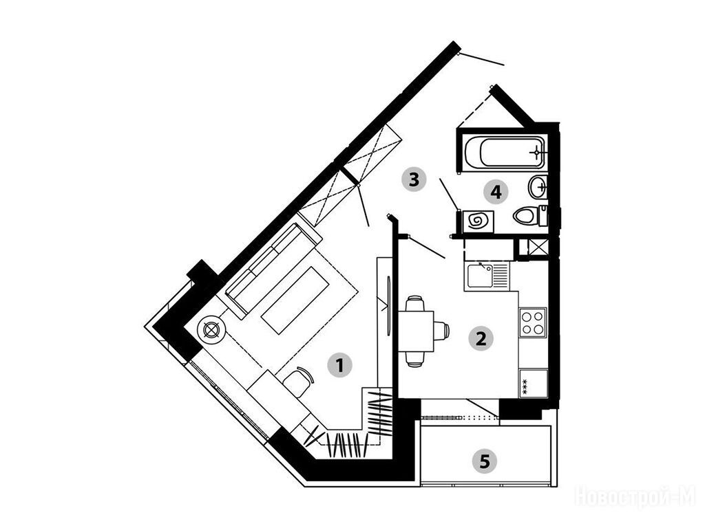
Описание 1-комн. квартиры

Новостройка
Застройщик
Срок ГК
4 квартал 2026 года
Стадия строительства
Общая площадь
33.70 м2
Жилая площадь
14.70 м2
Площадь кухни
9.20 м2
Этаж
2 / 12

Расположение 1-комн. квартиры

Метро
Ж/Д-станция
Дом
1
Адрес
мкр-н №2, корп. 1, секция 2

Способы покупки

Особенности

Продается однокомнатная квартира в новостройке ЖК «Малиново» по адресу Московская область, Одинцовский район, Звенигород, мкр-н №2, корп. 1. Общая площадь квартиры - 33.7 кв. м. Тип проекта, по которому построен дом — Монолитно-кирпичный, компания-застройщик — ГК «Основа». Стоимость квартиры — 4 600 050 руб. Способы оплаты можно уточнить у продавца. Срок сдачи — 4 квартал 2026. Более подробная информация по телефону.
Инфоцентр новостроек
Инфоцентр новостроек
+7 (499) 705-91-41
Время работы 9:00 — 21:00

Похожие квартиры в ЖК «Малиново»

6 этаж
из 12 4 квартал 2026
Московская область, Одинцовский район
Кунцевская
53 мин.
1
Корпус
нет данных
Отделка
3.00 м
Потолки
ЖК «Малиново»
4 879 760
СберБанк, Абсолют Банк, Альфа-Банк, ВТБ
6.00%
Ставка
20.10%
Первый взнос
от 29 257 /мес.
Все варианты
8 этаж
из 12 4 квартал 2026
Московская область, Одинцовский район
Кунцевская
53 мин.
1
Корпус
нет данных
Отделка
3.00 м
Потолки
ЖК «Малиново»
4 893 240
СберБанк, Абсолют Банк, Альфа-Банк, ВТБ
6.00%
Ставка
20.10%
Первый взнос
от 29 337 /мес.
Все варианты
Посмотреть все спецпредложения
1-комн. квартира 33,70 м2 4 893 240
Этаж 8/12
МО, ЖК «Малиново»
Кунцевская
53 мин.
Строится
1-комн. квартира 34,00 м2 4 960 600
Этаж 8/12
МО, ЖК «Малиново»
Кунцевская
53 мин.
Строится
1-комн. квартира 35,10 м2 4 906 980
Этаж 3/12
МО, ЖК «Малиново»
Кунцевская
53 мин.
Строится
1-комн. квартира 35,40 м2 4 938 300
Этаж 3/12
МО, ЖК «Малиново»
Кунцевская
53 мин.
Строится
Посмотреть 67 квартир в ЖК «Малиново»
2-комн. квартира 59,90 м2 8 080 510
Этаж 10/12
МО, ЖК «Малиново»
Кунцевская
53 мин.
Строится
2-комн. квартира 60,00 м2 8 064 000
Этаж 9/12
МО, ЖК «Малиново»
Кунцевская
53 мин.
Строится
2-комн. квартира 60,10 м2 8 107 490
Этаж 10/12
МО, ЖК «Малиново»
Кунцевская
53 мин.
Строится
2-комн. квартира 60,20 м2 8 120 980
Этаж 10/12
МО, ЖК «Малиново»
Кунцевская
53 мин.
Строится
Посмотреть 55 квартир в ЖК «Малиново»

Скидки и спецпредложения от застройщиков

ЖК «Малиново» на карте

Выгодные предложения на новостройки

Отзывы о ЖК «Малиново»

Самый полезный отзыв
П
01 июля 2019
Оценка:
Кажется, раньше этот объект назывался "Радуга"? взялись достроить? Тогда дело хорошее, конечно!
Ответить
Полезный отзыв?
Самый новый отзыв
А
26 ноября
Оценка:
Мы как раз искали квартиру в этом городе, мужа переводят по работе сюда. Мне здесь очень понравилось, мы когда приезжали сюда на неделю, успели пройтись по району, посмотреть. Район уже обжитый, все нужное для жизни рядом, и поликлиника, и магазины, и спорткомплекс.
Ответить
Полезный отзыв?
Добавьте отзыв, заполнив личные данные, или сначала войдите на сайт, тогда информация будет автоматически взята из личного профиля.
Оценка*