Рейтинг@Mail.ru
Переверните экран
Новостройки Квартиры Ипотека Новостройки Москвы Новостройки Подмосковья Новостройки Новой Москвы Готовые новостройки Новостройки на карте Акции от застройщиков Коммерческие помещения Продавцы и застройщики Панорамы новостроек Видеообзор новостроек Экспертиза новостроек Экология Москвы и Подмосковья Студии 1-комнатные 2-комнатные 3-комнатные Квартиры на карте Ипотечный калькулятор Семейная ипотека Военная ипотека Банки и программы Медиа Новости недвижимости Мнение эксперта Аналитика рынка Покупателю Экспертиза новостроек Эксперты и авторы О проекте Контакты Реклама на сайте Vk Youtube Telegram Дзен Машиноместа Апартаменты #траншевая ипотека #рассрочка ИТ-ипотека Квартиры со скидками до 40% Видео 360° новостроек Субсидированная застройщиком Rutube Поиск дома в Москве Программа реновации в Москве Новостройки премиум-класса Новостройки бизнес-класса Рассрочка Траншевая ипотека Дома и коттеджи Коттеджные поселки в Новой Москве Готовые коттеджные поселки Строящиеся коттеджные поселки Коттеджные поселки в лесу Коттеджные поселки у водоема Коттеджные поселки в ипотеку Бизнес-центры Коттеджи Ипотека со ставкой 0,1%
Данная квартира является лидером продаж среди однокомнатных квартир в ЖК «Артель» по данным Росреестра
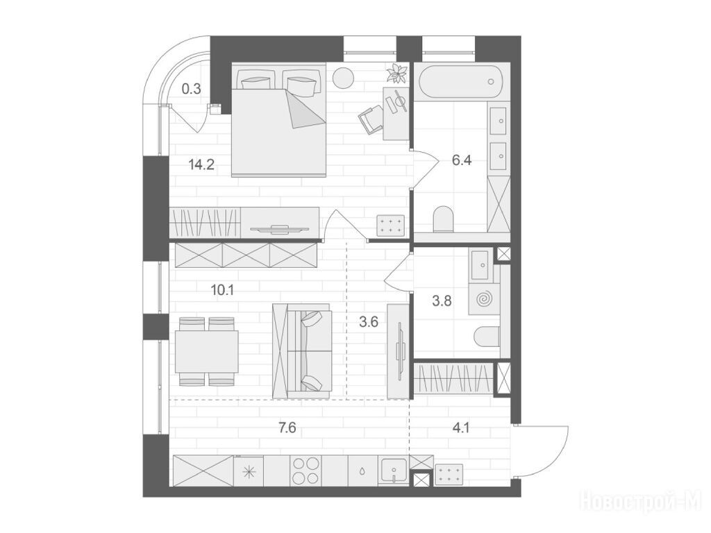
1-комн. квартира, 49.95 м2, 7 этаж
Срок сдачи 3 квартал 2026 года
39 453 076 
789 851 2
обновлено 14 мая

Описание 1-комн. квартиры

Новостройка
Срок ГК
3 квартал 2026 года
Стадия строительства
отделка фасада и внутренние работы
Общая площадь
49.95 м2
Жилая площадь
14.30 м2
Площадь кухни
21.30 м2
Этаж
7 / 12
Балкон
лоджия
Отделка
чистовая
Тип санузла
2
Вид из окна
на улицу

Расположение 1-комн. квартиры

Локация
Станция МЦД
Станция МЦК
Дом
1
Адрес
ул. Электрозаводская, вл. 60, корп. 1, секция 1

Особенности

Продается однокомнатная квартира в новостройке ЖК «Артель» по адресу Москва, ВАО, Преображенское, ул. Электрозаводская, вл. 60, корп. 1. Общая площадь квартиры - 49.95 кв. м. Тип проекта, по которому построен дом — Монолитно-кирпичный, компания-застройщик — Stenoy, СЗ Электрозаводская. Стоимость квартиры — 39 453 076 руб. Способы оплаты можно уточнить у продавца. Срок сдачи — 3 квартал 2026. Более подробная информация по телефону.
Инфоцентр новостроек
Инфоцентр новостроек
+7 (499) 705-91-41
Время работы 9:00 — 21:00

Похожие квартиры в ЖК «Артель»

3 этаж
из 12 3 квартал 2026
Москва, ВАО
Преображенская площадь
4 мин.
1
Корпус
чистовая
Отделка
3.25 м
Потолки
ЖК «Артель»
38 180 900
студия 24,90 м2 22 468 521
Этаж 9/12
Москва, ЖК «Артель»
Преображенская площадь
4 мин.
Строится
студия 29,80 м2 24 357 615
Этаж 2/12
Москва, ЖК «Артель»
Преображенская площадь
4 мин.
Строится
студия 30,00 м2 24 521 089
Этаж 2/12
Москва, ЖК «Артель»
Преображенская площадь
4 мин.
Строится
Посмотреть 13 квартир в ЖК «Артель»
1-комн. квартира 34,40 м2 25 235 202
Этаж 10/12
Москва, ЖК «Артель»
Преображенская площадь
4 мин.
Строится
1-комн. квартира 39,60 м2 31 322 826
Этаж 5/12
Москва, ЖК «Артель»
Преображенская площадь
4 мин.
Строится
1-комн. квартира 39,70 м2 31 141 561
Этаж 4/12
Москва, ЖК «Артель»
Преображенская площадь
4 мин.
Строится
1-комн. квартира 46,50 м2 39 899 289
Этаж 10/12
Москва, ЖК «Артель»
Преображенская площадь
4 мин.
Строится
Посмотреть 25 квартир в ЖК «Артель»
2-комн. квартира 49,65 м2 41 552 626
Этаж 9/12 лоджия
Москва, ЖК «Артель»
Преображенская площадь
4 мин.
Строится
2-комн. квартира 50,40 м2 37 936 538
Этаж 2/12
Москва, ЖК «Артель»
Преображенская площадь
4 мин.
Строится
2-комн. квартира 50,50 м2 40 867 895
Этаж 8/12
Москва, ЖК «Артель»
Преображенская площадь
4 мин.
Строится
2-комн. квартира 53,90 м2 41 168 066
Этаж 5/12 лоджия
Москва, ЖК «Артель»
Преображенская площадь
4 мин.
Строится
Посмотреть 41 квартира в ЖК «Артель»
3-комн. квартира 69,10 м2 64 155 471
Этаж 12/12 лоджия
Москва, ЖК «Артель»
Преображенская площадь
4 мин.
Строится
3-комн. квартира 69,20 м2 62 924 639
Этаж 11/12 лоджия
Москва, ЖК «Артель»
Преображенская площадь
4 мин.
Строится
3-комн. квартира 70,05 м2 63 697 557
Этаж 11/12 лоджия
Москва, ЖК «Артель»
Преображенская площадь
4 мин.
Строится
3-комн. квартира 74,15 м2 57 257 963
Этаж 12/12 лоджия
Москва, ЖК «Артель»
Преображенская площадь
4 мин.
Строится
Посмотреть 10 квартир в ЖК «Артель»

Скидки и спецпредложения от застройщиков

ЖК «Артель» на карте

Выгодные предложения на новостройки

Отзывы о ЖК «Артель»

Самый полезный отзыв
ЕТ
20 ноября 2024
Оценка:
Достоинства
Транспортная доступность
Планировки
Способы покупки
Внешний вид фасада
Двор, окружение
Расположение
Неплохой проект, хорошая архитектура. Планировки квартир формата евро, очень интересные. Общее количество квартир 160, из них порядка 30-студии, что не совсем хорошо для премиум-класса, это лично мое мнение. Подъезды и выезды ЖК будут затруднены в связи с узкими улицам. Жильё здесь стоит приобретать в основном для собственного жилья, для инвестиций, я думаю, что не очень подходит
Ответить
Самый новый отзыв
Д
12 ноября 2025
Оценка:
Достоинства
Транспортная доступность
Планировки
Способы покупки
Расположение
Есть свои плюсы и минусы, как и везде. Как по мне - хорошее место, планировки хорошие, цена устраивает
Ответить

Оставить отзыв

Добавьте отзыв, заполнив личные данные, или сначала войдите на сайт, тогда информация будет автоматически взята из личного профиля.
Оценка*