Рейтинг@Mail.ru
Переверните экран
Новостройки Квартиры Ипотека Новостройки Москвы Новостройки Подмосковья Новостройки Новой Москвы Готовые новостройки Новостройки на карте Акции от застройщиков Коммерческие помещения Продавцы и застройщики Панорамы новостроек Видеообзор новостроек Экспертиза новостроек Экология Москвы и Подмосковья Студии 1-комнатные 2-комнатные 3-комнатные Квартиры на карте Ипотечный калькулятор Семейная ипотека Военная ипотека Банки и программы Медиа Новости недвижимости Мнение эксперта Аналитика рынка Покупателю Экспертиза новостроек Эксперты и авторы О проекте Контакты Реклама на сайте Vk Youtube Telegram Дзен Машиноместа Апартаменты #траншевая ипотека #рассрочка ИТ-ипотека Квартиры со скидками до 40% Видео 360° новостроек Субсидированная застройщиком Rutube Поиск дома в Москве Программа реновации в Москве Новостройки премиум-класса Новостройки бизнес-класса Рассрочка Траншевая ипотека Дома и коттеджи Коттеджные поселки в Новой Москве Готовые коттеджные поселки Строящиеся коттеджные поселки Коттеджные поселки в лесу Коттеджные поселки у водоема Коттеджные поселки в ипотеку Бизнес-центры Коттеджи Ипотека со ставкой 0,1%
1-комн. квартира, 57.60 м2, 2 этаж
Сдан
14 889 600 
258 500 2
обновлено 13 мая

Описание 1-комн. квартиры

Застройщик
Срок ГК
Дом сдан
Стадия строительства
выдача ключей + заселение
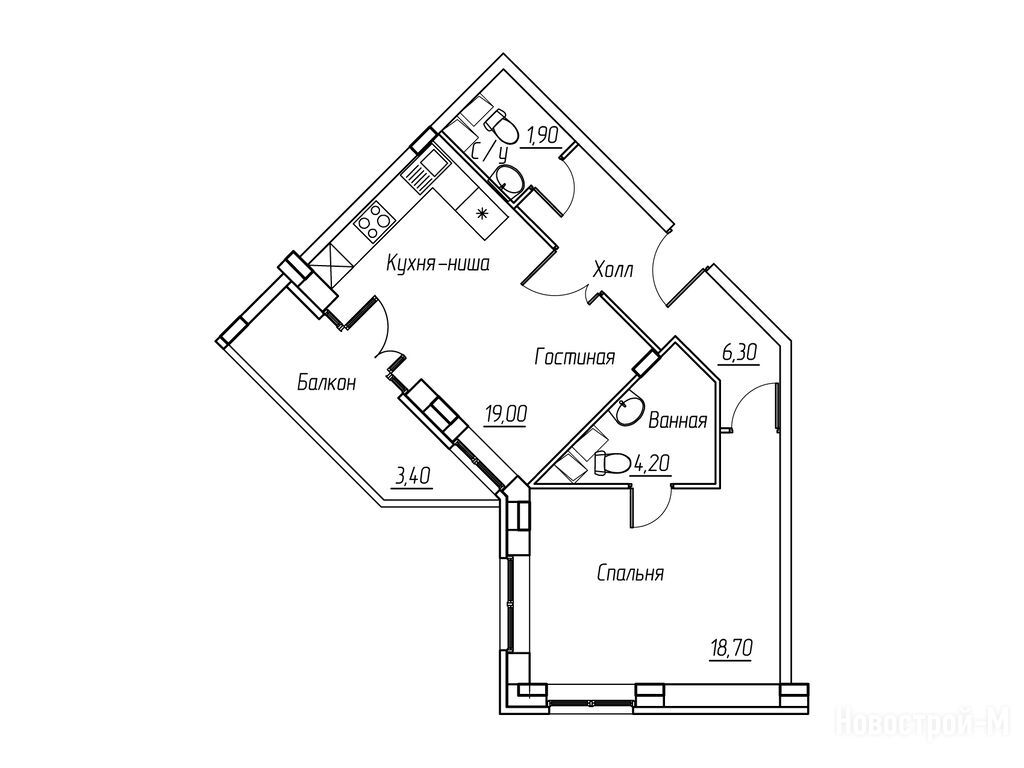
Общая площадь
57.60 м2
Жилая площадь
18.70 м2
Площадь кухни
19.00 м2
Этаж
2 / 3

Расположение 1-комн. квартиры

Метро
Станция МЦД
Дом
49
Адрес
ул. Центральная, д. 49, секция 1

Особенности

Продается однокомнатная квартира в новостройке ЖК «Ангелово-Резиденц» по адресу Московская область, Красногорск городской округ, Отрадненское С/П, Ангелово с., ул. Центральная, д. 49. Общая площадь квартиры - 57.6 кв. м. Тип проекта, по которому построен дом — Монолитно-кирпичный, компания-застройщик — Росинка-Сервис. Стоимость квартиры — 14 889 600 руб. Способы оплаты можно уточнить у продавца. Более подробная информация по телефону.
Инфоцентр новостроек
Инфоцентр новостроек
Время работы 9:00 — 21:00
Выбирайте квартиру в ЖК «Ангелово-Резиденц» по ценам от застройщика
Этаж 1/3
МО, ЖК «Ангелово-Резиденц»
Пятницкое шоссе
30 мин.
Сдан
Этаж 1/3
МО, ЖК «Ангелово-Резиденц»
Пятницкое шоссе
30 мин.
Сдан
Этаж 3/3
МО, ЖК «Ангелово-Резиденц»
Пятницкое шоссе
30 мин.
Сдан
Этаж 2/3
МО, ЖК «Ангелово-Резиденц»
Пятницкое шоссе
30 мин.
Сдан
Посмотреть 38 квартир в ЖК «Ангелово-Резиденц»
Этаж 2/3
МО, ЖК «Ангелово-Резиденц»
Пятницкое шоссе
30 мин.
Сдан
Этаж 2/3
МО, ЖК «Ангелово-Резиденц»
Пятницкое шоссе
30 мин.
Сдан
Этаж 1/3
МО, ЖК «Ангелово-Резиденц»
Пятницкое шоссе
30 мин.
Сдан
Этаж 3/3
МО, ЖК «Ангелово-Резиденц»
Пятницкое шоссе
30 мин.
Сдан
Посмотреть 40 квартир в ЖК «Ангелово-Резиденц»
Этаж 3/3
МО, ЖК «Ангелово-Резиденц»
Пятницкое шоссе
30 мин.
Сдан
Этаж 2/3
МО, ЖК «Ангелово-Резиденц»
Пятницкое шоссе
30 мин.
Сдан
Этаж 3/3
МО, ЖК «Ангелово-Резиденц»
Пятницкое шоссе
30 мин.
Сдан
Этаж 3/3
МО, ЖК «Ангелово-Резиденц»
Пятницкое шоссе
30 мин.
Сдан
Посмотреть 94 квартиры в ЖК «Ангелово-Резиденц»
Этаж 2/4
МО, ЖК «Ангелово-Резиденц»
Пятницкое шоссе
30 мин.
Сдан
Этаж 2/3
МО, ЖК «Ангелово-Резиденц»
Пятницкое шоссе
30 мин.
Сдан
Этаж 3/3
МО, ЖК «Ангелово-Резиденц»
Пятницкое шоссе
30 мин.
Сдан
Этаж 2/3
МО, ЖК «Ангелово-Резиденц»
Пятницкое шоссе
30 мин.
Сдан
Посмотреть 15 квартир в ЖК «Ангелово-Резиденц»
Этаж 2/4
МО, ЖК «Ангелово-Резиденц»
Пятницкое шоссе
30 мин.
Сдан
Этаж 1/4
МО, ЖК «Ангелово-Резиденц»
Пятницкое шоссе
30 мин.
Сдан
5-комн. квартира 151,50 м2 38 430 700
Этаж 1/3
МО, ЖК «Ангелово-Резиденц»
Пятницкое шоссе
30 мин.
Сдан
5-комн. квартира 151,90 м2 39 996 000
Этаж 1/3
МО, ЖК «Ангелово-Резиденц»
Пятницкое шоссе
30 мин.
Сдан
Посмотреть 10 квартир в ЖК «Ангелово-Резиденц»

Скидки и спецпредложения от застройщиков

ЖК «Ангелово-Резиденц» на карте

Выгодные предложения на новостройки

Отзывы о ЖК «Ангелово-Резиденц»

Самый полезный отзыв
М
24 июля 2023
Оценка:
Достоинства
Транспортная доступность
Экология
Готовность
Способы покупки
Недостатки
Скорость строительства
Нормальное место. Близко от метро. Трехэтажные дома в такой близости от метро - редкость в МО. Продаю здесь кладовку - дом 42, кладовая площадью 3,8 кв.м.
Ответить
Самый новый отзыв
ЕК
15 декабря 2025
Оценка:
Достоинства
Планировки
Готовность
Способы покупки
Внешний вид фасада
Проект необычный: трёхэтажные дома и при этом, судя по отзывам, довольно близко к метро — для Подмосковья редкое сочетание. Мне это нравится: меньше этажей — обычно тише и спокойнее. Из минусов, которые отмечают, — не всем подходит формат «как посёлок», и часть вопросов упирается в дороги/проезды. Если хочется малоэтажности, но не уезжать далеко, выглядит здраво.
Ответить

Оставить отзыв

Добавьте отзыв, заполнив личные данные, или сначала войдите на сайт, тогда информация будет автоматически взята из личного профиля.
Оценка*