Рейтинг@Mail.ru
Переверните экран
Новостройки Квартиры Ипотека Новостройки Москвы Новостройки Подмосковья Новостройки Новой Москвы Готовые новостройки Новостройки на карте Акции от застройщиков Коммерческие помещения Продавцы и застройщики Панорамы новостроек Видеообзор новостроек Экспертиза новостроек Экология Москвы и Подмосковья Студии 1-комнатные 2-комнатные 3-комнатные Квартиры на карте Ипотечный калькулятор Семейная ипотека Военная ипотека Банки и программы Медиа Новости недвижимости Мнение эксперта Аналитика рынка Покупателю Экспертиза новостроек Эксперты и авторы О проекте Контакты Реклама на сайте Vk Youtube Telegram Дзен Машиноместа Апартаменты #траншевая ипотека #рассрочка ИТ-ипотека Квартиры со скидками до 40% Видео 360° новостроек Субсидированная застройщиком Rutube Поиск дома в Москве Программа реновации в Москве Новостройки премиум-класса Новостройки бизнес-класса Рассрочка Траншевая ипотека Дома и коттеджи Бизнес-центры Бизнес-центры в Москве Бизнес-центры рядом с метро Строящиеся бизнес-центры Бизнес-центры класса A Бизнес-центры класса B Ипотека со ставкой 0,1%
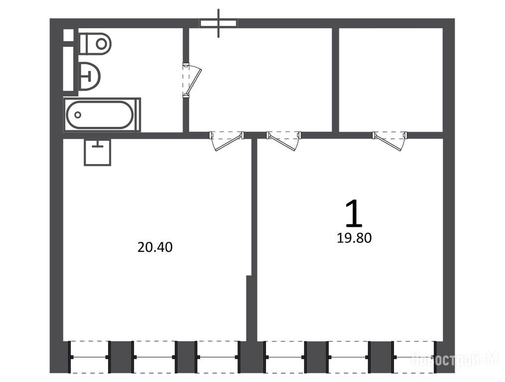
1-комн. квартира, 60.30 м2, 7 этаж
Сдан
27 651 644 
458 568 2
обновлено 29 марта

Описание 1-комн. квартиры

Застройщик
Срок ГК
Дом сдан
Стадия строительства
выдача ключей + заселение
Тип проекта
Общая площадь
60.30 м2
Этаж
7 / 15

Расположение 1-комн. квартиры

Локация
Дом
2
Адрес
Светланова ул., д. 11, к. 2

Особенности

Продается однокомнатная квартира в новостройке Жилой дом «Светланова ул., д. 11, к. 2» по адресу Москва, ЗАО, Раменки, Светланова ул., д. 11, к. 2. Общая площадь квартиры - 60.3 кв. м. Тип проекта, по которому построен дом — Монолит, компания-застройщик — Фонд реновации. Стоимость квартиры — 27 651 644 руб. Способы оплаты можно уточнить у продавца. Более подробная информация по телефону.
Инфоцентр новостроек
Инфоцентр новостроек
Время работы 9:00 — 21:00
Выбирайте квартиру в Жилой дом «Светланова ул., д. 11, к. 2» по ценам от застройщика
Жилой дом «Светланова ул., д. 11, к. 2» Жилой дом «Светланова ул., д. 11, к. 2»|Новострой-М
Этаж 13/15
Москва, Жилой дом «Светланова ул., д. 11, к. 2»
Раменки
14 мин.
Сдан
Этаж 6/15
Москва, Жилой дом «Светланова ул., д. 11, к. 2»
Раменки
14 мин.
Сдан
Этаж 10/15
Москва, Жилой дом «Светланова ул., д. 11, к. 2»
Раменки
14 мин.
Сдан
Этаж 6/15
Москва, Жилой дом «Светланова ул., д. 11, к. 2»
Раменки
14 мин.
Сдан
Посмотреть 18 квартир в Жилом доме «Светланова ул., д. 11, к. 2»
Этаж 7/15
Москва, Жилой дом «Светланова ул., д. 11, к. 2»
Раменки
14 мин.
Сдан
Этаж 8/15
Москва, Жилой дом «Светланова ул., д. 11, к. 2»
Раменки
14 мин.
Сдан
Этаж 6/15
Москва, Жилой дом «Светланова ул., д. 11, к. 2»
Раменки
14 мин.
Сдан
Этаж 12/15
Москва, Жилой дом «Светланова ул., д. 11, к. 2»
Раменки
14 мин.
Сдан
Посмотреть 7 квартир в Жилом доме «Светланова ул., д. 11, к. 2»

Скидки и спецпредложения от застройщиков

Жилой дом «Светланова ул., д. 11, к. 2» на карте

Выгодные предложения на новостройки

Отзывы о Жилом доме «Светланова ул., д. 11, к. 2»

Оставить отзыв

Добавьте отзыв, заполнив личные данные, или сначала войдите на сайт, тогда информация будет автоматически взята из личного профиля.
Оценка*