Рейтинг@Mail.ru
Переверните экран
Новостройки Квартиры Ипотека Новостройки Москвы Новостройки Подмосковья Новостройки Новой Москвы Готовые новостройки Новостройки на карте Акции от застройщиков Коммерческие помещения Продавцы и застройщики Панорамы новостроек Видеообзор новостроек Экспертиза новостроек Экология Москвы и Подмосковья Студии 1-комнатные 2-комнатные 3-комнатные Квартиры на карте Ипотечный калькулятор Семейная ипотека Военная ипотека Банки и программы Медиа Новости недвижимости Мнение эксперта Аналитика рынка Покупателю Экспертиза новостроек Эксперты и авторы О проекте Контакты Реклама на сайте Vk Youtube Telegram Дзен Машиноместа Апартаменты #траншевая ипотека #рассрочка IT-ипотека Квартиры со скидками до 35% Видео 360° новостроек Субсидированная застройщиком Rutube Поиск дома в Москве Программа реновации в Москве Новостройки премиум-класса Новостройки бизнес-класса Рассрочка Траншевая ипотека Дома и коттеджи Бизнес-центры Бизнес-центры в Москве Бизнес-центры рядом с метро Строящиеся бизнес-центры Бизнес-центры класса A Бизнес-центры класса B
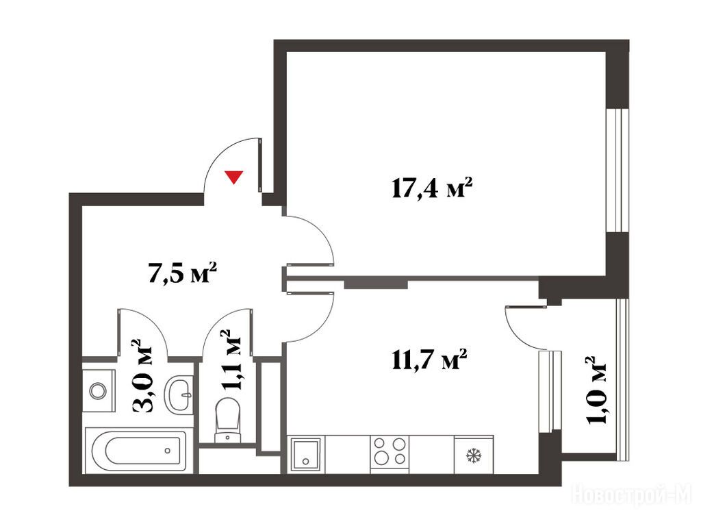
1-комн. квартира, 41.70 м2, 2 этаж
Сдан
11 147 208 
15 924 583
267 319 2
обновлено 5 февраля

Описание 1-комн. квартиры

Застройщик
Срок ГК
Дом сдан
Стадия строительства
выдача ключей + заселение
Общая площадь
41.70 м2
Жилая площадь
17.40 м2
Площадь кухни
11.70 м2
Этаж
2 / 6
Отделка
нет
Грузовой лифт
есть

Расположение 1-комн. квартиры

Метро
Станция МЦД
Дом
3
Адрес
ул. Новая Московская, д. 49, корп. 3, секция 6

Способы покупки

Особенности

Продается однокомнатная квартира в новостройке Миниполис «Восемь Кленов» по адресу Московская область, Красногорск городской округ, Красногорск, Опалиха, ул. Новая Московская, д. 49, корп. 3. Общая площадь квартиры - 41.7 кв. м. Тип проекта, по которому построен дом — Монолит, компания-застройщик — СИТИ21. Стоимость квартиры — 11 147 208 руб. Способы оплаты можно уточнить у продавца. Более подробная информация по телефону.
Инфоцентр новостроек
Инфоцентр новостроек
+7 (499) 705-91-41
Время работы 9:00 — 21:00

Похожие квартиры в Миниполисе «Восемь Кленов»

3 этаж
из 6 Дом сдан
Московская область, Красногорск
Опалиха
13 мин.
3
Корпус
нет
Отделка
3.00 м
Потолки
Миниполис «Восемь Кленов»
16 004 700
Уралсиб, Банк Санкт-Петербург, СберБанк, ВТБ, Металлинвестбанк, ДОМ.РФ, Московский Кредитный Банк, Совкомбанк, МТС Банк
18.79%
Ставка
20.00%
Первый взнос
от 251 543 /мес.
Все варианты
3 этаж
из 6 Дом сдан
Московская область, Красногорск
Опалиха
13 мин.
3
Корпус
нет
Отделка
3.00 м
Потолки
Миниполис «Восемь Кленов»
16 004 700
Уралсиб, Банк Санкт-Петербург, СберБанк, ВТБ, Металлинвестбанк, ДОМ.РФ, Московский Кредитный Банк, Совкомбанк, МТС Банк
18.79%
Ставка
20.00%
Первый взнос
от 251 543 /мес.
Все варианты
5 этаж
из 6 Дом сдан
Московская область, Красногорск
Опалиха
13 мин.
3
Корпус
нет
Отделка
3.00 м
Потолки
Миниполис «Восемь Кленов»
16 164 637
Уралсиб, Банк Санкт-Петербург, СберБанк, ВТБ, Металлинвестбанк, ДОМ.РФ, Московский Кредитный Банк, Совкомбанк, МТС Банк
18.79%
Ставка
20.00%
Первый взнос
от 254 057 /мес.
Все варианты
Посмотреть все спецпредложения
1-комн. квартира 39,60 м2 16 216 042
Этаж 6/6
МО, Миниполис «Восемь Кленов»
Опалиха
13 мин.
Сдан
1-комн. квартира 39,80 м2 16 055 963
Этаж 2/6
МО, Миниполис «Восемь Кленов»
Опалиха
13 мин.
Сдан
1-комн. квартира 39,90 м2 16 079 808
Этаж 1/6
МО, Миниполис «Восемь Кленов»
Опалиха
13 мин.
Сдан
1-комн. квартира 40,90 м2 15 542 965
Этаж 4/6
МО, Миниполис «Восемь Кленов»
Опалиха
13 мин.
Сдан
Посмотреть 48 квартир в Миниполисе «Восемь Кленов»
2-комн. квартира 47,80 м2 17 666 642
Этаж 2/6
МО, Миниполис «Восемь Кленов»
Опалиха
13 мин.
Сдан
2-комн. квартира 48,40 м2 17 907 612
Этаж 5/6
МО, Миниполис «Восемь Кленов»
Опалиха
13 мин.
Сдан
2-комн. квартира 49,70 м2 18 387 744
Этаж 3/6
МО, Миниполис «Восемь Кленов»
Опалиха
13 мин.
Сдан
2-комн. квартира 49,80 м2 18 424 742
Этаж 4/6
МО, Миниполис «Восемь Кленов»
Опалиха
13 мин.
Сдан
Посмотреть 56 квартир в Миниполисе «Восемь Кленов»
3-комн. квартира 70,20 м2 22 708 688
Этаж 3/6
МО, Миниполис «Восемь Кленов»
Опалиха
13 мин.
Сдан
3-комн. квартира 70,40 м2 23 001 142
Этаж 5/6
МО, Миниполис «Восемь Кленов»
Опалиха
13 мин.
Сдан
3-комн. квартира 71,50 м2 22 534 165
Этаж 2/6
МО, Миниполис «Восемь Кленов»
Опалиха
13 мин.
Сдан
3-комн. квартира 71,60 м2 22 116 652
Этаж 2/6
МО, Миниполис «Восемь Кленов»
Опалиха
13 мин.
Сдан
Посмотреть 17 квартир в Миниполисе «Восемь Кленов»
4-комн. квартира 108,10 м2 34 898 219
Этаж 1/6
МО, Миниполис «Восемь Кленов»
Опалиха
13 мин.
Сдан
4-комн. квартира 108,20 м2 34 930 502
Этаж 1/6
МО, Миниполис «Восемь Кленов»
Опалиха
13 мин.
Сдан
5-комн. квартира 119,30 м2 36 616 125
Этаж 2/6
МО, Миниполис «Восемь Кленов»
Опалиха
13 мин.
Сдан

Скидки и спецпредложения от застройщиков

Миниполис «Восемь Кленов» на карте

Выгодные предложения на новостройки

Отзывы о Миниполисе «Восемь Кленов»

Самый полезный отзыв
А
20 декабря 2021
Оценка:
ЖК для данной местности лучшее решение, невысокие дома, парк и тихая обстановка. мцд рядышком, что решает большую проблему области с тем, чтобы добраться до Москвы.
Ответить
Полезный отзыв?
Самый новый отзыв
МЖ
17 ноября 2025
Оценка:
Круто, что дом уже сдан, можно прогуляться по территории, посмотреть квартиры в миниполисе. Мы успели как раз до сентября (до повышения цен) купить квартиру
Ответить
Полезный отзыв?
Добавьте отзыв, заполнив личные данные, или сначала войдите на сайт, тогда информация будет автоматически взята из личного профиля.
Оценка*