Рейтинг@Mail.ru
Переверните экран
Новостройки Квартиры Ипотека Новостройки Москвы Новостройки Подмосковья Новостройки Новой Москвы Готовые новостройки Новостройки на карте Акции от застройщиков Коммерческие помещения Продавцы и застройщики Панорамы новостроек Видеообзор новостроек Экспертиза новостроек Экология Москвы и Подмосковья Студии 1-комнатные 2-комнатные 3-комнатные Квартиры на карте Ипотечный калькулятор Семейная ипотека Военная ипотека Банки и программы Медиа Новости недвижимости Мнение эксперта Аналитика рынка Покупателю Экспертиза новостроек Эксперты и авторы О проекте Контакты Реклама на сайте Vk Youtube Telegram Дзен Машиноместа Апартаменты #траншевая ипотека #рассрочка IT-ипотека Квартиры со скидками до 40% Видео 360° новостроек Субсидированная застройщиком Rutube Поиск дома в Москве Программа реновации в Москве Новостройки премиум-класса Новостройки бизнес-класса Рассрочка Траншевая ипотека ГАЛС Дома и коттеджи Бизнес-центры Бизнес-центры в Москве Бизнес-центры рядом с метро Строящиеся бизнес-центры Бизнес-центры класса A Бизнес-центры класса B ЛСР
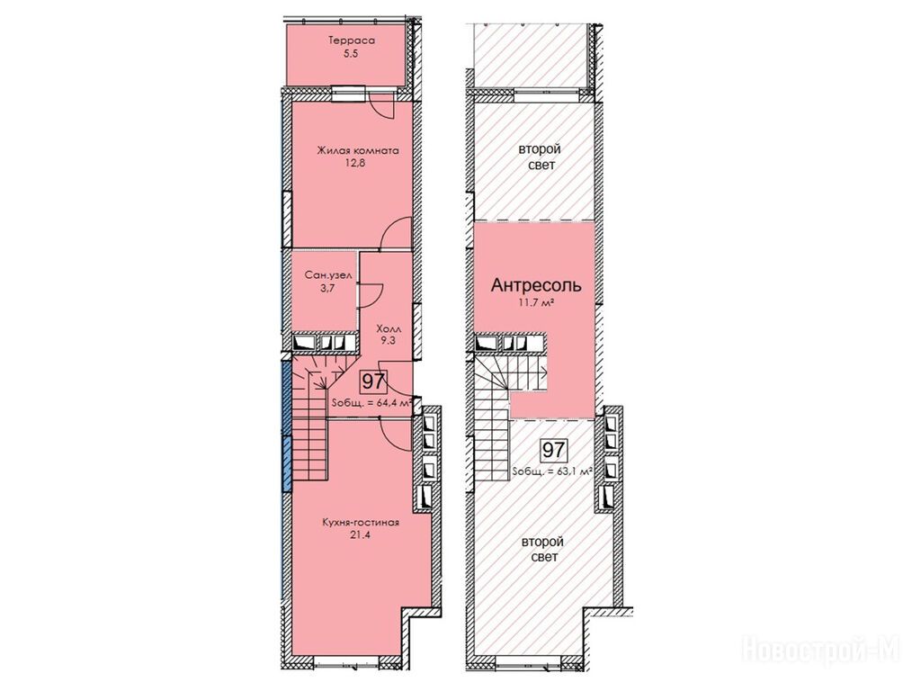
5-комн. квартира, 64.40 м2, 10 этаж
Срок сдачи 1 квартал 2026 года
24 349 640 
378 100 2
обновлено 5 декабря

Описание 5-комн. квартиры

Срок ГК
1 квартал 2026 года
Стадия строительства
реконструкция
Тип проекта
Общая площадь
64.40 м2
Этаж
10 / 10

Расположение 5-комн. квартиры

Локация
Станция МЦД
Курская
37 мин.
Станция МЦК
Дом
22к.1
Адрес
Измайловский пр-д, д. 22, корп. 1, секция 1

Способы покупки

Особенности

Продается многокомнатная квартира в новостройке ЖК «Измайловский проезд 22-1» по адресу Москва, ВАО, Измайлово, Измайловский пр-д, д. 22, корп. 1. Общая площадь квартиры - 64.4 кв. м. Тип проекта, по которому построен дом — Кирпичный, компания-застройщик — ЖСК «Измайловский проезд 22-1». Стоимость квартиры — 24 349 640 руб. Способы оплаты можно уточнить у продавца. Срок сдачи — 1 квартал 2026. Более подробная информация по телефону.
Инфоцентр новостроек
Инфоцентр новостроек
Время работы 9:00 — 21:00
Выбирайте квартиру в ЖК «Измайловский проезд 22-1» по ценам от застройщика
ЖК «Измайловский проезд 22-1» ЖК «Измайловский проезд 22-1»|Новострой-М
Посмотреть все спецпредложения
3-комн. квартира 71,20 м2 20 847 360
Этаж 8/10
Москва, ЖК «Измайловский проезд 22-1»
Измайловская
20 мин.
Строится
3-комн. квартира 81,00 м2 21 392 100
Этаж 7/10
Москва, ЖК «Измайловский проезд 22-1»
Измайловская
20 мин.
Строится
3-комн. квартира 95,80 м2 26 646 770
Этаж 7/10
Москва, ЖК «Измайловский проезд 22-1»
Измайловская
20 мин.
Строится
5-комн. квартира 68,20 м2 25 397 680
Этаж 10/10
Москва, ЖК «Измайловский проезд 22-1»
Измайловская
20 мин.
Строится
5-комн. квартира 117,60 м2 42 447 720
Этаж 10/10
Москва, ЖК «Измайловский проезд 22-1»
Измайловская
20 мин.
Строится

Скидки и спецпредложения от застройщиков

ЖК «Измайловский проезд 22-1» на карте

Выгодные предложения на новостройки

Отзывы о ЖК «Измайловский проезд 22-1»

Самый полезный отзыв
А
14 августа 2024
Оценка:
Транспортная доступность
Экология
Социальная инфраструктура
Планировки
Внешний вид фасада
Двор, окружение
Расположение
Скорость строительства
Подземный паркинг
Купил здесь квартиру! Уютное место - деревья, храм. Трафик низкий- одностороннее движение, бесплатная городская парковка вдоль дороги + сейчас будут обустраивать большую бесплатную парковку примерно на 50 мест. Всегда есть, где припарковаться. Собственный архитектурный облик. Свободные планировки. Потолки 340 см (у меня на 9-м этаже). Не человейник - всего 99 квартир. В строительстве использованы качественные материалы - блоки, окна - лучше, чем делают по реновации или ПИК. Минус по сути только один - темпы работ ниже, чем у других строительных организаций. Стройка постоянно движется, но хотелось бы скорее, конечно.
Ответить
Полезный отзыв?
Самый новый отзыв
ТГ
18 сентября
Оценка:
Ложная информация ЖК «Измайловский проезд 22-1» квартир Нет по этим ценам
Ответить
Полезный отзыв?
Добавьте отзыв, заполнив личные данные, или сначала войдите на сайт, тогда информация будет автоматически взята из личного профиля.
Оценка*