Рейтинг@Mail.ru
Переверните экран
Новостройки Квартиры Ипотека Новостройки Москвы Новостройки Подмосковья Новостройки Новой Москвы Готовые новостройки Новостройки на карте Акции от застройщиков Коммерческие помещения Продавцы и застройщики Панорамы новостроек Видеообзор новостроек Экспертиза новостроек Экология Москвы и Подмосковья Студии 1-комнатные 2-комнатные 3-комнатные Квартиры на карте Ипотечный калькулятор Семейная ипотека Военная ипотека Банки и программы Медиа Новости недвижимости Мнение эксперта Аналитика рынка Покупателю Экспертиза новостроек Эксперты и авторы О проекте Контакты Реклама на сайте Vk Youtube Telegram Дзен Машиноместа Апартаменты #траншевая ипотека #рассрочка IT-ипотека Квартиры со скидками до 40% Видео 360° новостроек Субсидированная застройщиком Rutube Поиск дома в Москве Программа реновации в Москве Новостройки премиум-класса Новостройки бизнес-класса Рассрочка Траншевая ипотека ГАЛС Дома и коттеджи Бизнес-центры Бизнес-центры в Москве Бизнес-центры рядом с метро Строящиеся бизнес-центры Бизнес-центры класса A Бизнес-центры класса B ЛСР
2-комн. квартира, 77.40 м2, 5 этаж
Срок сдачи 3 квартал 2029 года
52 632 000 
680 000 2
обновлено 5 декабря

Описание 2-комн. квартиры

Срок ГК
3 квартал 2029 года
Стадия строительства
монтаж нижних этажей
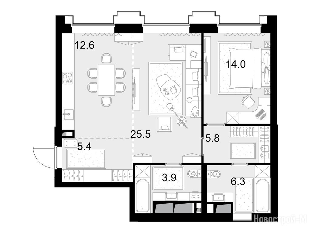
Общая площадь
77.40 м2
Жилая площадь
14.00 м2
Площадь кухни
38.10 м2
Этаж
5 / 34

Расположение 2-комн. квартиры

Локация
Станция МЦК
Зорге
29 мин.
Дом
1
Адрес
улица Демьяна Бедного, вл. 24, секция 2

Способы покупки

Особенности

Продается двухкомнатная квартира в новостройке ЖК «Высотка на Жукова» по адресу Москва, СЗАО, Хорошево-Мневники, улица Демьяна Бедного, вл. 24. Общая площадь квартиры - 77.4 кв. м. Тип проекта, по которому построен дом — Монолитно-каркасный, компания-застройщик — Концерн «КРОСТ», ООО СЗ ПРОГРЕСС. Стоимость квартиры — 52 632 000 руб. Способы оплаты можно уточнить у продавца. Срок сдачи — 3 квартал 2029. Более подробная информация по телефону.
Инфоцентр новостроек
Инфоцентр новостроек
+7 (499) 705-91-41
Время работы 9:00 — 21:00
Посмотреть все спецпредложения
Этаж 20/34
Москва, ЖК «Высотка на Жукова»
Народное ополчение
16 мин.
Строится
Этаж 20/34
Москва, ЖК «Высотка на Жукова»
Народное ополчение
16 мин.
Строится
1-комн. квартира 44,20 м2 36 376 600
Этаж 16/34
Москва, ЖК «Высотка на Жукова»
Народное ополчение
16 мин.
Строится
Этаж 20/34
Москва, ЖК «Высотка на Жукова»
Народное ополчение
16 мин.
Строится
Посмотреть 20 квартир в ЖК «Высотка на Жукова»
2-комн. квартира 77,20 м2 52 496 000
Этаж 5/34
Москва, ЖК «Высотка на Жукова»
Народное ополчение
16 мин.
Строится
Этаж 20/34
Москва, ЖК «Высотка на Жукова»
Народное ополчение
16 мин.
Строится
2-комн. квартира 77,50 м2 56 110 000
Этаж 16/34
Москва, ЖК «Высотка на Жукова»
Народное ополчение
16 мин.
Строится
Этаж 20/34
Москва, ЖК «Высотка на Жукова»
Народное ополчение
16 мин.
Строится
Посмотреть 24 квартиры в ЖК «Высотка на Жукова»
3-комн. квартира 79,90 м2 54 811 400
Этаж 5/23
Москва, ЖК «Высотка на Жукова»
Народное ополчение
16 мин.
Строится
3-комн. квартира 80,80 м2 59 711 200
Этаж 18/23
Москва, ЖК «Высотка на Жукова»
Народное ополчение
16 мин.
Строится
Посмотреть 6 квартир в ЖК «Высотка на Жукова»

Скидки и спецпредложения от застройщиков

ЖК «Высотка на Жукова» на карте

Выгодные предложения на новостройки

Отзывы о ЖК «Высотка на Жукова»

Самый полезный отзыв
ЖМ
06 декабря 2024
Оценка:
Ну наконец-то продажи! С мужем позавчера ездили, оформили БЕСПРОЦЕНТНУЮ рассрочку на полтора года. Это ли не чудо? Хорошево-Мневники - это наш район, всю жизнь здесь живем и наконец-то будет свое собственное гнездышко! Настоящие подарки под Новый год!
Ответить
Полезный отзыв?
Самый новый отзыв
А
17 сентября
Оценка:
Планирую переехать в Москву из другого города и ищу что-то современное, безопасное и с хорошей инфраструктурой. Я не москвич, так что деталей города не знаю, в районах разбираюсь условно. Но в центре мне и к вузу ближе и к потенциальной работе тоже. «Высотку на Жукова» предложили родители, понравилось конечно, что это масштабный и современный проект, а не сталинка просто. Заявлен закрытый двор, консьерж, свои паркинг, инфраструктура вся рядом. Выглядит интресно, конечно, но пока только рассматриваю, так как переезжать через полгода, а к тому моменту ещё не достроят. Ну, надеюсь, к моменту заселения здесь будет настоящая городская среда, а не просто бетон, а пока просто слежу за ходом строительства.
Показать все комментарии
Ответить
Полезный отзыв?
Добавьте отзыв, заполнив личные данные, или сначала войдите на сайт, тогда информация будет автоматически взята из личного профиля.
Оценка*