Рейтинг@Mail.ru
Переверните экран
Новостройки Квартиры Ипотека Новостройки Москвы Новостройки Подмосковья Новостройки Новой Москвы Готовые новостройки Новостройки на карте Акции от застройщиков Коммерческие помещения Продавцы и застройщики Панорамы новостроек Видеообзор новостроек Экспертиза новостроек Экология Москвы и Подмосковья Студии 1-комнатные 2-комнатные 3-комнатные Квартиры на карте Ипотечный калькулятор Семейная ипотека Военная ипотека Банки и программы Медиа Новости недвижимости Мнение эксперта Аналитика рынка Покупателю Экспертиза новостроек Эксперты и авторы О проекте Контакты Реклама на сайте Vk Youtube Telegram Дзен Машиноместа Апартаменты #траншевая ипотека #рассрочка IT-ипотека Квартиры со скидками до 35% Видео 360° новостроек Субсидированная застройщиком Rutube Поиск дома в Москве Программа реновации в Москве Новостройки премиум-класса Новостройки бизнес-класса Рассрочка Траншевая ипотека Дома и коттеджи Бизнес-центры Бизнес-центры в Москве Бизнес-центры рядом с метро Строящиеся бизнес-центры Бизнес-центры класса A Бизнес-центры класса B
Данная квартира является лидером продаж среди двухкомнатных квартир в ЖК Veer (Веер) по данным Росреестра
2-комн. квартира, 47.80 м2, 24 этаж
Срок сдачи 3 квартал 2028 года
26 937 690 
31 691 400
563 550 2
обновлено 5 февраля

Описание 2-комн. квартиры

Новостройка
Срок ГК
3 квартал 2028 года
Стадия строительства
монтаж средних этажей
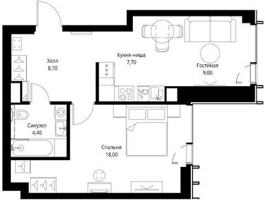
Общая площадь
47.80 м2
Жилая площадь
19.70 м2
Площадь кухни
15.00 м2
Этаж
24 / 59
Отделка
нет

Расположение 2-комн. квартиры

Локация
Метро
Станция МЦД
Дом
Indigo 5
Адрес
ул. Верейская, вл. 29, корп. 5, секция 1

Особенности

Продается двухкомнатная квартира в новостройке ЖК Veer (Веер) по адресу Москва, ЗАО, Можайский, ул. Верейская, вл. 29, корп. 5. Общая площадь квартиры - 47.8 кв. м. Тип проекта, по которому построен дом — Монолитно-кирпичный, компания-застройщик — MR Group (МР Групп), ООО СЗ СтройКапитал. Стоимость квартиры — 26 937 690 руб. Способы оплаты можно уточнить у продавца. Срок сдачи — 3 квартал 2028. Более подробная информация по телефону.
Инфоцентр новостроек
Инфоцентр новостроек
+7 (499) 705-91-41
Время работы 9:00 — 21:00

Похожие квартиры в ЖК Veer (Веер)

27 этаж
из 59 3 квартал 2028
Москва, ЗАО
Давыдково
22 мин.
Indigo 5
Корпус
нет
Отделка
2.85 м
Потолки
ЖК Veer (Веер)
27 059 580 31 834 800
Посмотреть все спецпредложения
студия 20,70 м2 17 119 935
Этаж 15/46
Москва, ЖК Veer (Веер)
Давыдково
22 мин.
Строится
студия 22,00 м2 17 671 500
Этаж 2/22
Москва, ЖК Veer (Веер)
Давыдково
22 мин.
Строится
студия 22,20 м2 17 794 410
Этаж 24/59
Москва, ЖК Veer (Веер)
Давыдково
22 мин.
Строится
студия 22,30 м2 17 988 295
Этаж 24/59
Москва, ЖК Veer (Веер)
Давыдково
22 мин.
Строится
Посмотреть 118 квартир в ЖК Veer (Веер)
1-комн. квартира 30,20 м2 21 614 140
Этаж 39/59
Москва, ЖК Veer (Веер)
Давыдково
22 мин.
Строится
1-комн. квартира 30,70 м2 20 562 860
Этаж 42/59
Москва, ЖК Veer (Веер)
Давыдково
22 мин.
Строится
1-комн. квартира 31,50 м2 22 118 670
Этаж 39/46
Москва, ЖК Veer (Веер)
Давыдково
22 мин.
Строится
1-комн. квартира 31,70 м2 22 391 295
Этаж 15/46
Москва, ЖК Veer (Веер)
Давыдково
22 мин.
Строится
Посмотреть 470 квартир в ЖК Veer (Веер)
2-комн. квартира 47,80 м2 27 059 580
Этаж 27/59
Москва, ЖК Veer (Веер)
Давыдково
22 мин.
Строится
2-комн. квартира 49,00 м2 27 239 100
Этаж 18/59
Москва, ЖК Veer (Веер)
Давыдково
22 мин.
Строится
2-комн. квартира 50,70 м2 28 227 225
Этаж 3/59
Москва, ЖК Veer (Веер)
Давыдково
22 мин.
Строится
2-комн. квартира 51,00 м2 34 425 000
Этаж 54/59
Москва, ЖК Veer (Веер)
Давыдково
22 мин.
Строится
Посмотреть 312 квартир в ЖК Veer (Веер)
3-комн. квартира 74,70 м2 37 525 545
Этаж 42/59
Москва, ЖК Veer (Веер)
Давыдково
22 мин.
Строится
3-комн. квартира 76,60 м2 39 131 110
Этаж 30/59
Москва, ЖК Veer (Веер)
Давыдково
22 мин.
Строится
3-комн. квартира 79,90 м2 40 341 510
Этаж 33/59
Москва, ЖК Veer (Веер)
Давыдково
22 мин.
Строится
3-комн. квартира 80,10 м2 40 238 235
Этаж 30/59
Москва, ЖК Veer (Веер)
Давыдково
22 мин.
Строится
Посмотреть 73 квартиры в ЖК Veer (Веер)
4-комн. квартира 94,90 м2 48 802 325
Этаж 3/5
Москва, ЖК Veer (Веер)
Давыдково
22 мин.
Строится
4-комн. квартира 96,90 м2 49 913 190
Этаж 42/59
Москва, ЖК Veer (Веер)
Давыдково
22 мин.
Строится
4-комн. квартира 107,20 м2 51 938 400
Этаж 12/22
Москва, ЖК Veer (Веер)
Давыдково
22 мин.
Строится

Скидки и спецпредложения от застройщиков

ЖК Veer (Веер) на карте

Выгодные предложения на новостройки

Отзывы о ЖК Veer (Веер)

Самый полезный отзыв
ИВ
09 августа 2024
Оценка:
Социальная инфраструктура
Внешний вид фасада
Двор, окружение
Расположение
Я уже видел строительную технику на месте, и думаю, что район быстро оживёт. Ещё мне понравилась концепция урбан-блоков — это что-то совершенно новое для меня. Мини-квартал будет отделён не забором, а застройкой — жилые дома по пять этажей и большое здание под фитнес-центр с торговыми площадями.
Ответить
Полезный отзыв?
Самый новый отзыв
ЕК
11 января
Оценка:
Планировки
Способы покупки
Двор, окружение
Расположение
проект не выглядит перегруженным визуально. Есть сомнения по двору и приватности, особенно в часы пик. Выбор для тех, кому важна локация, а не загородный комфорт
Ответить
Полезный отзыв?
Добавьте отзыв, заполнив личные данные, или сначала войдите на сайт, тогда информация будет автоматически взята из личного профиля.
Оценка*