Рейтинг@Mail.ru
Переверните экран
Новостройки Квартиры Ипотека Новостройки Москвы Новостройки Подмосковья Новостройки Новой Москвы Готовые новостройки Новостройки на карте Акции от застройщиков Коммерческие помещения Продавцы и застройщики Панорамы новостроек Видеообзор новостроек Экспертиза новостроек Экология Москвы и Подмосковья Студии 1-комнатные 2-комнатные 3-комнатные Квартиры на карте Ипотечный калькулятор Семейная ипотека Военная ипотека Банки и программы Медиа Новости недвижимости Мнение эксперта Аналитика рынка Покупателю Экспертиза новостроек Эксперты и авторы О проекте Контакты Реклама на сайте Vk Youtube Telegram Дзен Машиноместа Апартаменты #траншевая ипотека #рассрочка IT-ипотека Квартиры со скидками до 35% Видео 360° новостроек Субсидированная застройщиком Rutube Поиск дома в Москве Программа реновации в Москве Новостройки премиум-класса Новостройки бизнес-класса Рассрочка Траншевая ипотека Дома и коттеджи Бизнес-центры Бизнес-центры в Москве Бизнес-центры рядом с метро Строящиеся бизнес-центры Бизнес-центры класса A Бизнес-центры класса B
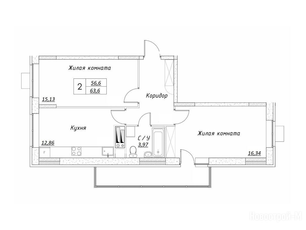
2-комн. квартира, 63.60 м2, 9 этаж
Сдан
9 200 000 
144 654 2
обновлено 5 февраля

Описание 2-комн. квартиры

Застройщик
Срок ГК
Дом сдан
Стадия строительства
выдача ключей + заселение
Общая площадь
63.60 м2
Жилая площадь
31.47 м2
Площадь кухни
12.86 м2
Этаж
9 / 14

Расположение 2-комн. квартиры

Ж/Д-станция
Дмитров
12 мин.
Дом
1
Адрес
ул. Спасская, секция 1

Особенности

Продается двухкомнатная квартира в новостройке ЖК «Шоколад» (Дмитров) по адресу Московская область, Дмитровский район, Дмитров, ул. Спасская. Общая площадь квартиры - 63.6 кв. м. Тип проекта, по которому построен дом — Монолитно-кирпичный, компания-застройщик — Архитектор. Стоимость квартиры — 9 200 000 руб. Способы оплаты можно уточнить у продавца. Более подробная информация по телефону.
Инфоцентр новостроек
Инфоцентр новостроек
Время работы 9:00 — 21:00
Выбирайте квартиру в ЖК «Шоколад» (Дмитров) по ценам от застройщика
ЖК «Шоколад» (Дмитров) ЖК «Шоколад» (Дмитров)|Новострой-М
Комплекс состоит из двух корпусов и отдельно стоящего паркинга ЖК «Шоколад» (Дмитров)|Новострой-М
Входы в подъездах будут располагаться на уровне земли, без препятствий ЖК «Шоколад» (Дмитров)|Новострой-М
Посмотреть все спецпредложения
Этаж 12/14
МО, ЖК «Шоколад» (Дмитров)
Дмитров (ж/д)
12 мин.
Сдан
Этаж 4/14
МО, ЖК «Шоколад» (Дмитров)
Дмитров (ж/д)
12 мин.
Сдан
Этаж 11/14
МО, ЖК «Шоколад» (Дмитров)
Дмитров (ж/д)
12 мин.
Сдан
Этаж 14/14
МО, ЖК «Шоколад» (Дмитров)
Дмитров (ж/д)
12 мин.
Сдан
Посмотреть 13 квартир в ЖК «Шоколад» (Дмитров)
Этаж 14/14
МО, ЖК «Шоколад» (Дмитров)
Дмитров (ж/д)
12 мин.
Сдан
Этаж 14/14
МО, ЖК «Шоколад» (Дмитров)
Дмитров (ж/д)
12 мин.
Сдан
Этаж 2/14
МО, ЖК «Шоколад» (Дмитров)
Дмитров (ж/д)
12 мин.
Сдан
Посмотреть 8 квартир в ЖК «Шоколад» (Дмитров)
3-комн. квартира 87,80 м2 13 500 000
Этаж 8/14
МО, ЖК «Шоколад» (Дмитров)
Дмитров (ж/д)
12 мин.
Сдан
Этаж 11/14
МО, ЖК «Шоколад» (Дмитров)
Дмитров (ж/д)
12 мин.
Сдан
Посмотреть 5 квартир в ЖК «Шоколад» (Дмитров)

Скидки и спецпредложения от застройщиков

ЖК «Шоколад» (Дмитров) на карте

Выгодные предложения на новостройки

Отзывы о ЖК «Шоколад» (Дмитров)

Будьте первым, кто оставит отзыв
о ЖК «Шоколад» (Дмитров)
Добавьте отзыв, заполнив личные данные, или сначала войдите на сайт, тогда информация будет автоматически взята из личного профиля.
Оценка*